Istra, Rovinj okolica - roh bau kuća 3 spavaće sobe
Hrvatska, Istarska županija, Kanfanar, Sošići,
-
143
-
4
-
1
-
300000 EUR stambeni kredit
REMAX Centar Nekretnina iz svoje ponude izdvaja:
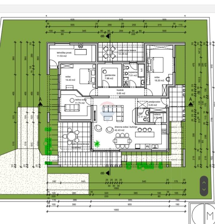
kuća u roh-bau fazi, netto površine 143 m2, smještena na mirnoj lokaciji u okolici Rovinja, udaljena svega cca 10 km od mora i centra grada.
Kuća će imati open space dnevni boravak s kuhinjom i blagovaonicom, 3 spavaće sobe, jednu kupaonicu, jedan WC, garderobu, 2 natkrivene terase, ostavu i tehničku prostoriju.
Površina zemljišta: 582 m²
Izvedeni radovi: postavljeni temelji, glavna ploča, unutarnji i vanjski zidovi, djelomično provučena struja.
Smještena u mirnom okruženju, na rubu sela, odlična povezanost s Rovinjem i okolnim mjestima
Ova nekretnina predstavlja izvrsnu priliku za one koji žele prilagoditi kuću vlastitim potrebama – bilo za stanovanje, odmor ili kao investiciju u turističke svrhe.
ID KOD AGENCIJE: 3-71854
kuća u roh-bau fazi, netto površine 143 m2, smještena na mirnoj lokaciji u okolici Rovinja, udaljena svega cca 10 km od mora i centra grada.
Kuća će imati open space dnevni boravak s kuhinjom i blagovaonicom, 3 spavaće sobe, jednu kupaonicu, jedan WC, garderobu, 2 natkrivene terase, ostavu i tehničku prostoriju.
Površina zemljišta: 582 m²
Izvedeni radovi: postavljeni temelji, glavna ploča, unutarnji i vanjski zidovi, djelomično provučena struja.
Smještena u mirnom okruženju, na rubu sela, odlična povezanost s Rovinjem i okolnim mjestima
Ova nekretnina predstavlja izvrsnu priliku za one koji žele prilagoditi kuću vlastitim potrebama – bilo za stanovanje, odmor ili kao investiciju u turističke svrhe.
ID KOD AGENCIJE: 3-71854
- Osnovni podaci
- Novogradnja
- Tip kuće: samostojeća
- Površina: 143,0 m2
- Broj soba: 4,0
- Broj kupatila: 1
- Energetski razred: U pripremi
- Dodatne informacije
- Lokacija
- Država: Hrvatska
- Regija: Istarska županija
- Općina: Kanfanar, 52352
- Naselje: Sošići
- Pogledaj na mapi
- Slične nekretnine
- Kuća - samostojeća - Kanfanar (Kanfanar) - 136 m2 - 600000 EUR
- Kuća - Kanfanar - 135 m2 - 600000 EUR
- Kuća - samostojeća - Novogradnja - Kanfanar (Kanfanar) - 153 m2 - 1 EUR
- Kuća - samostojeća - Kanfanar (Kanfanar) - 153 m2 - 1250000 EUR
- Kuća - samostojeća - Kanfanar (Kanfanar) - 137 m2 - 600000 EUR
Zainteresirani ste za ovu nekretninu?
Popunite KONTAKT OBRAZAC i naši agenti će Vas kontaktirati putem telefona ili e-maila u najkraćem mogućem roku.
Kontaktirajte nas
Zapratite nas na
Facebook-u
i
Instagramu
za
najbolje ponude nekretnina u kategoriji Kuće
u mjestu Kanfanar, Hrvatska
Navigacija
Kontaktirajte oglašivača
Kontaktirajte oglašivača
Remax Centar Nekretnina
Krešimirova 12a, 51000 Rijeka
- Tel. agenta: xxxx-xxxx-0182 Prikaži broj
- Tel: xxxx-xxxx-5350 Prikaži broj
-
Licencirani posrednik
- Broj u registru posrednika: 656/2009