Istra, Umag okolica- dvojna vila u novogradnji
Hrvatska, Istarska županija, Umag, Umag,
-
132
-
4
-
3
-
530000 EUR stambeni kredit
- Oglas broj: 230731
- Agencijska šifra: 300441016-269
- Datum objave: 21.05.2025
RE/MAX Centar nekretnina izdvaja iz svoje ponude ovu atraktivnu dvojnu vilu smještenu u mirnom mjestu svega 5 km od centra Umaga i 1 km od prvih plaža.
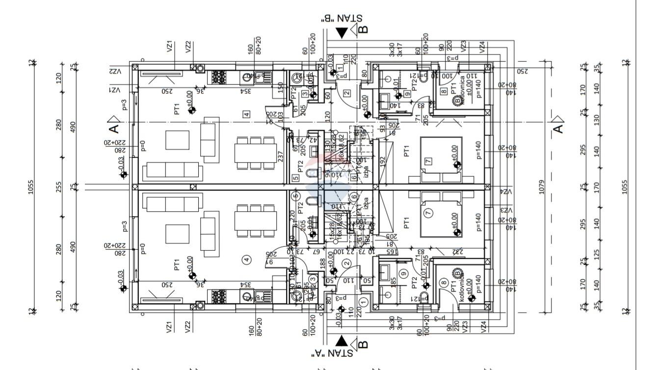
Svaka jedinica proteže se na dvije etaže i obuhvaća 135 m² stambenog prostora. U prizemlju se nalazi prostrani dnevni boravak s blagovaonicom i moderno osmišljenom kuhinjom, hodnik, toalet, praonica, spremište, kotlovnica, jedna spavaća soba i kupaonica. Iz dnevnog boravka izlazi se na pažljivo uređenu okućnicu s bazenom i sunčalištem – idealno mjesto za opuštanje i uživanje u mediteranskom načinu života.
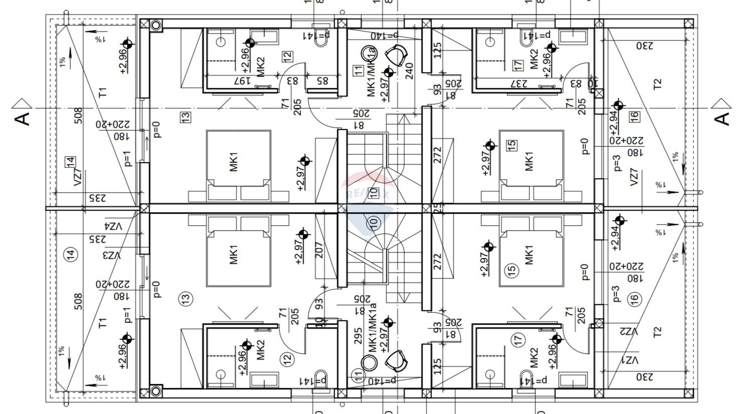
Unutarnje stepenice vode na kat gdje su smještene dvije spavaće sobe, svaka s vlastitom kupaonicom i privatnom terasom, koje pružaju dodatnu udobnost i osjećaj privatnosti.
Vila je izgrađena od visokokvalitetnih materijala, s ugrađenim podnim grijanjem i klima uređajima. Pripada visokom energetskom razredu A+.
Nekretnina je trenutno u fazi visokog roh baua, a završetak radova planiran je do kraja 2025. godine. Vila se prodaje u potpunosti završena, ali bez namještaja.
Svaka jedinica ima vlastiti ulaz, dva parkirna mjesta, svoj dio okućnice i privatni bazen. Moderan dizajn, funkcionalan raspored i odlična lokacija čine ovu vilu idealnim izborom za obiteljski život, odmor ili investiciju u turistički najam.
ID KOD AGENCIJE:-269
Svaka jedinica proteže se na dvije etaže i obuhvaća 135 m² stambenog prostora. U prizemlju se nalazi prostrani dnevni boravak s blagovaonicom i moderno osmišljenom kuhinjom, hodnik, toalet, praonica, spremište, kotlovnica, jedna spavaća soba i kupaonica. Iz dnevnog boravka izlazi se na pažljivo uređenu okućnicu s bazenom i sunčalištem – idealno mjesto za opuštanje i uživanje u mediteranskom načinu života.
Unutarnje stepenice vode na kat gdje su smještene dvije spavaće sobe, svaka s vlastitom kupaonicom i privatnom terasom, koje pružaju dodatnu udobnost i osjećaj privatnosti.
Vila je izgrađena od visokokvalitetnih materijala, s ugrađenim podnim grijanjem i klima uređajima. Pripada visokom energetskom razredu A+.
Nekretnina je trenutno u fazi visokog roh baua, a završetak radova planiran je do kraja 2025. godine. Vila se prodaje u potpunosti završena, ali bez namještaja.
Svaka jedinica ima vlastiti ulaz, dva parkirna mjesta, svoj dio okućnice i privatni bazen. Moderan dizajn, funkcionalan raspored i odlična lokacija čine ovu vilu idealnim izborom za obiteljski život, odmor ili investiciju u turistički najam.
ID KOD AGENCIJE:-269
- Osnovni podaci
- Novogradnja
- Tip kuće: dvojnica
- Površina: 132,0 m2
- Broj soba: 4,0
- Broj kupatila: 3
- Energetski razred: A+
- Dodatne informacije
- Natkriveno parking mjesto
- Lokacija
- Država: Hrvatska
- Regija: Istarska županija
- Općina: Umag, 52470
- Naselje: Umag
- Pogledaj na mapi
Zainteresirani ste za ovu nekretninu?
Popunite KONTAKT OBRAZAC i naši agenti će Vas kontaktirati putem telefona ili e-maila u najkraćem mogućem roku.
Kontaktirajte nas
Zapratite nas na
Facebook-u
i
Instagramu
za
najbolje ponude nekretnina u kategoriji Kuće
u mjestu Umag, Hrvatska
Navigacija
Kontaktirajte oglašivača
Kontaktirajte oglašivača
Remax Centar Nekretnina
Krešimirova 12a, 51000 Rijeka
- Tel. agenta: xxxx-xxxx-0067 Prikaži broj
- Tel: xxxx-xxxx-5350 Prikaži broj
-
Licencirani posrednik
- Broj u registru posrednika: 656/2009