OPATIJA,VEPRINAC- EKSKLUZIVNO, nova vila s bazenom i pogledom na more
Hrvatska, Primorsko-goranska županija, Opatija - Okolica, Veprinac,
-
295
-
6
-
5
-
990000 EUR stambeni kredit
EKSKLUZIVNO SAMO KOD NAS!
RE/MAX centar nekretnina iz svoje ponude izdvaja novu samostojeću vilu izgrađenu 2022. godine koja se nalazi u okolici Opatije, točnije na Veprincu.
Vila se nalazi na idiličnoj mikrolokaciji, u privatnoj slijepoj ulici, okružena zelenilom i tišinom s fenomenalnim pogledom na more.
Do mora i prve plaže imamo svega 10 minuta autom, dok se centar Opatije nalazi na samo 15 minuta.
Kao prednost ove lokacije treba istaknuti i blizinu spoja na autocestu odnosno jednostavan pristup samoj nekretnini kao i odličnu prometnu povezanost.
Što se tiče same vile ona je građena visoko kvalitetnim materijalima kao i opremom.
Odlikuju je čak 5 spavaćih soba i 5 kupaona, bazen 24 m2, velike staklene stijene, južna orijentacija, sunce tijekom čitavog dana, te pogled na more i zelenilo sa svih etaža.
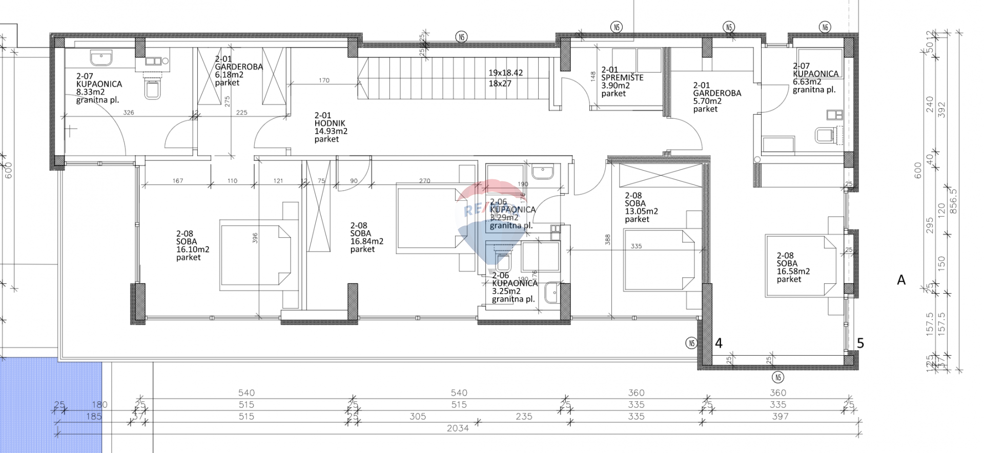
Sveukupne površine je 295.72 m2, a prostire se kroz 3 etaže (podrum, prizemlje i kat), te funkcionira kao jedan troetažan stan, povezan unutrašnjim stubištem.
U podrumu se nalaze pomoćne prostorije, dok se u prizemlju i na 1. katu nalazi stambeni dio.
Podrum (neto površine 27.66 m2): hodnik, stubište, strojarnica, spremište
Prizemlje (neto površine unutarnjeg prostora 92.87 m2): dnevni boravak s kuhinjom i blagovaonom, spavaća soba, kupaona, gostinjski wc, stubište, komunikacija + natkrivena terasa (10.80 m2) + natkrivena terasa (15.54 m2) + lođa (2.93 m2)
Prizemlje ima izlaz na okućnicu s bazenom i popratnim sadržajem.
U sklopu okućnice 830 m2 se nalaze: grijani bazen 24 m2, sunčalište, vanjski tuš, vrt s mediteranskim biljem i automatskim navodnjavanjem, roštilj s prostorom za druženje, te 4 vanjska parkirna mjesta
1. kat (neto površine unutarnjeg prostora 114.78 m2 ): 4 spavaće sobe, 4 kupaonice, praonica, 2 garderobera, hodnik + natkriveni balkon (24.40 m2)
Kuća je opremljena podnim grijanjem na dizalicu topline, a kao dodatan izvor grijanja i hlađenja mogu se koristiti i fenkojleri.
Kompletno je i vrlo kvalitetno namještena i opremljena te se kao takva prodaje.
Posjeduje sveukupno 4 parkirna mjesta.
Odlična nekretnina i za život i za investiciju u vidu najma!
U cijenu je uključen PDV, kupac je oslobođen plaćanja poreza na promet nekretnina.
Virtualna tura dostupna na: /
ID KOD AGENCIJE: 3-69141
RE/MAX centar nekretnina iz svoje ponude izdvaja novu samostojeću vilu izgrađenu 2022. godine koja se nalazi u okolici Opatije, točnije na Veprincu.
Vila se nalazi na idiličnoj mikrolokaciji, u privatnoj slijepoj ulici, okružena zelenilom i tišinom s fenomenalnim pogledom na more.
Do mora i prve plaže imamo svega 10 minuta autom, dok se centar Opatije nalazi na samo 15 minuta.
Kao prednost ove lokacije treba istaknuti i blizinu spoja na autocestu odnosno jednostavan pristup samoj nekretnini kao i odličnu prometnu povezanost.
Što se tiče same vile ona je građena visoko kvalitetnim materijalima kao i opremom.
Odlikuju je čak 5 spavaćih soba i 5 kupaona, bazen 24 m2, velike staklene stijene, južna orijentacija, sunce tijekom čitavog dana, te pogled na more i zelenilo sa svih etaža.
Sveukupne površine je 295.72 m2, a prostire se kroz 3 etaže (podrum, prizemlje i kat), te funkcionira kao jedan troetažan stan, povezan unutrašnjim stubištem.
U podrumu se nalaze pomoćne prostorije, dok se u prizemlju i na 1. katu nalazi stambeni dio.
Podrum (neto površine 27.66 m2): hodnik, stubište, strojarnica, spremište
Prizemlje (neto površine unutarnjeg prostora 92.87 m2): dnevni boravak s kuhinjom i blagovaonom, spavaća soba, kupaona, gostinjski wc, stubište, komunikacija + natkrivena terasa (10.80 m2) + natkrivena terasa (15.54 m2) + lođa (2.93 m2)
Prizemlje ima izlaz na okućnicu s bazenom i popratnim sadržajem.
U sklopu okućnice 830 m2 se nalaze: grijani bazen 24 m2, sunčalište, vanjski tuš, vrt s mediteranskim biljem i automatskim navodnjavanjem, roštilj s prostorom za druženje, te 4 vanjska parkirna mjesta
1. kat (neto površine unutarnjeg prostora 114.78 m2 ): 4 spavaće sobe, 4 kupaonice, praonica, 2 garderobera, hodnik + natkriveni balkon (24.40 m2)
Kuća je opremljena podnim grijanjem na dizalicu topline, a kao dodatan izvor grijanja i hlađenja mogu se koristiti i fenkojleri.
Kompletno je i vrlo kvalitetno namještena i opremljena te se kao takva prodaje.
Posjeduje sveukupno 4 parkirna mjesta.
Odlična nekretnina i za život i za investiciju u vidu najma!
U cijenu je uključen PDV, kupac je oslobođen plaćanja poreza na promet nekretnina.
Virtualna tura dostupna na: /
ID KOD AGENCIJE: 3-69141
- Osnovni podaci
- Novogradnja
- Tip kuće: samostojeća
- Površina: 295,0 m2
- Broj soba: 6,0
- Broj kupatila: 5
- Energetski razred: A
- Površina okućnice: 830 m2
- Dodatne informacije
- Lokacija
- Država: Hrvatska
- Regija: Primorsko-goranska županija
- Općina: Opatija - Okolica, 51410
- Naselje: Veprinac
- Pogledaj na mapi
- Slične nekretnine
- Kuća - samostojeća - Opatija - Okolica (Veprinac) - 300 m2 - 890000 EUR
- Kuća - samostojeća - Opatija - Okolica (Ika) - 282 m2 - 1 EUR
- Kuća - samostojeća - Opatija - Okolica (Oprić) - 275 m2 - 690000 EUR
- Kuća - samostojeća - Opatija - Okolica (Ičići) - 275 m2 - 948000 EUR
- Kuća - dvojnica - Opatija - Okolica (Veprinac) - 284 m2 - 860000 EUR
Zainteresirani ste za ovu nekretninu?
Popunite KONTAKT OBRAZAC i naši agenti će Vas kontaktirati putem telefona ili e-maila u najkraćem mogućem roku.
Kontaktirajte nas
Zapratite nas na
Facebook-u
i
Instagramu
za
najbolje ponude nekretnina u kategoriji Kuće
u mjestu Opatija - Okolica, Hrvatska
Trebate stambeni kredit za ovu nekretninu?
Izračunajte ratu kredita uz pregled najpovoljnijih ponuda stambenih kredita za kupovinu nekretnine na lokaciji Opatija - Okolica, Hrvatska
Prodajete ili iznamljujete nekretninu u mjestu Opatija - Okolica?
Zatražite procjenu vrijednosti vaše nekretnine
Povjerite posao posredovanja lokalnom ekspertu za nekretnine u mjestu Opatija - Okolica
Provjerite cijene novih stanova u mjestu Opatija - Okolica
Analizirajte cijene nekretnina u gradu/općini Opatija - Okolica
Novo
Navigacija
Kontaktirajte oglašivača
Kontaktirajte oglašivača
Remax Centar Nekretnina
Krešimirova 12a, 51000 Rijeka
- Tel. agenta: xxxx-xxxx-7001 Prikaži broj
- Tel: xxxx-xxxx-5350 Prikaži broj
-
Licencirani posrednik
- Broj u registru posrednika: 656/2009