Vrbnik, Risika, Dvojna kuća 150m2 sa bazenom, prodaja
Hrvatska, Primorsko-goranska županija, Vrbnik, Risika,
- 150 m2
- 11
- 3
- 487500 EUR stambeni kredit
                            
                                
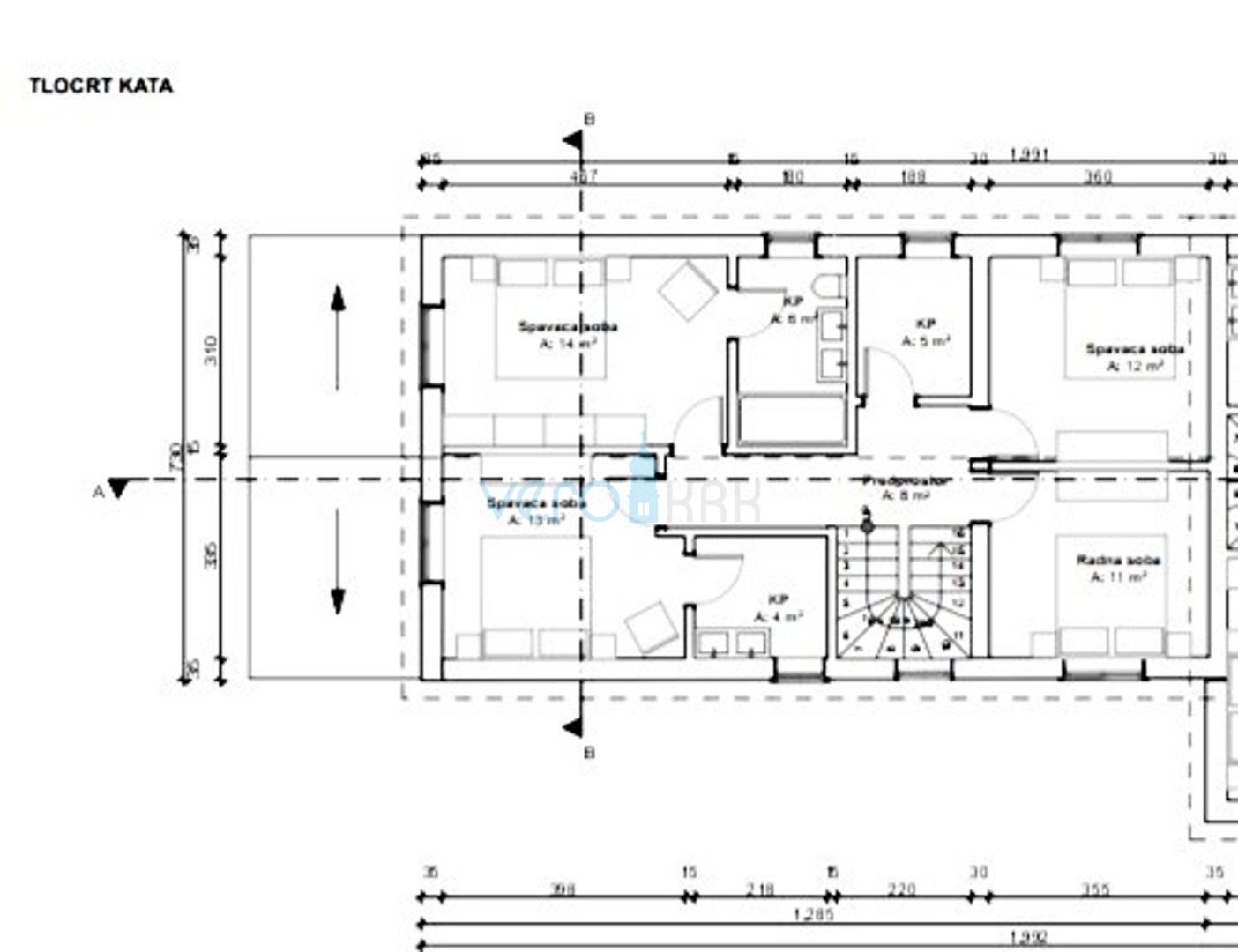
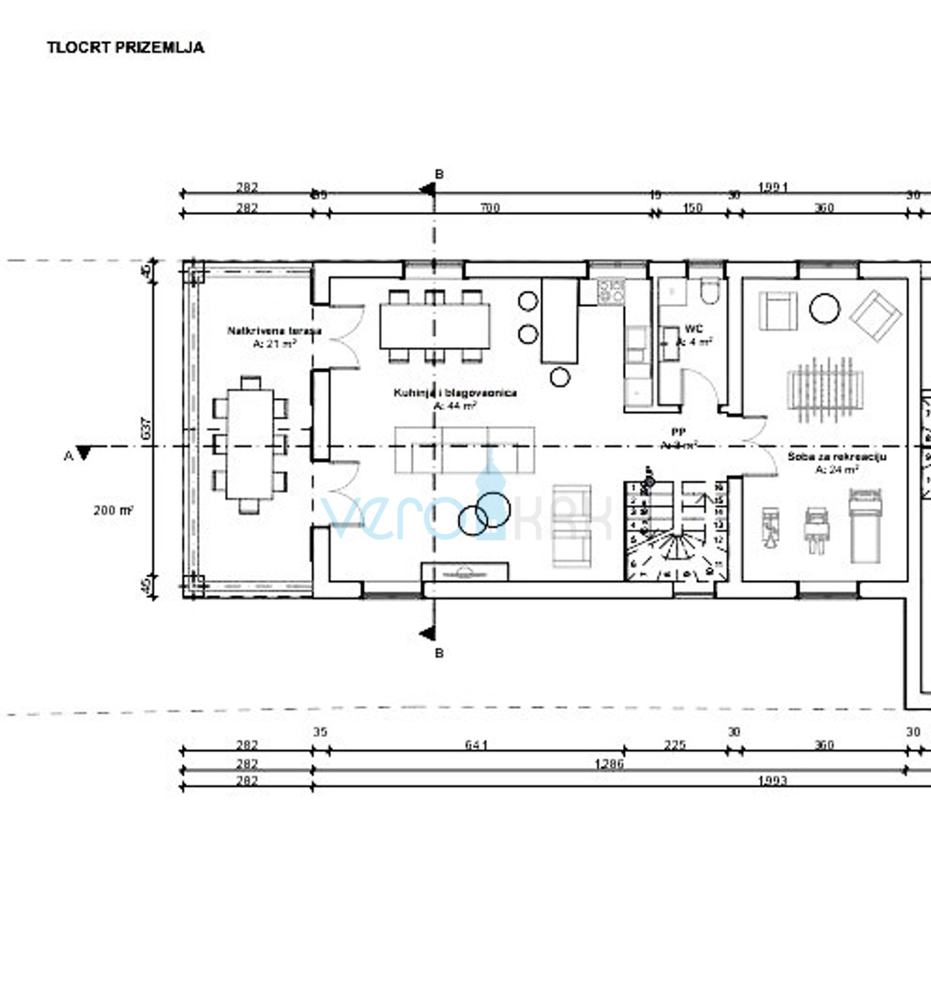
                                    Vrbnik, Risika, Na prodaju je novoizgrađena dvojna kuća stambene površine 150m2 sa bazenom na okućnici od cca 400m2 u mjestu Risika u okolici Vrbnika na otoku Krku. U prizemlju se nalaze hodnik, wc, soba za rekreaciju, open space kuhinja sa blagovaon
                                
                            
                            
                                
                                    
                                        icom i dnevnim boravkom sa izlazom na natkrivenu terasu ispred koje se nalazi bazen. Unutarnje stepenište vodi na kat gdje se nalaze kupaonica uz predsoblje te četiri spavaće sobe od kojih su dvije sa pripadajućim kupaonicama i vlastitim balkonima. Na parkiralištu ovom dijelu kuće pripadaju dva parkirna mjesta.
 
 Lokacija je mirna i poželjna za kvalitetan odmor. Udaljena 1200m je plaža Sveti Marak, a na desetak minuta vožnje je i grad Vrbnik.
 Cijena je iskazana sa uključenim PDV-om 25%.
                                    
                                
                            
                            
                              
                                  
                                  ... prikaži sve
                                  
                              
                            
                            
                            
                        
                      - Osnovni podaci
- Novogradnja
- Tip kuće: dvojnica
- Površina: 150,0 m2
- Broj soba: 11,0
- Broj kupatila: 3
- Energetski razred: U pripremi
- Površina okućnice: 400 m2
- Infrastruktura
- Voda
- Aktivna telefonska linija
- Telefonska instalacija
- ADSL
- Dodatne informacije
- Stanje: očuvano
- Broj parking mjesta: 2
- Lokacija
- Država: Hrvatska
- Regija: Primorsko-goranska županija
- Općina: Vrbnik, 51516
- Naselje: Risika
- Pogledaj na mapi
- Dozvole
- Građevinska dozvola
- Vlasnički list
- Slične nekretnine
- Kuća - samostojeća - Novogradnja - Vrbnik (Vrbnik) - 138 m2 - 699000 EUR
- Kuća - samostojeća - Vrbnik (Vrbnik) - 152 m2 - 650000 EUR
- Kuća - samostojeća - Novogradnja - Vrbnik (Garica) - 137 m2 - 830000 EUR
- Kuća - dvojnica - Novogradnja - Vrbnik (Vrbnik) - 150 m2 - 550000 EUR
- Kuća - samostojeća - Novogradnja - Vrbnik (Vrbnik) - 138 m2 - 1 EUR
 
                  Vero Krk j.d.o.o.
Put mora 2/1, 51513 Omišalj
- Svi oglasi ove agencije
- Web site agencije
- Broj u registru posrednika: 193/2019
        Zapratite nas na
    
        
        Facebook-u
    
    i
    
        
        Instagramu
    
    za
    
        najbolje ponude nekretnina u kategoriji Kuće
        u mjestu Vrbnik, Hrvatska
    
    
    
Navigacija
Kontaktirajte oglašivača
Kontaktirajte oglašivača
 
                  Vero Krk j.d.o.o.
Put mora 2/1, 51513 Omišalj
- Tel. agenta: xxxx-xxxx-2102 Prikaži broj
- Tel: xxxx-xxxx-4911 Prikaži broj
- Mob: xxxx-xxxx-2102 Prikaži broj
- Svi oglasi ove agencije
- Web site agencije
- Broj u registru posrednika: 193/2019









