PRILIKA! KUĆA S POMOĆNIM OBJEKTOM (SPREMIŠTE + LJETNA KUHINJA) - STOMORSKA, ŠOLTA
Hrvatska, Splitsko-dalmatinska županija, Šolta, Stomorska,
- 205 m2
- 5
- 1
- 290000 EUR stambeni kredit
                            
                                
                                    Na prodaju KUĆA u Stomorskoj na otoku Šolti. IZVRSNA PRILIKA!
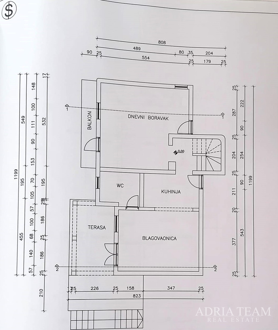
 Nekretnina se sastoji od suterena, prizemlja te potkrovlja. Nekretnini pripada i pomoćni objekt od 19,22 m2 u kojem se nalaze spremište i ljetna kuhinja.
   
  OPIS NEKRETNINE:
  SUTER
                                
                            
                            
                                
                                    
                                        EN - konoba (27,34 m2), spremište (7,75 m2)
  PRIZEMLJE - dnevni boravak, WC, kuhinja, blagovaonica, terasa, balkon, velika spavaća soba
  1. KAT - 3 spavaće sobe, kupaonica, hodnik, 2 terase, 2 balkona
   
  Stomorska, naselje na sjeveroistoku otoka Šolte je 12 km cestom udaljena od glavne luke Rogač. Ona je najstarije obalno naselje na otoku u kojem su nekoć živjeli poznati vrsni pomorci koji su posjedovali jedrenjake te su sa njima prevozili žito, vapno i ostale proizvode u vrijeme kada je Šolta davala svoje prihode Splitu. Stanovništvo se bavi i ribarstvom, a ima i ribogojstva. Zbog svoje turističke značajnosti, ima jako dobre pomorske prometne veze sa Splitom.
   
  Za sve dodatne informacije i dogovor o terminu obilaska, slobodno nas u bilo kojem trenutku kontaktirajte s povjerenjem.
   
  Agencijska provizija za kupca iznosi 3% plus PDV i plaća se prilikom kupnje nekretnine u trenutku sklapanja ugovora o kupoprodaji.
                                    
                                
                            
                            
                              
                                  
                                  ... prikaži sve
                                  
                              
                            
                            
                            
                        
                      - Osnovni podaci
- Tip kuće: samostojeća
- Površina: 205,1 m2
- Broj soba: 5,0
- Broj kupatila: 1
- Energetski razred: U pripremi
- Infrastruktura
- Voda
- Kanalizacija
- Klima uređaj
- Dodatne informacije
- Stanje: očuvano
- Lokacija
- Država: Hrvatska
- Regija: Splitsko-dalmatinska županija
- Općina: Šolta, 21430
- Naselje: Stomorska
- Pogledaj na mapi
- Dozvole
- Vlasnički list
- Slične nekretnine
- Kuća - samostojeća - Šolta (Maslinica) - 220 m2 - 950000 EUR
- Kuća - Šolta (Rogač) - 200 m2 - 890000 EUR
- Kuća - samostojeća - Šolta (Stomorska) - 224 m2 - 290000 EUR
- Kuća - samostojeća - Šolta (Stomorska) - 205 m2 - 330000 EUR
- Kuća - samostojeća - Šolta (Grohote) - 224 m2 - 1650000 EUR
 
                  Adria Team Real Estate d.o.o.
Matije Gupca 40, 23000 Zadar
- Svi oglasi ove agencije
- Web site agencije
- Broj u registru posrednika: 38/2017
        Zapratite nas na
    
        
        Facebook-u
    
    i
    
        
        Instagramu
    
    za
    
        najbolje ponude nekretnina u kategoriji Kuće
        u mjestu Šolta, Hrvatska
    
    
    
Navigacija
Kontaktirajte oglašivača
Kontaktirajte oglašivača
 
                  Adria Team Real Estate d.o.o.
Matije Gupca 40, 23000 Zadar
- Tel. agenta: xxxx-xxxx-9967 Prikaži broj
- Tel: xxxx-xxxx-5880 Prikaži broj
- Mob: xxxx-xxxx-8355 Prikaži broj
- Svi oglasi ove agencije
- Web site agencije
- Broj u registru posrednika: 38/2017










































