KUĆE S BAZENOM, 80 m OD MORA, NOVOGRADNJA - VLAŠIĆI, PAG
Hrvatska, Zadarska županija, Pag, Vlašići,
- 92 m2
- 3
- 3
- 430000 EUR stambeni kredit
                            
                                
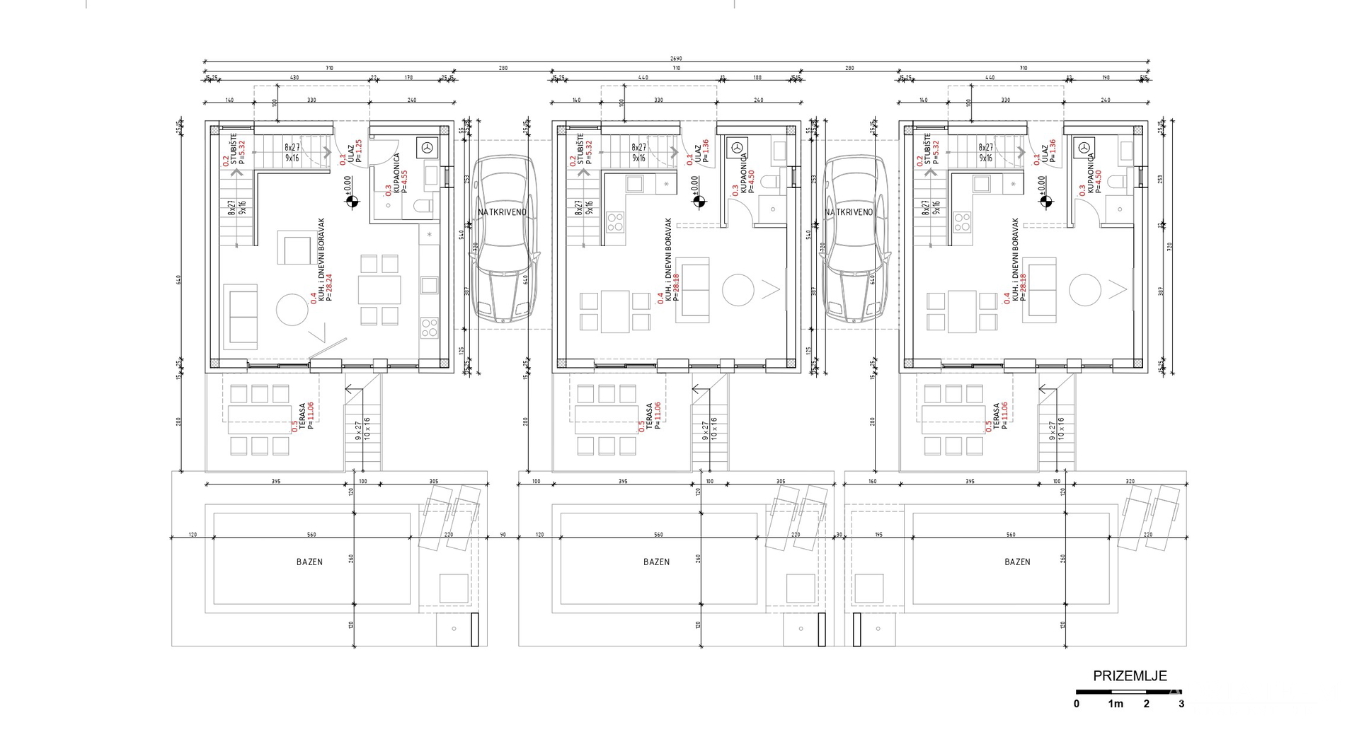
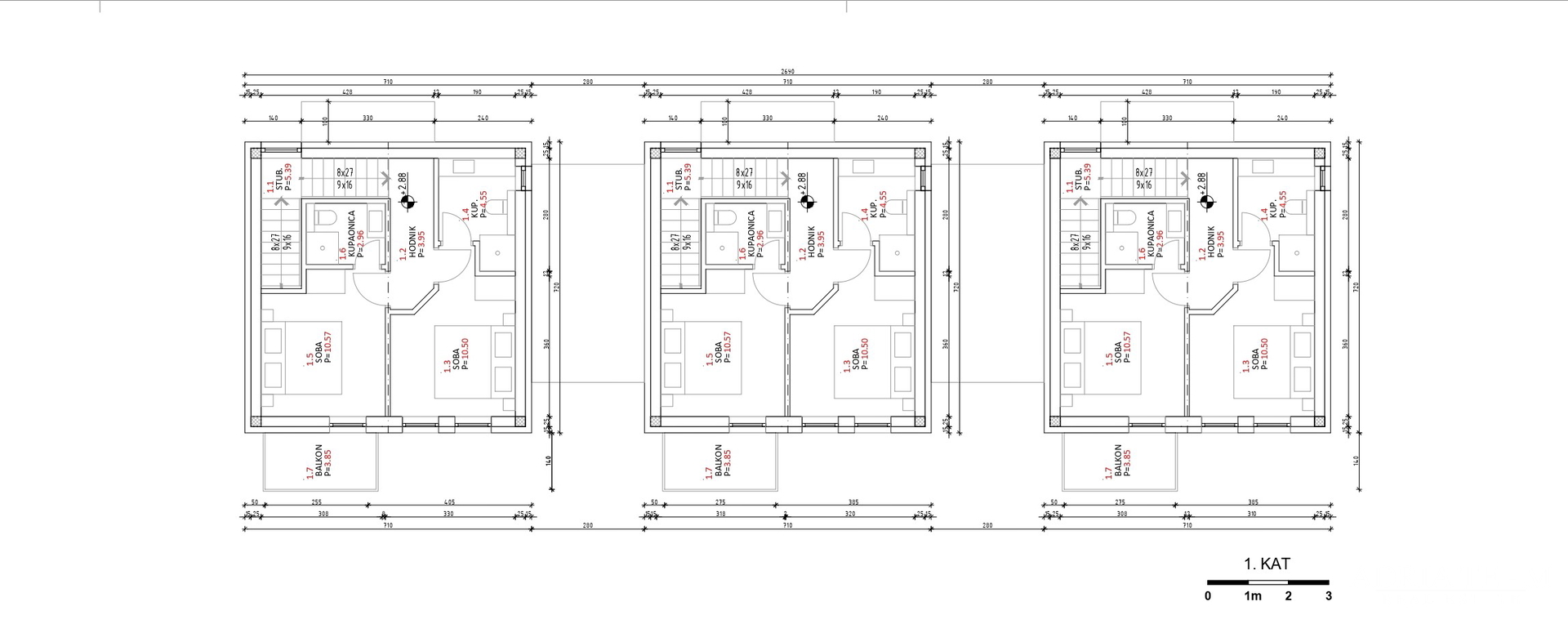
                                    Prodaju se dvije od tri identične KUĆE u izgradnji udaljene 80 m od mora u Vlašićima na otoku Pagu. Nekretnina se prostire na prizemlje i 1. kat.
   
  OPIS NEKRETNINE:
  PRIZEMLJE - kuhinja + dnevni boravak, kupaonica, terasa, stubište, bazen
  
                                
                            
                            
                                
                                    
                                        1. KAT - 2 kupaonice, 2 spavaće sobe, hodnik, balkon, stubište
  Svaka kuća ima svoje parkirališno mjesto.
   
  OPIS MATERIJALA:
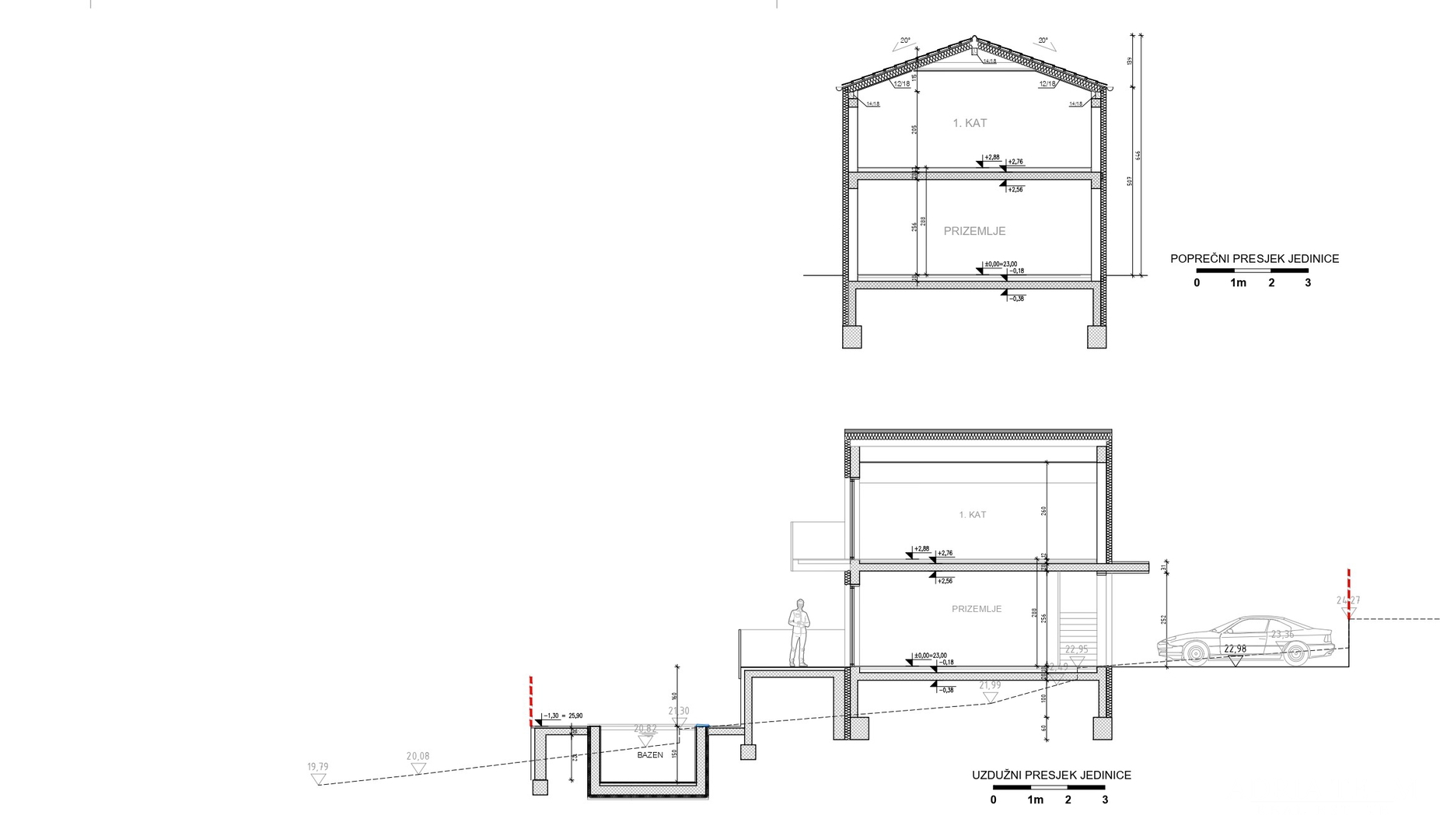
  Nosiva konstrukcija su zidovi od blok opeke s armiranobetonskim serklažima.
 Međukatna konstrukcija su AB ploče.
  Krov je kosi, drvena konstrukcija, dvostrešni.
  Nosivi vanjski zidovi u prizemlju i na katovima s vanjske strane bit će obloženi s izolacijom debljine 15 cm i presvučeni završnom oblogom kao ETICS fasada.
   
  Početak gradnje: travanj 2025. godine
 Očekivani rok završetka: početak 2027. godine
   
  Cijena: EUR u izgradnji, a pri završetku EUR
   
   
 
 
  Za sve dodatne informacije i dogovor o terminu obilaska, slobodno nas u bilo kojem trenutku kontaktirajte s povjerenjem.
 
 
 Provizija agencije za kupca iznosi 3% + PDV i plaća se u slučaju kupovine nekretnine kod zaključenja kupoprodajnog Ugovora.
                                    
                                
                            
                            
                              
                                  
                                  ... prikaži sve
                                  
                              
                            
                            
                            
                        
                      - Osnovni podaci
- Novogradnja
- Tip kuće: u nizu
- Površina: 92,2 m2
- Broj soba: 3,0
- Broj kupatila: 3
- Energetski razred: A+
- Površina okućnice: 932 m2
- Infrastruktura
- Voda
- Aktivna telefonska linija
- Telefonska instalacija
- Septička jama
- Dodatne informacije
- Stanje: očuvano
- Broj parking mjesta: 3
- Lokacija
- Država: Hrvatska
- Regija: Zadarska županija
- Općina: Pag, 23249
- Naselje: Vlašići
- Pogledaj na mapi
- Dozvole
- Građevinska dozvola
- Vlasnički list
 
                  Adria Team Real Estate d.o.o.
Matije Gupca 40, 23000 Zadar
- Svi oglasi ove agencije
- Web site agencije
- Broj u registru posrednika: 38/2017
        Zapratite nas na
    
        
        Facebook-u
    
    i
    
        
        Instagramu
    
    za
    
        najbolje ponude nekretnina u kategoriji Kuće
        u mjestu Pag, Hrvatska
    
    
    
Navigacija
Kontaktirajte oglašivača
Kontaktirajte oglašivača
 
                  Adria Team Real Estate d.o.o.
Matije Gupca 40, 23000 Zadar
- Tel. agenta: xxxx-xxxx-9967 Prikaži broj
- Tel: xxxx-xxxx-5880 Prikaži broj
- Mob: xxxx-xxxx-8355 Prikaži broj
- Svi oglasi ove agencije
- Web site agencije
- Broj u registru posrednika: 38/2017











