DVIJE KUĆE S BAZENOM - VIR
Hrvatska, Zadarska županija, Vir, Vir,
- 143 m2
- 4
- 3
- 470000 EUR stambeni kredit
Prodaju se dvije identične KUĆE na otoku Viru. Nekretnina se sastoji od prizemlja te 1. i 2. kata.
OPIS NEKRETNINE:
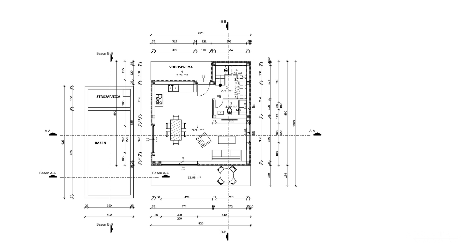
PRIZEMLJE - dnevni boravak, kuhinja i blagovaonica (39.93 m2), hodnik (2.98 m2), WC (3.39 m2), natkriveni ulaz (3.89 m2), natkrive
na terasa (6.49 m2), stepenište (4.31 m2)
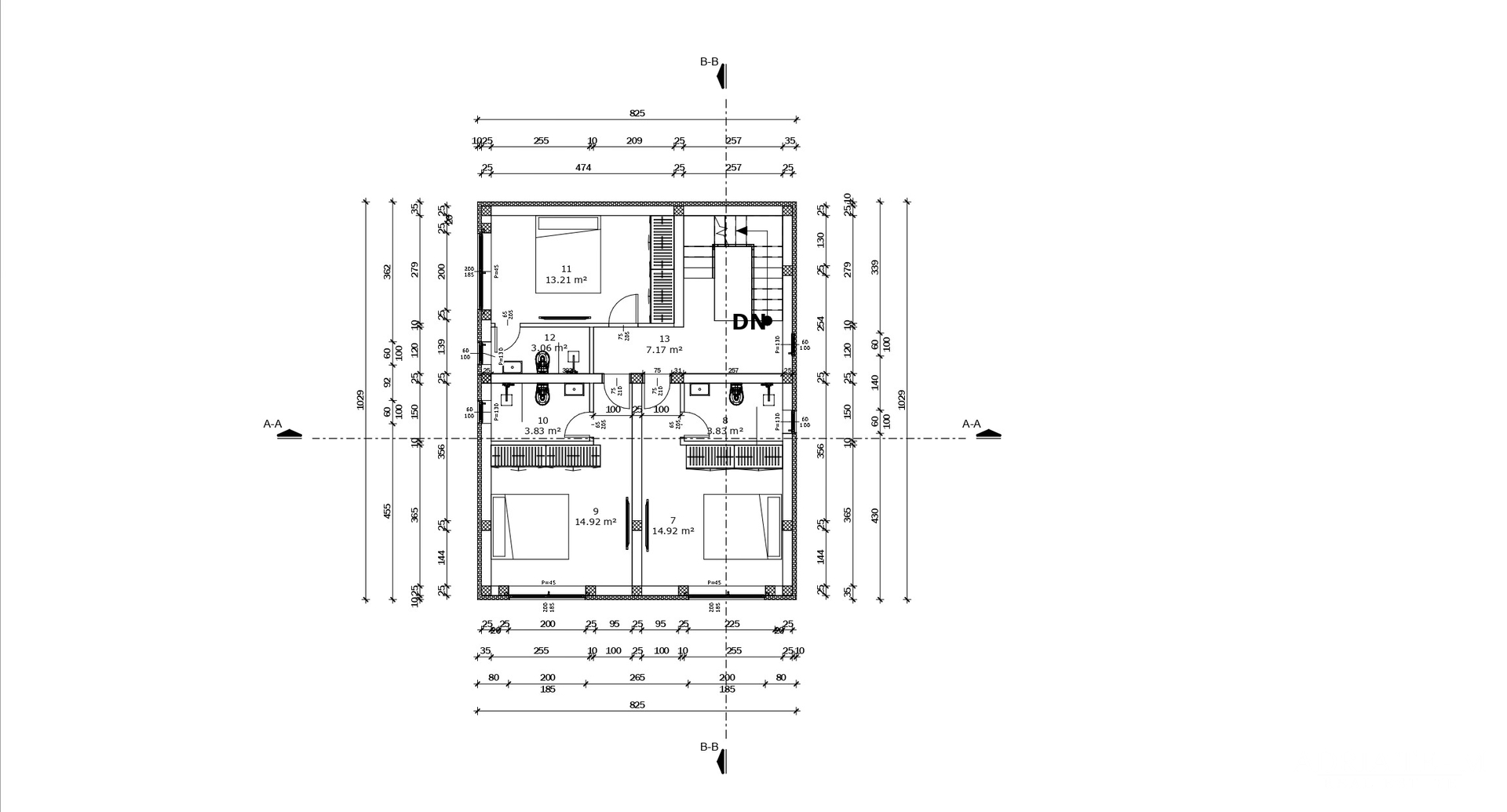
1. KAT - 3 spavaće sobe (2 x 14.92 m2, 13.21 m2), 3 kupaonice (2 x 3.83 m2, 3.06 m2), hodnik (7.17 m2)
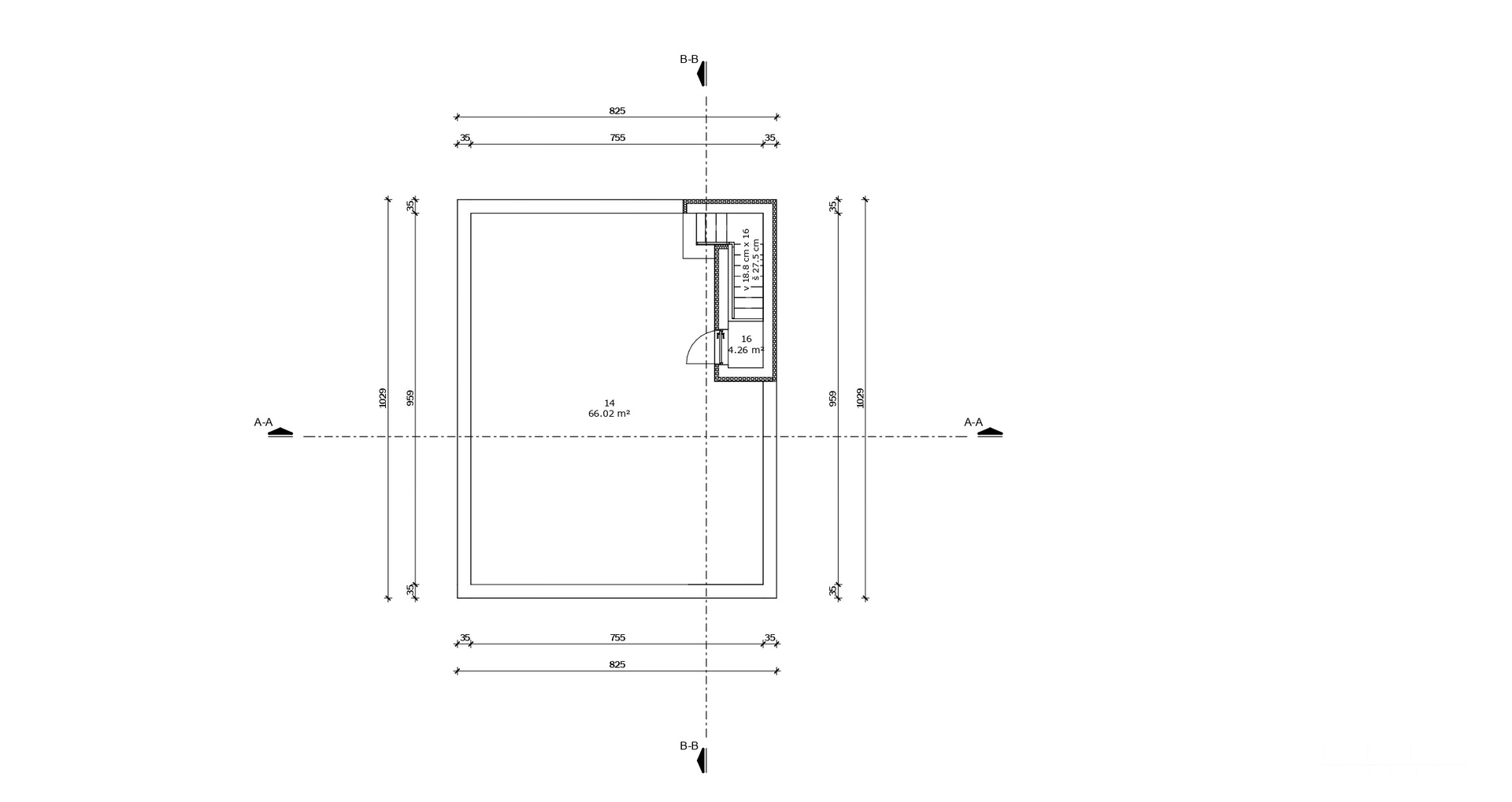
2. KAT - prohodni krov (16.50 m2), hodnik i izlaz na krov (4.26 m2)
OPIS MATERIJALA:
U prostorijama će se ugraditi vrata od drvene građe (borove, smrekove, jelove), vratna krila puna glatka, rubovi od masivnog drveta, obostrano furnirana.
Vanjska stolarija (vrata, prozori, klizne stijene) je predviđena od šestokomornih PVC profila s prekinutim toplinskim mostom te postojanim na udare vjetra.
Ostakljenje je IZO staklima, s jednim staklom niske emisije (Low-E obloge).
Vanjske i unutrašnje klupčice će biti od kamena.
Zaštita prozora i vrata će biti rolete ili sjenila po izboru investitora.
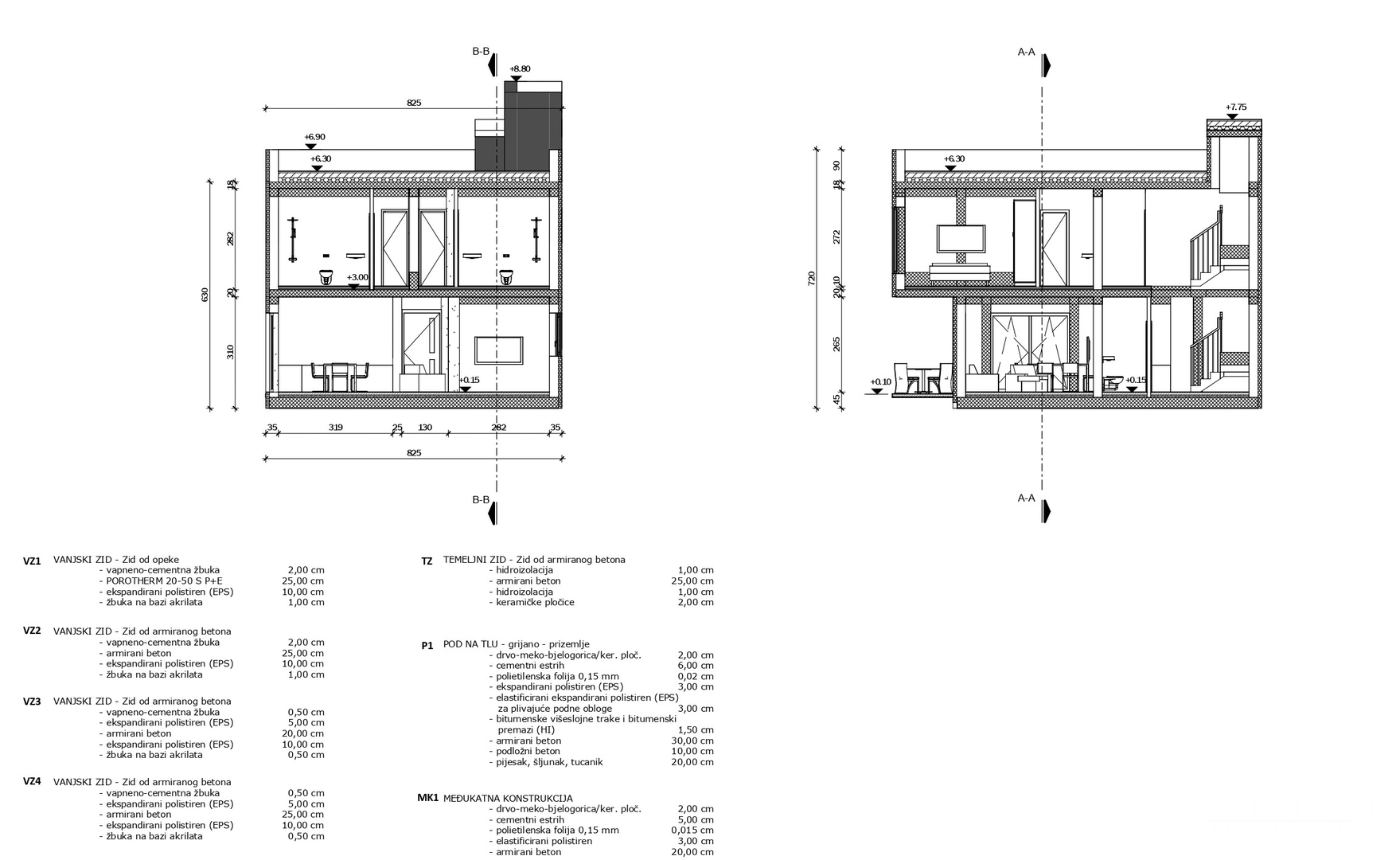
Vanjski zidovi grijanih prostora bit će izvana toplinski izolirani kontaktnim (ETICS) sustavom s EPS-om (10 cm).
Nosiva konstrukcija zgrade je zidana, ojačana vertikalnim i horizontalnim AB serklažima.
Za grijanje i hlađenje prostora predviđena je ugradnja dizalice topline koja se sastoji od vanjske jedinice i jedne ili više unutarnjih jedinica.
Grijanje sanitarnih prostorija i dnevnog boravka je predviđeno pomoću elektrootpornog podnog grijanja.
Prostori se griju i hlade preko unutarnjih klima jedinica (ventilkonvektora). Dnevni boravak ima klimatizaciju jačine 5 kW.
Pri projektiranju i građenju objekta predvidjet će se i ugraditi odgovarajuće vodovodne instalacije, kao i odgovarajuće kanalizacijske instalacije (niskošumne) za odvod otpadnih voda.
Biopročišćivač te cisterna/rezervoar s 12000 l vode.
Krovna terasa (70 m2) - izvedeni priključci za malu kuhinju.
Priprema za nadzorne kamere.
Useljivo do 15. lipnja 2025. godine.
Za sve dodatne informacije i dogovor o terminu obilaska, slobodno nas u bilo kojem trenutku kontaktirajte s povjerenjem.
Provizija agencije za kupca iznosi 3% + PDV i plaća se u slučaju kupovine nekretnine kod zaključenja kupoprodajnog Ugovora.
... prikaži sve
- Osnovni podaci
- Novogradnja
- Tip kuće: samostojeća
- Površina: 142,7 m2
- Broj soba: 4,0
- Broj kupatila: 3
- Energetski razred: U pripremi
- Infrastruktura
- Aktivna telefonska linija
- Telefonska instalacija
- Septička jama
- ADSL
- Klima uređaj
- Dodatne informacije
- Stanje: očuvano
- Broj parking mjesta: 2
- Lokacija
- Država: Hrvatska
- Regija: Zadarska županija
- Općina: Vir, 23234
- Naselje: Vir
- Pogledaj na mapi
- Dozvole
- Građevinska dozvola
- Vlasnički list
Adria Team Real Estate d.o.o.
Matije Gupca 40, 23000 Zadar
- Svi oglasi ove agencije
- Web site agencije
- Broj u registru posrednika: 38/2017
Zapratite nas na
Facebook-u
i
Instagramu
za
najbolje ponude nekretnina u kategoriji Kuće
u mjestu Vir, Hrvatska
Navigacija
Kontaktirajte oglašivača
Kontaktirajte oglašivača
Adria Team Real Estate d.o.o.
Matije Gupca 40, 23000 Zadar
- Tel. agenta: xxxx-xxxx-9967 Prikaži broj
- Tel: xxxx-xxxx-5880 Prikaži broj
- Mob: xxxx-xxxx-8355 Prikaži broj
- Svi oglasi ove agencije
- Web site agencije
- Broj u registru posrednika: 38/2017



























































































