VILA U PRVOM REDU DO MORA, MODERNA ARHITEKTURA, PROSTRANA KROVNA TERASA - BRODARICA, ZADAR
Hrvatska, Zadarska županija, Zadar, Brodarica,
                            
                                
                                    Luksuzna moderna vila u prvom redu do mora – Brodarica, Zadar
  Na ekskluzivnoj lokaciji u prvom redu do mora, smještena u prestižnoj zadarskoj Brodarici, prodaje se suvremena vila koja objedinjuje vrhunsku arhitekturu, luksuzne sadržaje i spektakul
                                
                            
                            
                                
                                    
                                        aran pogled na more.
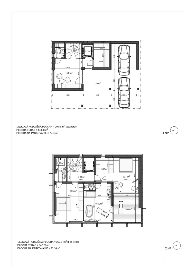
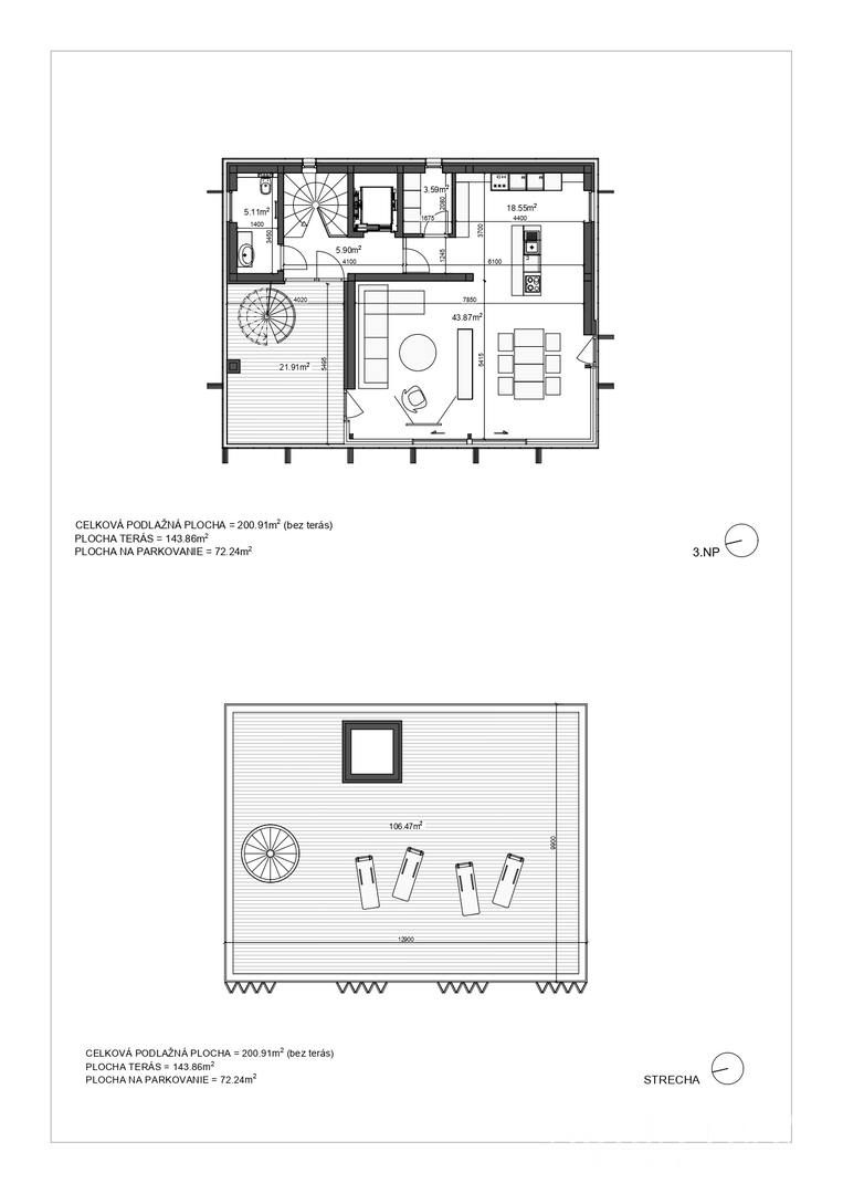
  Vila se proteže na tri etaže, uključujući prostranu krovnu terasu površine 143,86 m2, savršenu za opuštanje, sunčanje ili stvaranje privatne lounge zone s panoramskim pogledom na more i zadarsku luku.
  Unutarnji raspored:
   	-  	Prizemlje: elegantan ulazni prostor, moderna kupaonica, garderoba, unutarnje stubište i pristup privatnom liftu koji povezuje sve etaže vile.
 	
 	-  	1. kat: dvije prostrane spavaće sobe, dvije kupaonice, dodatni WC, hodnik, garderoba te terasa s pogledom na more.
 	
 	-  	2. kat: luksuzna otvorena kuhinja, dnevni boravak i blagovaonica, terasa s pogledom, kupaonica, hodnik i ostava.
 	
 	-  	Krovna terasa: ekskluzivan prostor za uživanje na otvorenom – idealan za jacuzzi, sunčalište, ljetnu kuhinju ili lounge zonu.
 	
 
  Ključne značajke:
   	-  	Privatni unutarnji lift osigurava udobnost i pristupačnost na svim etažama – savršeno rješenje za sve generacije.
 	
 	-  	Sve dnevne prostorije, kupaonice i terase orijentirane su prema moru, pružajući obilje prirodnog svjetla i neometan pogled.
 	
 	-  	Pomična modularna fasada omogućuje kontrolu privatnosti i svjetlosti, stvarajući različite ambijente unutar i izvan prostora te vizualno mijenjajući fasadu prema želji korisnika.
 	
 	-  	Privatni parking površine 72,24 m2, dovoljno za više vozila.
 	
 	-  	Korišteni su vrhunski materijali, suvremeni sustavi gradnje i dizajnerska rješenja koja osiguravaju dugoročnu vrijednost i komfor.
 	
 
  Lokacija:
  Brodarica je mirno i prestižno područje Zadra, savršeno za život ili luksuzni odmor. Udaljena je nekoliko minuta vožnje od centra grada, s neposrednim pristupom moru, šetnicama, plažama i svim sadržajima.
  Ova vila predstavlja rijetku priliku za kupnju moderne nekretnine na jednoj od najpoželjnijih lokacija u Zadru. Savršen spoj luksuza, dizajna i položaja.
  Za dodatne informacije ili dogovor razgledavanja, slobodno nas kontaktirajte.
   
 
 
  Za sve dodatne informacije i dogovor o terminu obilaska, slobodno nas u bilo kojem trenutku kontaktirajte s povjerenjem.
 
 
 Provizija agencije za kupca iznosi 3% + PDV i plaća se u slučaju kupovine nekretnine kod zaključenja kupoprodajnog Ugovora.
                                    
                                
                            
                            
                              
                                  
                                  ... prikaži sve
                                  
                              
                            
                            
                            
                        
                      - Osnovni podaci
- Novogradnja
- Tip kuće: samostojeća
- Površina: 200,9 m2
- Broj soba: 3,0
- Broj kupatila: 3
- Orijentacija: Jug,Zapad
- Energetski razred: U pripremi
- Infrastruktura
- Voda
- Kanalizacija
- Dodatne informacije
- Stanje: očuvano
- Broj parking mjesta: 2
- Lift
- Lokacija
- Država: Hrvatska
- Regija: Zadarska županija
- Općina: Zadar, 23000
- Naselje: Brodarica
- Pogledaj na mapi
- Dozvole
- Građevinska dozvola
- Vlasnički list
- Slične nekretnine
- Kuća - u nizu - Zadar (Jazine) - 210 m2 - 720000 EUR
- Kuća - stambeno-poslovna - Zadar (Arbanasi) - 190 m2 - 265000 EUR
- Kuća - u nizu - Zadar (Arbanasi) - 189 m2 - 340000 EUR
- Kuća - samostojeća - Zadar (Novi Bokanjac) - 186 m2 - 490000 EUR
- Kuća - samostojeća - Zadar (Smiljevac) - 201 m2 - 379000 EUR
 
                  Adria Team Real Estate d.o.o.
Matije Gupca 40, 23000 Zadar
- Svi oglasi ove agencije
- Web site agencije
- Broj u registru posrednika: 38/2017
        Zapratite nas na
    
        
        Facebook-u
    
    i
    
        
        Instagramu
    
    za
    
        najbolje ponude nekretnina u kategoriji Kuće
        u mjestu Zadar, Hrvatska
    
    
    
Navigacija
Kontaktirajte oglašivača
Kontaktirajte oglašivača
 
                  Adria Team Real Estate d.o.o.
Matije Gupca 40, 23000 Zadar
- Tel. agenta: xxxx-xxxx-3499 Prikaži broj
- Tel: xxxx-xxxx-5880 Prikaži broj
- Mob: xxxx-xxxx-8355 Prikaži broj
- Svi oglasi ove agencije
- Web site agencije
- Broj u registru posrednika: 38/2017





























