PRIMOŠTEN- NOVOGRADNJA SA TOP POGLEDOM- visoko prizemlje, A3- 93 m2
Hrvatska, Šibensko-kninska županija, Primošten, Primošten,
-
93
-
3
-
2
-
375000 EUR stambeni kredit
Agencija Adria La Mar nekretnine posreduje u prodaji apartmana u suvremenoj novogradnji smještenoj na jednoj od najatraktivnijih lokacija u Primoštenu. Nekretnina se ističe otvorenim pogledom na more i okolni krajolik, što je čini izvrsnim izborom za život, odmor ili kao sigurnu investiciju.
Zgrada se sastoji od ukupno 14 stambenih jedinica, a svakom stanu pripada:
- garažno parkirno mjesto
- spremište
- mogućnost kupnje dodatnog vanjskog parkirnog mjesta
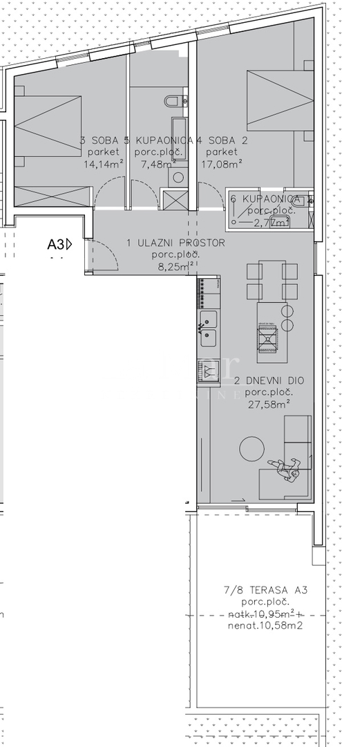
Stan A3 se sastoji od:
- Ulazni prostor (8,25 m2)
- Spavaća soba 1 (17,08 m2)
- Spavaća soba 2 (14,14 m2)
- Dnevni boravak s kuhinjom i blagovaonicom (27,58 m2)
- Kupaonica (7,48 m2)
- Kupaonica (2,77 m2)
Stanu A3 pripada i:
- Natkrivena terasa (10,95 m2 = obračunski 5,48 m2 )
- Nenatkrivena terasa (10,58 m2 = obračunski 2,65 m2)
- Spremište (4,8 m2 = obračunski 2,4 m2)
- Garažno parkirno mjesto (15 m2 = obračunski 7,5 m2)
Sa terase se pruža lijep pogled na Primošten i okolicu.
STANDARD GRADNJE
Nosiva konstrukcija izvedena je od armiranobetonskih zidova debljine 25 cm, dok su međukatne ploče armiranobetonske s termoizolacijom i cementnom glazurom.
Fasada je izvedena u ETICS sustavu s kamenom vunom debljine 10 cm, što osigurava visoku energetsku učinkovitost.
Vanjska stolarija je aluminijska (FEAL TERMO 85VP) u antracit boji, s višeslojnim IZO staklom, motoriziranim roletama, komarnicima i protuprovalnim vratima.
Zgrada je opremljena dizalom, a zajednički prostori obloženi su svijetlim kamenom, čime se dodatno naglašava elegancija prostora.
ZAVRŠNA OBRADA I OPREMA
Podne obloge u stanovima i na terasama izvedene su od protukliznih keramičkih pločica, uz mogućnost odabira keramike prema željama kupca.
U garaži i spremištima izveden je epoxy pod u sivoj boji.
Sanitarni prostori opremljeni su Geberit ugradbenim vodokotlićima, električnim podnim grijanjem i kvalitetnom keramikom.
Zidovi i stropovi su gletani i obojani bijelom poludisperzivnom bojom, dok su spušteni stropovi izvedeni od gipskartonskog sustava.
INSTALACIJE
Sustav vode i odvodnje izveden je PPR cijevima, a svaka stambena jedinica ima zasebno brojilo.
Grijanje i hlađenje osigurano je Samsung multi-split inverterskim klima uređajem, s unutarnjim jedinicama integriranim u spušteni strop.
Predviđena je mehanička ventilacija u sanitarnim prostorima bez prozora, kao i priprema za ventilaciju kuhinjskih napa.
Stanovi su opremljeni LED rasvjetom, pripremom za punionicu električnih vozila, tendama na električni pogon te antenskim i telefonskim priključkom.
DODATNO
Terase su izvedene s dvostrukom hidroizolacijom, integriranim odvodnim kanalima i staklenim ogradama.
Krov objekta toplinski je izoliran XPS pločama debljine 15 cm te dodatno zaštićen TPO hidroizolacijskom folijom.
Zgrada je priključena na gradsku vodovodnu i kanalizacijsku mrežu.
Ova novogradnja u Primoštenu predstavlja sklad moderne arhitekture, vrhunske kvalitete gradnje i ugodnog mediteranskog ambijenta, čineći je idealnim izborom za stanovanje ili ulaganje u nekretninu visoke vrijednosti.
Za više informacija i razgledavanje, slobodno nas konaktirajte na 099/, Magdalena.
*Provizija za kupca naplaćuje se sukladno Općim uvjetima poslovanja.
Zgrada se sastoji od ukupno 14 stambenih jedinica, a svakom stanu pripada:
- garažno parkirno mjesto
- spremište
- mogućnost kupnje dodatnog vanjskog parkirnog mjesta
Stan A3 se sastoji od:
- Ulazni prostor (8,25 m2)
- Spavaća soba 1 (17,08 m2)
- Spavaća soba 2 (14,14 m2)
- Dnevni boravak s kuhinjom i blagovaonicom (27,58 m2)
- Kupaonica (7,48 m2)
- Kupaonica (2,77 m2)
Stanu A3 pripada i:
- Natkrivena terasa (10,95 m2 = obračunski 5,48 m2 )
- Nenatkrivena terasa (10,58 m2 = obračunski 2,65 m2)
- Spremište (4,8 m2 = obračunski 2,4 m2)
- Garažno parkirno mjesto (15 m2 = obračunski 7,5 m2)
Sa terase se pruža lijep pogled na Primošten i okolicu.
STANDARD GRADNJE
Nosiva konstrukcija izvedena je od armiranobetonskih zidova debljine 25 cm, dok su međukatne ploče armiranobetonske s termoizolacijom i cementnom glazurom.
Fasada je izvedena u ETICS sustavu s kamenom vunom debljine 10 cm, što osigurava visoku energetsku učinkovitost.
Vanjska stolarija je aluminijska (FEAL TERMO 85VP) u antracit boji, s višeslojnim IZO staklom, motoriziranim roletama, komarnicima i protuprovalnim vratima.
Zgrada je opremljena dizalom, a zajednički prostori obloženi su svijetlim kamenom, čime se dodatno naglašava elegancija prostora.
ZAVRŠNA OBRADA I OPREMA
Podne obloge u stanovima i na terasama izvedene su od protukliznih keramičkih pločica, uz mogućnost odabira keramike prema željama kupca.
U garaži i spremištima izveden je epoxy pod u sivoj boji.
Sanitarni prostori opremljeni su Geberit ugradbenim vodokotlićima, električnim podnim grijanjem i kvalitetnom keramikom.
Zidovi i stropovi su gletani i obojani bijelom poludisperzivnom bojom, dok su spušteni stropovi izvedeni od gipskartonskog sustava.
INSTALACIJE
Sustav vode i odvodnje izveden je PPR cijevima, a svaka stambena jedinica ima zasebno brojilo.
Grijanje i hlađenje osigurano je Samsung multi-split inverterskim klima uređajem, s unutarnjim jedinicama integriranim u spušteni strop.
Predviđena je mehanička ventilacija u sanitarnim prostorima bez prozora, kao i priprema za ventilaciju kuhinjskih napa.
Stanovi su opremljeni LED rasvjetom, pripremom za punionicu električnih vozila, tendama na električni pogon te antenskim i telefonskim priključkom.
DODATNO
Terase su izvedene s dvostrukom hidroizolacijom, integriranim odvodnim kanalima i staklenim ogradama.
Krov objekta toplinski je izoliran XPS pločama debljine 15 cm te dodatno zaštićen TPO hidroizolacijskom folijom.
Zgrada je priključena na gradsku vodovodnu i kanalizacijsku mrežu.
Ova novogradnja u Primoštenu predstavlja sklad moderne arhitekture, vrhunske kvalitete gradnje i ugodnog mediteranskog ambijenta, čineći je idealnim izborom za stanovanje ili ulaganje u nekretninu visoke vrijednosti.
Za više informacija i razgledavanje, slobodno nas konaktirajte na 099/, Magdalena.
*Provizija za kupca naplaćuje se sukladno Općim uvjetima poslovanja.
- Osnovni podaci
- Novogradnja
- Površina: 93,0 m2
- Broj soba: 3,0
- Broj kupatila: 2
- Orijentacija: Jug
- Energetski razred: U pripremi
- Infrastruktura
- Voda
- Kanalizacija
- ADSL
- Dodatne informacije
- Stanje: očuvano
- Garaža
- Broj parking mjesta: 1
- Lift
- Lokacija
- Država: Hrvatska
- Regija: Šibensko-kninska županija
- Općina: Primošten, 22202
- Naselje: Primošten
- Pogledaj na mapi
- Dozvole
- Slične nekretnine
- Stan - Novogradnja - Primošten - 87 m2 - 611100 EUR
- Stan - Primošten (Primošten) - 86 m2 - 362292 EUR
- Stan - Novogradnja - Primošten (Primošten) - 94 m2 - 450000 EUR
- Stan - Novogradnja - Primošten (Primošten) - 96 m2 - 532290 EUR
- Stan - Novogradnja - Primošten (Primošten) - 84 m2 - 307000 EUR
Zainteresirani ste za ovu nekretninu?
Popunite KONTAKT OBRAZAC i naši agenti će Vas kontaktirati putem telefona ili e-maila u najkraćem mogućem roku.
Kontaktirajte nas
Zapratite nas na
Facebook-u
i
Instagramu
za
najbolje ponude nekretnina u kategoriji Stanovi
u mjestu Primošten, Hrvatska
Navigacija
Kontaktirajte oglašivača
Kontaktirajte oglašivača
La mar nekretnine
Teslina 14, 10000 Zagreb
- Tel: xxxx-xxxx-1306 Prikaži broj
- Mob: xxxx-xxxx-1306 Prikaži broj
-
Licencirani posrednik
- Broj u registru posrednika: 19/2020