Novalja- Babe- II kat- AP 3- 84,32 m2- 295.000 €
Hrvatska, Ličko-senjska županija, Novalja, Novalja,
- 84 m2
- 4
- 2
- 295000 EUR stambeni kredit
                            
                                
                                    Adria La Mar nekretnine posreduje u prodaji stanova u novogradnji na atraktivnoj lokaciji u Novalji.
  Zgrade se sastoje od stanova izuzetne gradnje sa najvišim standardima kvalitete te svakom stanu pripada jedno ili dva vanjska parkirna mjesta.
  
                                
                            
                            
                                
                                    
                                        1. KAT
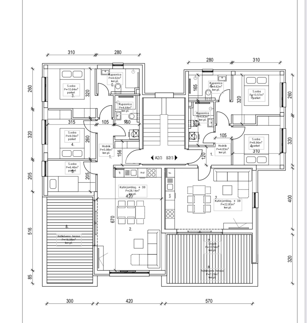
  AP2- podna površina stana stana (zatvoreno) je 69,57 m2+ natkrivena terasa 16,98 m2+ 2 parkirna mjesta 25,00 m2 sveukupno iznosi 111,55 m2 podne površine dok je za obračun sa odbijenim koeficijentima korisna površina =84,32 m2.
  S2 - podna površina stana stana (zatvoreno) je 56,61 m2+ natkrivena terasa 7,29 m2+ loggia 10,56 + 2 parkirna mjesta 25,00 m2, sveukupno iznosi 99,46 m2 podne površine dok je za obračun sa odbijenim koeficijentima korisna površina =74,44 m2.
  II. KAT
  AP3- podna površina stana stana (zatvoreno) je 69,57 m2+ natkrivena terasa 16,98 m2+ 2 parkirna mjesta 25,00 m2 sveukupno iznosi 111,55 m2 podne površine dok je za obračun sa odbijenim koeficijentima korisna površina =84,32 m2.
  S3 - podna površina stana stana (zatvoreno) je 56,61 m2+ natkrivena terasa 7,29 m2+ loggia 10,56 + 2 parkirna mjesta 25,00 m2, sveukupno iznosi 99,46 m2 podne površine dok je za obračun sa odbijenim koeficijentima korisna površina =74,44 m2.
  
 Vrhunska oprema: Pvc stolarija Rehau, 7 komora, 3 brtve, troslojno staklo, komarnici na prozorima, vrhunska unutarnja stolarija, keramika i parket u sobama. Prvoklasne sanitarije-Grohe, Villeroy boch…
 Podno grijanje u svim prostorijama, klime Samsung hlađenje-grijanje u svim dn. boravcima i sobama, staklene ograde.
 Priključak za punjenje elektro ili hibridnih vozila.
 Gotovo svakom stanu pripadaju 2 parkirna mjesta, dok će prizemlja imati vrtove (okućnice).
  Zgrade su smještene u blizini gradske plaže i pješačke udaljenosti od centra Novalje u blizini društvenih sadržaja (u krugu 200-500 m: tržnica, trgovine, shopping centar, ljekarna, dom zdravlja, restorani, barovi, šetnica, plaža...).
 
 Stanove odlikuje funkcionalan raspored pravilnog tlocrta s dvije spavaće sobe te s naglaskom na komforne terase ili balkone.
  
 Za više informacija kontaktirajte nas na  099/ (Magdalena) ili na  
  
 Provizija za kupca iznosi 2% + PDV od ukupno dogovorene kupoprodajne cijene sa uključenim pravnim praćenjem cjelokupnog procesa kupoprodaje.
 
 Adria La Mar nekretnine d.o.o.
 Teslina 14/1, Zagreb
                                    
                                
                            
                            
                              
                                  
                                  ... prikaži sve
                                  
                              
                            
                            
                            
                        
                      - Osnovni podaci
- Novogradnja
- Površina: 84,3 m2
- Broj soba: 4,0
- Broj kupatila: 2
- Sprat: 2
- Energetski razred: U pripremi
- Infrastruktura
- Voda
- Kanalizacija
- Dodatne informacije
- Stanje: očuvano
- Broj parking mjesta: 2
- Lokacija
- Država: Hrvatska
- Regija: Ličko-senjska županija
- Općina: Novalja, 53291
- Naselje: Novalja
- Pogledaj na mapi
- Dozvole
- Građevinska dozvola
- Slične nekretnine
- Stan - Novogradnja - Novalja (Novalja) - 82 m2 - 290185 EUR
- Stan - Novogradnja - Novalja (Novalja) - 76 m2 - 270000 EUR
- Stan - Novogradnja - Novalja (Metajna) - 91 m2 - 340000 EUR
- Stan - Novogradnja - Novalja (Novalja) - 91 m2 - 329000 EUR
- Stan - Novogradnja - Novalja (Novalja) - 85 m2 - 282546 EUR
 
                  La mar nekretnine
Teslina 14, 10000 Zagreb
- Svi oglasi ove agencije
- Web site agencije
- Broj u registru posrednika: 19/2020
        Zapratite nas na
    
        
        Facebook-u
    
    i
    
        
        Instagramu
    
    za
    
        najbolje ponude nekretnina u kategoriji Stanovi
        u mjestu Novalja, Hrvatska
    
    
    
Navigacija
Kontaktirajte oglašivača
Kontaktirajte oglašivača
 
                  La mar nekretnine
Teslina 14, 10000 Zagreb
- Tel: xxxx-xxxx-1306 Prikaži broj
- Mob: xxxx-xxxx-1306 Prikaži broj
- Svi oglasi ove agencije
- Web site agencije
- Broj u registru posrednika: 19/2020



















