Novalja- Babe- I kat- AP 2- 84,32 m2- 295.000 €
Hrvatska, Ličko-senjska županija, Novalja, Novalja,
- 84 m2
- 4
- 2
- 295000 EUR stambeni kredit
Adria La Mar nekretnine posreduje u prodaji stanova u novogradnji na atraktivnoj lokaciji u Novalji.
Zgrade se sastoje od stanova izuzetne gradnje sa najvišim standardima kvalitete te svakom stanu pripada jedno ili dva vanjska parkirna mjesta.
1. KAT
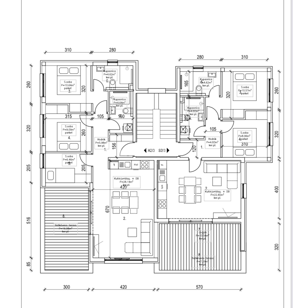
AP2- podna površina stana stana (zatvoreno) je 69,57 m2+ natkrivena terasa 16,98 m2+ 2 parkirna mjesta 25,00 m2 sveukupno iznosi 111,55 m2 podne površine dok je za obračun sa odbijenim koeficijentima korisna površina =84,32 m2.
S2 - podna površina stana stana (zatvoreno) je 56,61 m2+ natkrivena terasa 7,29 m2+ loggia 10,56 + 2 parkirna mjesta 25,00 m2, sveukupno iznosi 99,46 m2 podne površine dok je za obračun sa odbijenim koeficijentima korisna površina =74,44 m2.
II. KAT
AP3- podna površina stana stana (zatvoreno) je 69,57 m2+ natkrivena terasa 16,98 m2+ 2 parkirna mjesta 25,00 m2 sveukupno iznosi 111,55 m2 podne površine dok je za obračun sa odbijenim koeficijentima korisna površina =84,32 m2.
S3 - podna površina stana stana (zatvoreno) je 56,61 m2+ natkrivena terasa 7,29 m2+ loggia 10,56 + 2 parkirna mjesta 25,00 m2, sveukupno iznosi 99,46 m2 podne površine dok je za obračun sa odbijenim koeficijentima korisna površina =74,44 m2.
Vrhunska oprema: Pvc stolarija Rehau, 7 komora, 3 brtve, troslojno staklo, komarnici na prozorima, vrhunska unutarnja stolarija, keramika i parket u sobama. Prvoklasne sanitarije-Grohe, Villeroy boch…
Podno grijanje u svim prostorijama, klime Samsung hlađenje-grijanje u svim dn. boravcima i sobama, staklene ograde.
Priključak za punjenje elektro ili hibridnih vozila.
Gotovo svakom stanu pripadaju 2 parkirna mjesta, dok će prizemlja imati vrtove (okućnice).
Zgrade su smještene u blizini gradske plaže i pješačke udaljenosti od centra Novalje u blizini društvenih sadržaja (u krugu 200-500 m: tržnica, trgovine, shopping centar, ljekarna, dom zdravlja, restorani, barovi, šetnica, plaža...).
Stanove odlikuje funkcionalan raspored pravilnog tlocrta s dvije spavaće sobe te s naglaskom na komforne terase ili balkone.
Za više informacija kontaktirajte nas na 099/ (Magdalena) ili na
Provizija za kupca iznosi 2% + PDV od ukupno dogovorene kupoprodajne cijene sa uključenim pravnim praćenjem cjelokupnog procesa kupoprodaje.
Adria La Mar nekretnine d.o.o.
Teslina 14/1, Zagreb
... prikaži sve
- Osnovni podaci
- Novogradnja
- Površina: 84,3 m2
- Broj soba: 4,0
- Broj kupatila: 2
- Sprat: 1
- Energetski razred: U pripremi
- Infrastruktura
- Voda
- Kanalizacija
- Dodatne informacije
- Stanje: očuvano
- Broj parking mjesta: 2
- Lokacija
- Država: Hrvatska
- Regija: Ličko-senjska županija
- Općina: Novalja, 53291
- Naselje: Novalja
- Pogledaj na mapi
- Dozvole
- Građevinska dozvola
- Slične nekretnine
- Stan - Novogradnja - Novalja (Novalja) - 82 m2 - 290000 EUR
- Stan - Novogradnja - Novalja (Novalja) - 81 m2 - 290000 EUR
- Stan - Novogradnja - Novalja (Novalja) - 84 m2 - 295000 EUR
- Stan - Novogradnja - Novalja (Novalja) - 84 m2 - 295000 EUR
- Stan - Novogradnja - Novalja (Novalja) - 85 m2 - 303000 EUR
La mar nekretnine
Teslina 14, 10000 Zagreb
- Svi oglasi ove agencije
- Web site agencije
- Broj u registru posrednika: 19/2020
Zapratite nas na
Facebook-u
i
Instagramu
za
najbolje ponude nekretnina u kategoriji Stanovi
u mjestu Novalja, Hrvatska
Navigacija
Kontaktirajte oglašivača
Kontaktirajte oglašivača
La mar nekretnine
Teslina 14, 10000 Zagreb
- Tel: xxxx-xxxx-1306 Prikaži broj
- Mob: xxxx-xxxx-1306 Prikaži broj
- Svi oglasi ove agencije
- Web site agencije
- Broj u registru posrednika: 19/2020



















