Luksuzan dvoetažni stan - Industrijska četvrt
Hrvatska, Osječko-baranjska županija, Osijek, Industrijska četvrt,
- 131 m2
- 5
- 2
- 259900 EUR stambeni kredit
Na prodaju se nudi prostran peterosoban, dvoetažni, stan površine 131 m2 u Industrijskoj ćetvrti. Izgradnja zgrade je u završnoj fazi što budućim vlasnicima jamči suvremenost i visoku razinu komfora u kvalitetno izgrađenom objektu, a useljenje se oče
kuje krajem proljeća 2026 godine.
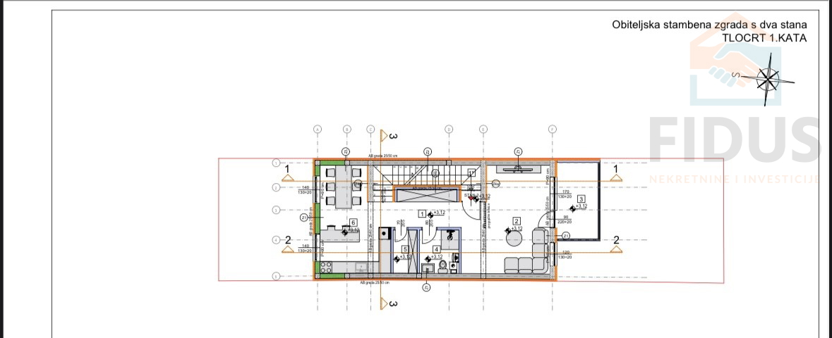
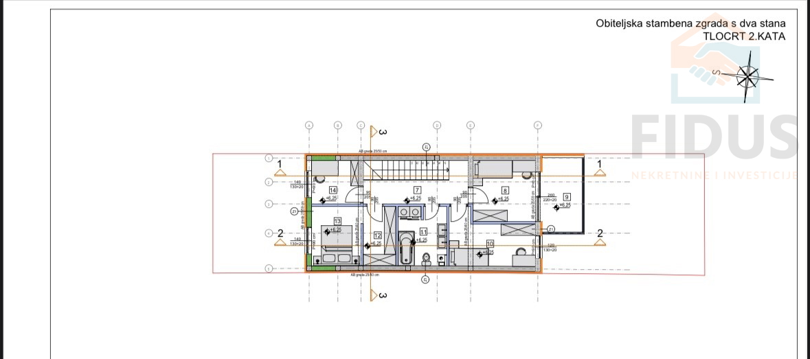
Na prvom katu nalazi se dnevna soba, kupaonica, ostava, blagovaonica s kuhinjom i natkrivenim balkonom, a na drugom katu tri spavaće sobe, manja radna soba, garderoba, kupaonica te natkrivreni balkon što ukupno iznosi 131 m2
Prostranost stana pruža dovoljno prostora za obiteljski život ili funkcionalno uređenje prema vlastitim potrebama. Posebno se ističu natkriveni balkoni idealni za opuštanje ili druženje na otvorenom.
Stan je opremljen podnim grijanjem (prvi kat) i radijatorima na drugom katu, što osigurava visoku energetsku učinkovitost i ugodnu klimu tijekom zimskih mjeseci, a preko ljeta bit će na raspolaganju više klima uređaja. Uz stan dolazi i osigurano parkirno mjesto.
Postoji mogućnost korekcije cijene u ovisnosti od visine iznosa koji će biti plaćen prilikom sklapanja predugovora o kuporpodaji.
Industrijska četvrt poznata je po mirnoj atmosferi i izvrsnoj povezanosti s ostatkom grada Osijeka. U neposrednoj blizini nalaze se svi ključni sadržaji potrebni za svakodnevni život – škole, vrtići, trgovine i javni prijevoz što dodatno doprinosi atraktivnosti ove lokacije.
U suradnji s geodetskim i odvjetničkim uredom provjeravamo sve nekretnine, garantiramo sigurnost i zadovoljstvo svim našim klijentima te bezbrižnu potragu za novim domom.
Detaljnije informacije o nekretninama možete dobiti dolaskom u ured ( Ul. Hrvatske Republike 43, Osijek ), na kontakt telefon ili na mail
Više nekretnina pogledajte na
... prikaži sve
- Osnovni podaci
- Novogradnja
- Površina: 131,0 m2
- Broj soba: 5,0
- Broj kupatila: 2
- Sprat: 1
- Orijentacija: Sjever,Jug
- Energetski razred: U pripremi
- Infrastruktura
- Voda
- Plin
- Kanalizacija
- Dodatne informacije
- Stanje: očuvano
- Broj parking mjesta: 1
- Lokacija
- Država: Hrvatska
- Regija: Osječko-baranjska županija
- Općina: Osijek, 31000
- Naselje: Industrijska četvrt
- Pogledaj na mapi
- Dozvole
- Građevinska dozvola
Fidus nekretnine i investicije d.o.o.
Hrvatske Republike 43, 31000 Osijek
- Svi oglasi ove agencije
- Web site agencije
- Broj u registru posrednika: 36/2023
Zapratite nas na
Facebook-u
i
Instagramu
za
najbolje ponude nekretnina u kategoriji Stanovi
u mjestu Osijek, Hrvatska
Navigacija
Kontaktirajte oglašivača
Kontaktirajte oglašivača
Fidus nekretnine i investicije d.o.o.
Hrvatske Republike 43, 31000 Osijek
- Tel. agenta: xxxx-xxxx-2521 Prikaži broj
- Tel: xxxx-xxxx-2521 Prikaži broj
- Svi oglasi ove agencije
- Web site agencije
- Broj u registru posrednika: 36/2023






