LUKSUZNI APARTMANI UDALJENI 80 m OD MORA, NOVOGRADNJA - KOŽINO
Hrvatska, Zadarska županija, Zadar - Okolica, Kožino,
- 74 m2
- 3
- 1
- 355250 EUR stambeni kredit
Prodaju se luksuzni APARTMANI u novogradnji udaljeni 80 m od mora u Kožinu. Nekretnina se sastoji od prizemlja i 1. te 2. kata. Zgrada ima podzemnu garažu, velika spremišta od 20 m2, dizalo, bazen u prizemlju i na krovnoj terasi.
OPIS NEKRETN
INE:
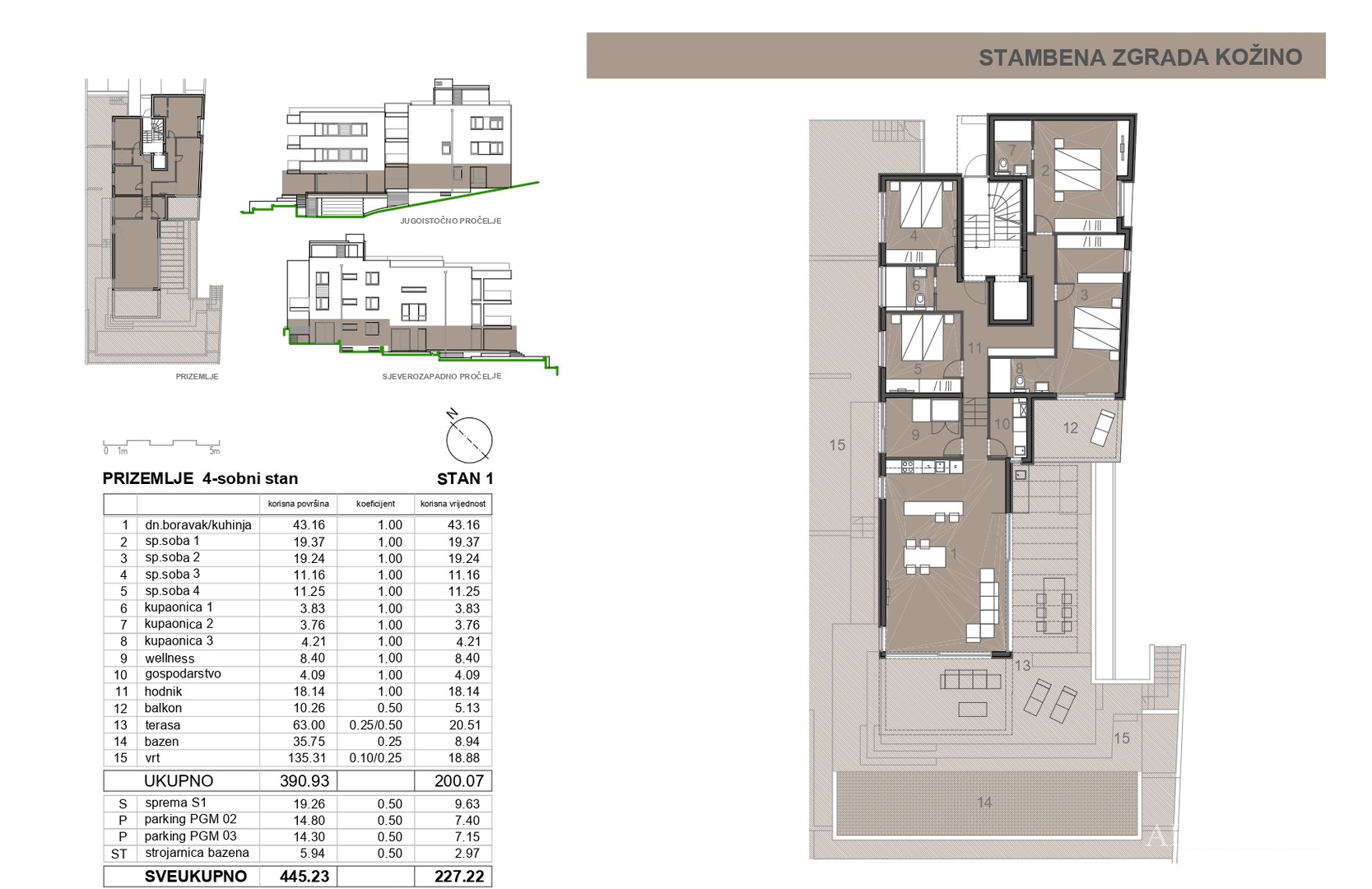
PRIZEMLJE - S1 se prostire preko cijele etaže i ima neto 227,22 m2. Sastoji se od 4 spavaće sobe, 3 kupaonice, gospodarstva, dnevnog boravka s blagovaonicom i kuhinjom, hodnika, wellnessa i vrta. S dvorištem apartman ukupno ima 404m2 površine. U dvorištu se nalazi velika terasa s pogledom na more, natkrivena pergolom i bazen 13x3 m koji ima grijanje i hlađenje. Apartmanu pripadaju 2 parkirališna mjesta u garaži i jedno mjesto ispred zgrade te spremište od 20 m2. Grijanje je podno preko dizalice topline, a svaka soba ima split klimatizacijsku jedinicu koja grije i hladi. Apartman će se prodavati namješten. - €
1. KAT - S2 ima neto 125,83 m2. Sastoji se od 3 spavaće sobe, 2 kupaonice, dnevnog boravka s blagovaonicom i kuhinjom, gospodarstva, hodnika, terase s pogledom na more i pripremom za ljetnu kuhinju. Split klimatizacija u svakoj prostoriji za grijanje i hlađenje te podno grijanje na struju u kupaonicama. Pripada mu jedno parkirališno mjesto u garaži i jedno mjesto ispred zgrade te spremište od 20 m2. - €
S3 ima neto 74.36 m2. Sastoji se od 2 spavaće sobe, kupaonice, dnevnog boravka s blagovaonicom i kuhinjom, hodnika te prekrasne terase s pogledom na more i pripremom za ljetnu kuhinju. Split klimatizacija u svakoj prostoriji za grijanje i hlađenje te podno grijanje na struju u kupaonici. Pripada mu jedno parkirališno mjesto u garaži i jedno mjesto ispred zgrade te spremište od 20 m2. - €
2. KAT - S4 se prostire preko cijele etaže i krovne terase, ima neto 265,06 m2, a ukupna korisna površina mu iznosi 404m2. Sastoji se od 4 spavaće sobe, 3 kupaonice, dnevnog boravka s blagovaonicom i kuhinjom, gospodarstva, hodnika te dvije terase s pogledom na more. Grijanje je podno preko dizalice topline, a svaka soba ima split klimatizacijsku jedinicu koja grije i hladi. Na krovnoj terasi nalazi se lounge prostor s pripremom za kućno kino, kuhinjsko-blagovaonski dio natkriven pergolom, sunčalište i infinity bazen 6x3 m grijan i hlađen. - €
OPIS MATERIJALA:
Svi apartmani opremljeni su vrhunskom talijanskom keramikom, armature Grohe, sanitarije Laufen, Geberit vodokotlići.
Fasadni sustav STO, 10 cm debljine, kombinacija stiropor i kamena vuna.
REHAU stolarija s roletama na struju i komarnicima.
Zgrada ima videonadzor HiKVision kamerama.
Za sve dodatne informacije i dogovor o terminu obilaska, slobodno nas u bilo kojem trenutku kontaktirajte s povjerenjem.
... prikaži sve
- Osnovni podaci
- Novogradnja
- Površina: 74,4 m2
- Broj soba: 3,0
- Broj kupatila: 1
- Sprat: 1
- Orijentacija: Jug,Zapad
- Energetski razred: A+
- Infrastruktura
- Voda
- Kanalizacija
- Klima uređaj
- Dodatne informacije
- Stanje: očuvano
- Podrum
- Garaža
- Broj parking mjesta: 8
- Lift
- Lokacija
- Država: Hrvatska
- Regija: Zadarska županija
- Općina: Zadar - Okolica, 23000
- Naselje: Kožino
- Pogledaj na mapi
- Dozvole
- Građevinska dozvola
- Vlasnički list
- Slične nekretnine
- Stan - Novogradnja - Zadar - Okolica (Petrčane) - 74 m2 - 269000 EUR
- Stan - Novogradnja - Zadar - Okolica (Petrčane) - 78 m2 - 312000 EUR
- Stan - Novogradnja - Zadar - Okolica (Petrčane) - 71 m2 - 269000 EUR
- Stan - Novogradnja - Zadar - Okolica (Petrčane) - 72 m2 - 229000 EUR
- Stan - Novogradnja - Zadar - Okolica (Kožino) - 71 m2 - 270000 EUR
Adria Team Real Estate d.o.o.
Matije Gupca 40, 23000 Zadar
- Svi oglasi ove agencije
- Web site agencije
- Broj u registru posrednika: 38/2017
Zapratite nas na
Facebook-u
i
Instagramu
za
najbolje ponude nekretnina u kategoriji Stanovi
u mjestu Zadar - Okolica, Hrvatska
Navigacija
Kontaktirajte oglašivača
Kontaktirajte oglašivača
Adria Team Real Estate d.o.o.
Matije Gupca 40, 23000 Zadar
- Tel. agenta: xxxx-xxxx-9967 Prikaži broj
- Tel: xxxx-xxxx-5880 Prikaži broj
- Mob: xxxx-xxxx-8355 Prikaži broj
- Svi oglasi ove agencije
- Web site agencije
- Broj u registru posrednika: 38/2017




























