SAMOBOR- Novogradnja - I kat - B1- 140,86 m2
Hrvatska, Zagrebačka županija, Samobor, Perivoj,
- 141 m2
- 4
- 2
- 491601 EUR stambeni kredit
Agencija Adria La Mar nekretnine posreduje u prodaji stanova u novogradnji u Samoboru.
Projekt se sastoji od dvije zgrade od kojih je jedna stambeno-poslovna, a druga stambena.
U stambeno-poslovnoj zgradi preostalo je slobodno četiri stana, dok
u sambenoj zgradi ima šest stanova, od kojih je jedan dvoetažni.
Stambena zgrada sastoji se od 3 kata. U prizemlju su smještena parkirna i garažna mjesta. Na I. katu nalazi se tri stana, dok na II. katu se nalaze dva stana i jedan dvoetažni koji se prostire i na III. kat.
U stambeno-poslovnoj zgradi u prizemlju se nalazi poslovni prostor u funkciji ureda, dok se stanovi prostiru na I. i II. i III. katu te imaju zaseban ulaz u zgradu.
Zgrade se grade po najvišim standardima te će svi stanovi imati podno grijanje putem dizalice topline, hlađenje putem klima na multi Split sustav, kupaonska galanterija I klase, PVC stolarija sa komarnicima u antracit boji te protuprovalna vrata.
Stambeno-poslovna zgrada će imati lift.
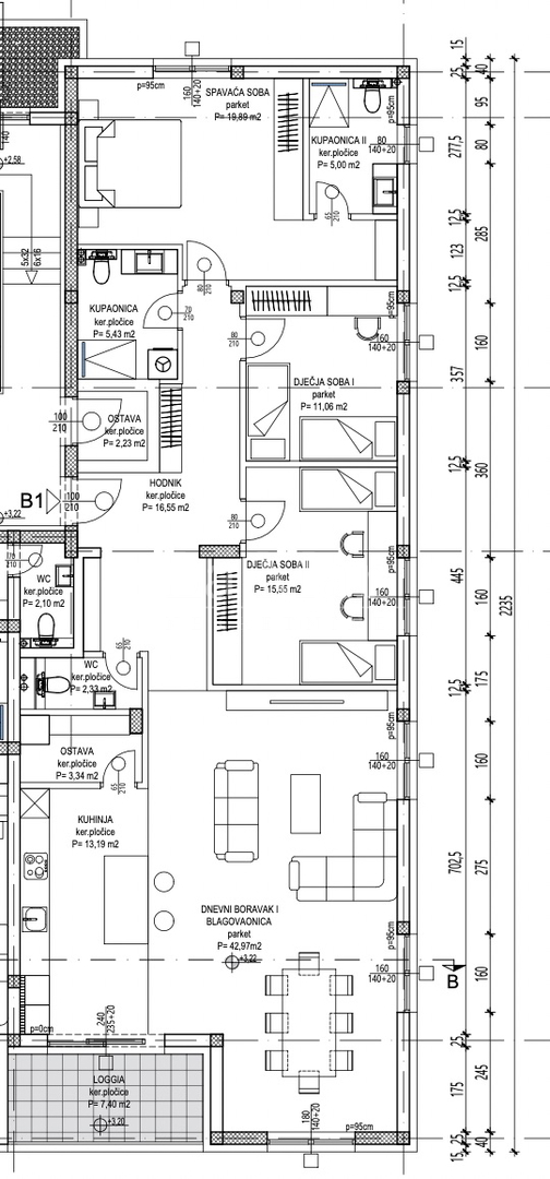
Stan oznake B1 nazali se u stambeno-poslovnoj zgradi na I.katu, ukupne kvadrature 140,86 m2 s obračunatim koeficijentom.
Sastoji se od hodnika, tri spavaće sobe od kojih jedna ima vlastitu kupaonicu, još jedne kupaonice, wc-a, ostave, dnevnog boravka i blagovaone te kuhinje i loggie.
Moguće useljenje na ljeto 2026. godine.
Uz stan kupuje se parkirno mjesto po cijenu od 10.000 € ili opcionalno garažno mjesto po cijeni od 20.000 €.
Za više informacija i razgled nekretnine kontaktirajte nas na 099/ ili na .
Provizija za kupca plaća se sukladno Općim uvjetima poslovanja te uključuje pravno praćenje cjelokupnog procesa kupoprodaje uz izradu cjelokupne dokumentacije.
Adria La Mar nekretnine d.o.o.
Teslina 14/1, Zagreb
... prikaži sve
- Osnovni podaci
- Novogradnja
- Površina: 140,9 m2
- Broj soba: 4,0
- Broj kupatila: 2
- Sprat: 1
- Infrastruktura
- Voda
- Kanalizacija
- Dodatne informacije
- Stanje: očuvano
- Broj parking mjesta: 1
- Lokacija
- Država: Hrvatska
- Regija: Zagrebačka županija
- Općina: Samobor, 10430
- Naselje: Perivoj
- Pogledaj na mapi
- Dozvole
- Građevinska dozvola
- Slične nekretnine
- Stan - Novogradnja - Samobor (Perivoj) - 141 m2 - 491601 EUR
La mar nekretnine
Teslina 14, 10000 Zagreb
- Svi oglasi ove agencije
- Web site agencije
- Broj u registru posrednika: 19/2020
Zapratite nas na
Facebook-u
i
Instagramu
za
najbolje ponude nekretnina u kategoriji Stanovi
u mjestu Samobor, Hrvatska
Navigacija
Kontaktirajte oglašivača
Kontaktirajte oglašivača
La mar nekretnine
Teslina 14, 10000 Zagreb
- Tel: xxxx-xxxx-1306 Prikaži broj
- Mob: xxxx-xxxx-1306 Prikaži broj
- Svi oglasi ove agencije
- Web site agencije
- Broj u registru posrednika: 19/2020



