Jednoiposoban stan u izgradnji

Srbija, Centralna Srbija, Paraćin, Centar (extra zona),

  • Oglas broj: 245727
  • Agencijska šifra: 9500
  • Datum objave: 01.08.2025
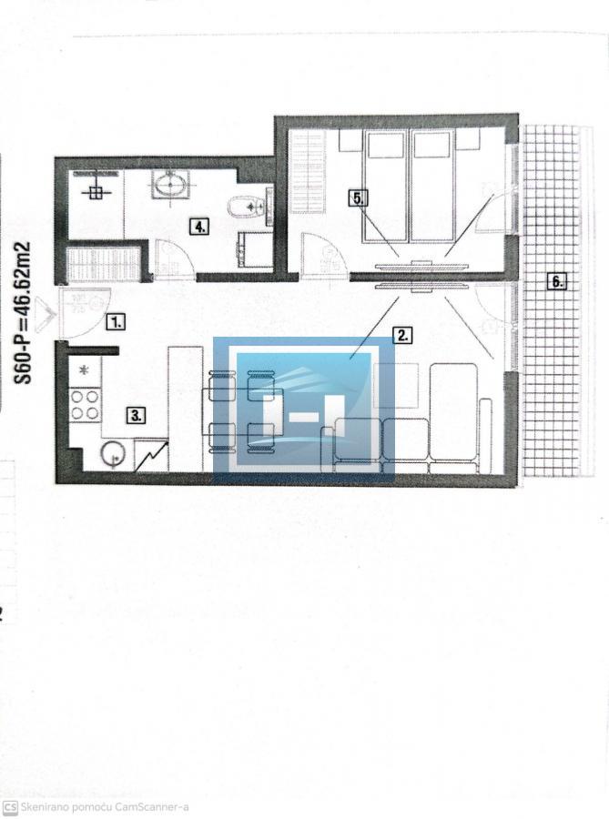
Prodajemo stan u izgradnji stambene zgrade sa liftom. Grejanje-gas, Izdvojena kuhinja. Spavaća soba sa izlaskom na terasu. Izražena cena je sa PDV-om. Moguć je povraćaj PDV-a za kupce prvog stana. Informacije: 065/ 064/ 035/570-477 Agencija: Kralja Petra I 53, Lokal 6 Radnim danima Vas čekamo 09-18h Subotom 09-14h ... prikaži sve
  • Osnovni podaci
  • Površina: 46,6 m2
  • Broj soba: 1,5
  • Sprat: 1 od 6
  • Dodatne informacije
  • Stanje: potrebna adaptacija
Navigacija
Pretraga
Kontaktirajte oglašivača



Kontaktirajte oglašivača
Logo agencije HEROLDO NEKRETNINE D.O.O., Jagodina
HEROLDO NEKRETNINE D.O.O., Jagodina

Kneginje Milice 74, None Jagodina

Obračun kredita
Kreditni kalkulator