Otok Krk, Vrbnik, okolica, građevinsko zemljište 885 m2 sa građevinskom dozvolom, prodaja
Hrvatska, Primorsko-goranska županija, Vrbnik, Vrbnik,
- 885 m2
- 170000 EUR stambeni kredit
                            
                                
                                    Vrbnik, okolica, građevinsko zemljište na mirnoj lokaciji.
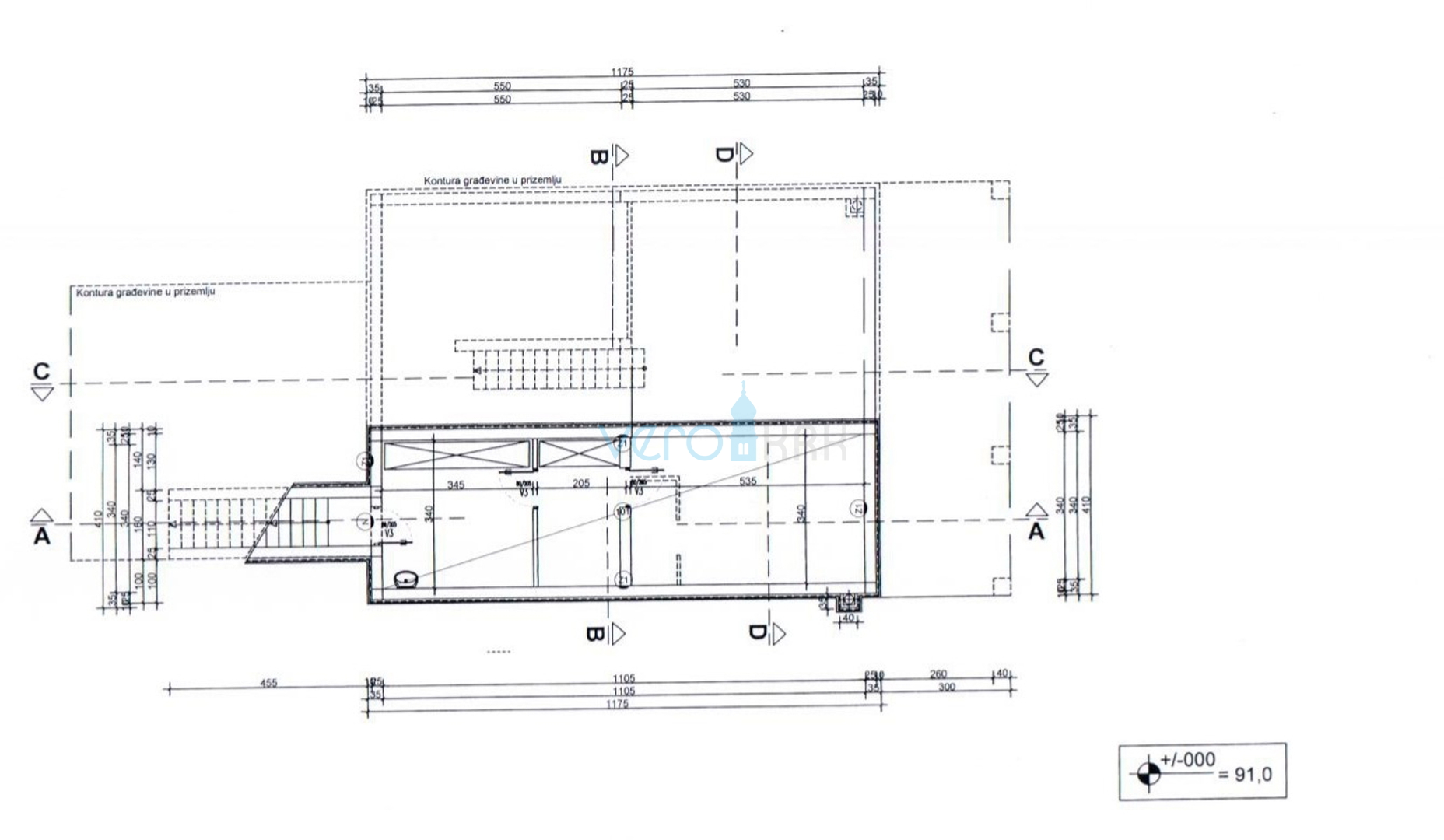
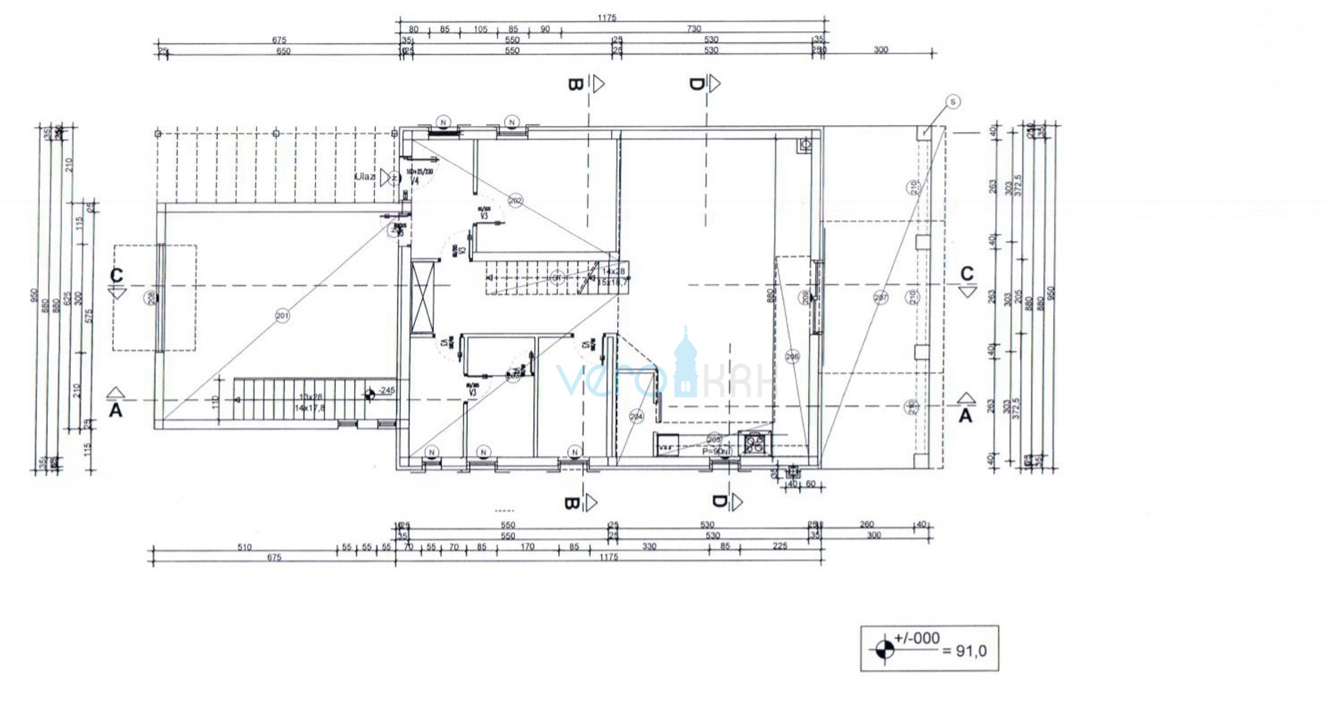
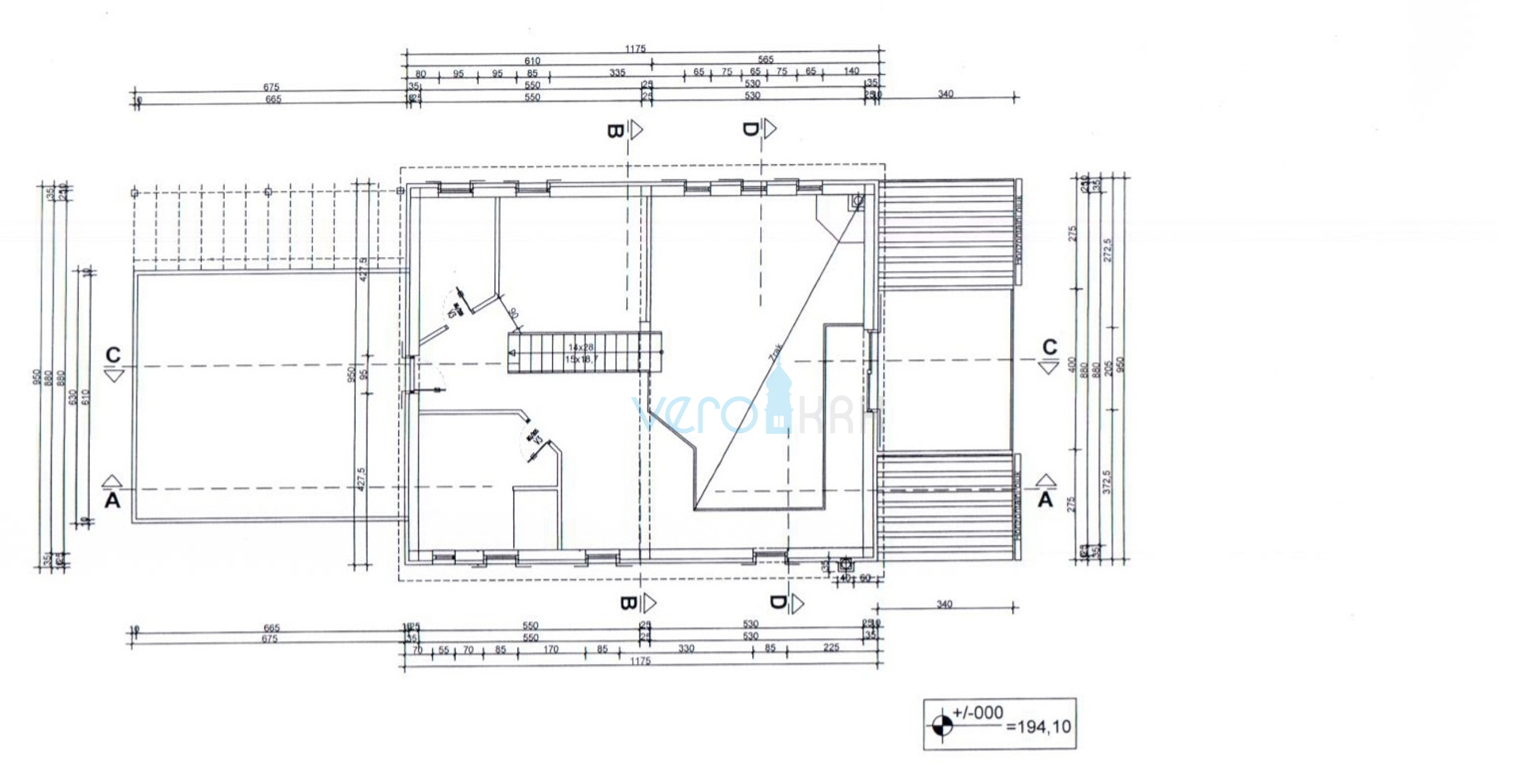
 Prodaje se građevinsko zemljište sa građevinskom dozvolom za gradnju samostojeće obiteljske kuće, ukupne neto površine 311,40 m2 sa garažom. (PO+P+P1). Zemljište se nalazi u mirnome dijelu, 
                                
                            
                            
                                
                                    
                                        okruženo zelenilom. Struja je na zemljištu, a voda je u blizini.
 Do mora i plaže je 1300m.
 Dobrodošli na ogled!
                                    
                                
                            
                            
                              
                                  
                                  ... prikaži sve
                                  
                              
                            
                            
                            
                        
                      - Osnovni podaci
- Vrsta zemljišta: Građevinsko zemljište
- Površina: 885,0 m2
- Dodatne informacije
- Stanje: očuvano
- Lokacija
- Država: Hrvatska
- Regija: Primorsko-goranska županija
- Općina: Vrbnik, 51516
- Naselje: Vrbnik
- Pogledaj na mapi
- Dozvole
- Građevinska dozvola
- Vlasnički list
- Slične nekretnine
- Zemljište - Vrbnik (Vrbnik) - Građevinsko zemljište - 850 m2 - 180000 EUR
- Zemljište - Vrbnik (Vrbnik) - Građevinsko zemljište - 900 m2 - 140000 EUR
- Zemljište - Vrbnik (Risika) - Građevinsko zemljište - 931 m2 - 250000 EUR
- Zemljište - Vrbnik (Garica) - Građevinsko zemljište - 870 m2 - 103000 EUR
- Zemljište - Vrbnik (Vrbnik) - Građevinsko zemljište - 926 m2 - 420000 EUR
 
                  Vero Krk j.d.o.o.
Put mora 2/1, 51513 Omišalj
- Svi oglasi ove agencije
- Web site agencije
- Broj u registru posrednika: 193/2019
        Zapratite nas na
    
        
        Facebook-u
    
    i
    
        
        Instagramu
    
    za
    
        najbolje ponude nekretnina u kategoriji Zemljišta
        u mjestu Vrbnik, Hrvatska
    
    
    
Navigacija
Kontaktirajte oglašivača
Kontaktirajte oglašivača
 
                  Vero Krk j.d.o.o.
Put mora 2/1, 51513 Omišalj
- Tel. agenta: xxxx-xxxx-2102 Prikaži broj
- Tel: xxxx-xxxx-4911 Prikaži broj
- Mob: xxxx-xxxx-2102 Prikaži broj
- Svi oglasi ove agencije
- Web site agencije
- Broj u registru posrednika: 193/2019
.jpg?class=00dadffd41caf1c64f55995de95ff8c3&ts=1727968744)
















.jpg?class=00dadffd41caf1c64f55995de95ff8c3&ts=1727968744)