GRAĐEVINSKO ZEMLJIŠTE S PRAVOMOĆNOM GRAĐEVINSKOM DOZVOLOM ZA STAMBENI OBJEKT SA 6 STAMBENIH JEDINICA - PRIVLAKA
Hrvatska, Zadarska županija, Privlaka, Privlaka,
- 690 m2
- 310000 EUR stambeni kredit
                            
                                
                                    Na prodaju GRAĐEVINSKO ZEMLJIŠTE površine 690 m2 u atraktivnom dijelu Privlake. Pravilnog je oblika.
   
  OPIS NEKRETNINE:
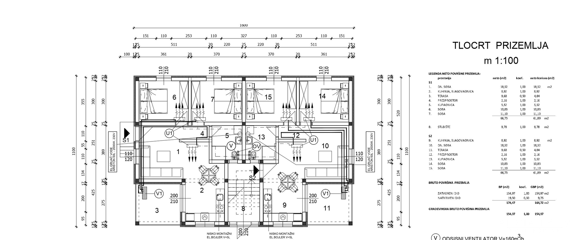
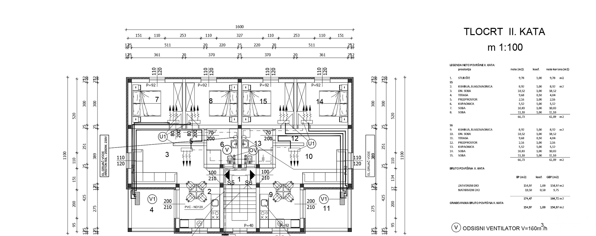
  – izdana pravomoćna građevinska dozvola za izgradnju stambenog objekta sa 6 stambenih jedinica od kojih svaka ima 61,89 m
                                
                            
                            
                                
                                    
                                        2, a protežu se na prizemlje te prvi i drugi kat;
 – objekt je projektiran kao zgrada 2b skupine;
 – svaka stambena jedinica predviđena je s: 2 spavaće sobe, dnevnim boravkom, kuhinjom i blagovaonicom, kupaonicom te terasom;
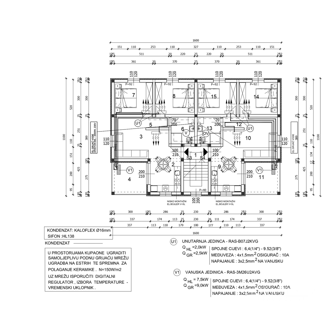
  - za sustav grijanja i hlađenja odabran je multi split sustav s vanjskim i unutarnjim zidnim jedinicama;
  - klimatizacijski uređaji su opremljeni G10 inverter tehnologijom (ušteda energije) i WiFi upravljanjem pomoću mobilnog telefona (pravovremeno uključenje i isključenje);
  - zgrada je s vanjske strane izrađena šupljom opekom 25 cm i izolirana s 12 cm polistirena
  Odlična prilika za investitore i graditelje – projekt je spreman za početak gradnje bez dodatnih birokratskih prepreka!
   
  Za sve dodatne informacije i dogovor o terminu obilaska, slobodno nas u bilo kojem trenutku kontaktirajte s povjerenjem.
                                    
                                
                            
                            
                              
                                  
                                  ... prikaži sve
                                  
                              
                            
                            
                            
                        
                      - Osnovni podaci
- Vrsta zemljišta: Građevinsko zemljište
- Površina: 690,0 m2
- Dodatne informacije
- Stanje: očuvano
- Lokacija
- Država: Hrvatska
- Regija: Zadarska županija
- Općina: Privlaka, 23233
- Naselje: Privlaka
- Pogledaj na mapi
- Dozvole
- Građevinska dozvola
- Vlasnički list
- Slične nekretnine
- Zemljište - Privlaka (Privlaka) - Građevinsko zemljište - 695 m2 - 150000 EUR
- Zemljište - Privlaka (Privlaka) - Građevinsko zemljište - 690 m2 - 310000 EUR
- Zemljište - Privlaka (Privlaka) - Građevinsko zemljište - 626 m2 - 94000 EUR
- Zemljište - Privlaka - Građevinsko zemljište - 691 m2 - 160000 EUR
- Zemljište - Privlaka - Građevinsko zemljište - 754 m2 - 165880 EUR
 
                  Adria Team Real Estate d.o.o.
Matije Gupca 40, 23000 Zadar
- Svi oglasi ove agencije
- Web site agencije
- Broj u registru posrednika: 38/2017
        Zapratite nas na
    
        
        Facebook-u
    
    i
    
        
        Instagramu
    
    za
    
        najbolje ponude nekretnina u kategoriji Zemljišta
        u mjestu Privlaka, Hrvatska
    
    
    
Navigacija
Kontaktirajte oglašivača
Kontaktirajte oglašivača
 
                  Adria Team Real Estate d.o.o.
Matije Gupca 40, 23000 Zadar
- Tel. agenta: xxxx-xxxx-9967 Prikaži broj
- Tel: xxxx-xxxx-5880 Prikaži broj
- Mob: xxxx-xxxx-8355 Prikaži broj
- Svi oglasi ove agencije
- Web site agencije
- Broj u registru posrednika: 38/2017






