Apartman S2 99 m2 PRODAJA Sveti Filip i Jakov, 3s, prizemlje, parking, vrt
Hrvatska, Zadarska županija, Sveti Filip I Jakov, Sveti Filip i Jakov,
- 99 m2
- 3
- 1
- 396.000 EUR Wohnungsbaudarlehen
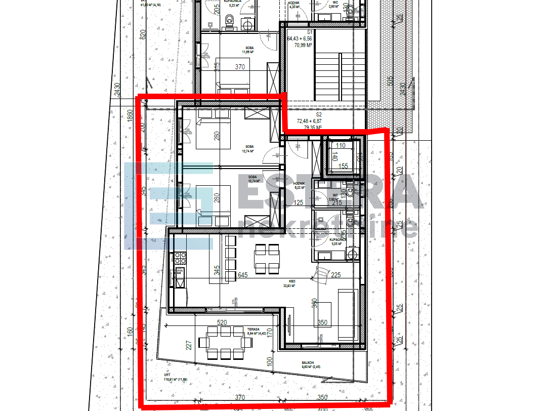
Wohnung mit Garten zu verkaufen – Sveti Filip i Jakov (WOHNUNG 2) Zum Verkauf steht eine moderne und funktionale Wohnung mit privatem Garten, die sich in einem kleinen Wohngebäude mit insgesamt sieben Wohnungen befindet, in einer ruhigen und sehr gef
ragten Lage in Sveti Filip i Jakov. Die Nähe zum Meer und zu allen wichtigen Einrichtungen macht diese Immobilie ideal sowohl für touristische Vermietung als auch für komfortables ganzjähriges Wohnen. Die Wohnung besteht aus zwei Schlafzimmern, einem geräumigen Wohnzimmer, das mit Küche und Essbereich verbunden ist, einem Badezimmer, einer Terrasse und einem Balkon mit Zugang zum privaten Garten, der zusätzliche Privatsphäre und Komfort bietet. Ausstattung der Wohnung: - Parkettböden in den Schlafzimmern - Klimaanlage in allen Räumen - Fußbodenheizung im Badezimmer - PVC-Fenster mit hochwertigen Rollläden - Das Gebäude ist mit einem Aufzug ausgestattet Zur Wohnung gehören ein Kellerraum und ein privater Parkplatz. Flächen (berechnet nach Nutzfläche – NF): - Innenfläche: 72,48 m2 - Terrasse: 8,84 m2 × 0,50 = 4,42 m2 - Balkon: 9,80 m2 × 0,25 = 2,45 m2 - Garten: 118,91 m2 × 0,10 = 11,89 m2 - Keller: 10,16 m2 × 0,50 = 5,08 m2 - Parkplatz: 13,20 m2 × 0,20 = 2,64 m2 Gesamte Nutzfläche (NF): 98,96 m2 Diese Immobilie stellt eine hervorragende Gelegenheit für Investitionen oder ein ruhiges Leben an einem der begehrtesten Orte Mittel-Dalmatiens dar. Kontakt: Vedran Knežević + (WhatsApp und Viber verfügbar)
... zeige alles
- Grundinformation
- Neubau
- Fläche: 99,0 m2
- Räume: 3,0
- Badezimmer: 1
- Orientierung: Westen,Ost,Süd
- Energieeffizienz: In Vorbereitung
- Infrastruktur:
- Wasser
- Abwasser
- Klimaanlage
- Weitere Informationen:
- Zustand: Gepflegt
- Anzahl Parkplätze: 1
- Standort:
- Land: Hrvatska
- Region: Zadarska županija
- Stadt: Sveti Filip I Jakov, 23207
- Ort: Sveti Filip i Jakov
- Schauen Sie auf der Karte:
- Berechtigungen
- Baugenehmigung
- Ähnliche Eigenschaften
- Wohnung - Neubau - Sveti Filip I Jakov (Sveti Filip i Jakov) - 94 m2 - 355.350 EUR
- Wohnung - Neubau - Sveti Filip I Jakov (Sveti Filip i Jakov) - 92 m2 - 369.000 EUR
- Wohnung - Neubau - Sveti Filip I Jakov - 101 m2 - 598.230 EUR
- Wohnung - Neubau - Sveti Filip I Jakov (Sveti Filip i Jakov) - 93 m2 - 345.000 EUR
- Wohnung - Neubau - Sveti Filip I Jakov - 104 m2 - 612.685 EUR
Estera nekretnine
Nemčićeva 10, 10000 Zagreb
- Alle Agenturanzeigen
- Website der Agentur
- Nummer im Maklerregister:
Folgen Sie uns auf
Facebook
und
Instagram
für
die besten Immobilienangebote in der Kategorie Wohnungen
in Sveti Filip I Jakov, Hrvatska
Navigation
Kontaktieren Sie die Agentur
Kontaktieren Sie die Agentur
Estera nekretnine
Nemčićeva 10, 10000 Zagreb
- Telefonnummer des Agenten xxxx-xxxx-8465 Zeigen
- Tel: xxxx-xxxx-9444 Zeigen
- Fax: xxxx-xxxx-9445 Zeigen
- Alle Agenturanzeigen
- Website der Agentur
- Nummer im Maklerregister:





