APARTMENTS 55 m FROM THE SEA, NEW CONSTRUCTION - VIR
Hrvatska, Zadarska županija, Vir, Vir,
                            
                                
                                    For sale APARTMENTS in a residential building under construction on the island of Vir. The property consists of 3 residential units spread over ground floor, 1st and 2nd floor and is only 55 m from the sea.
  PROPERTY DESCRIPTION:
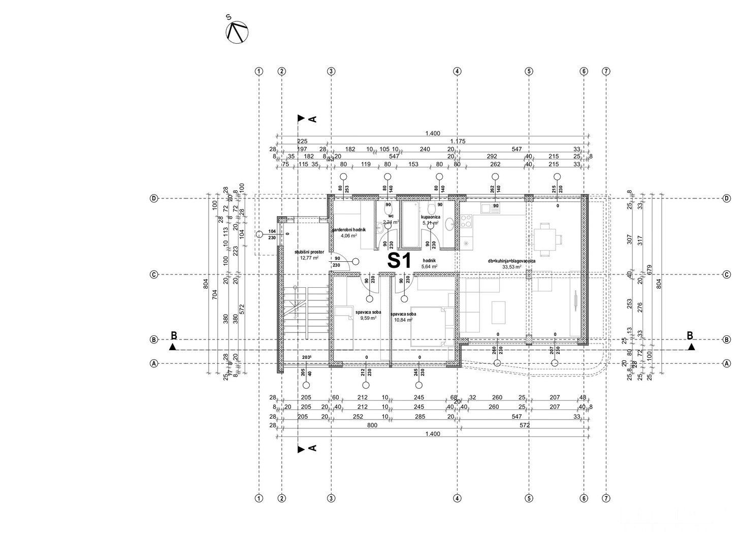
  GROUND FLOOR: S
                                
                            
                            
                                
                                    
                                        1 - living room + kitchen + dining room (33.53 m2), toilet (2.24 m2), 2 bedrooms (9.59 m2, 10.84 m2), hallway (5.64 m2), bathroom (5.11 m2), wardrobe (4.06 m2), land and sea view from the terrace - 71.01 m2
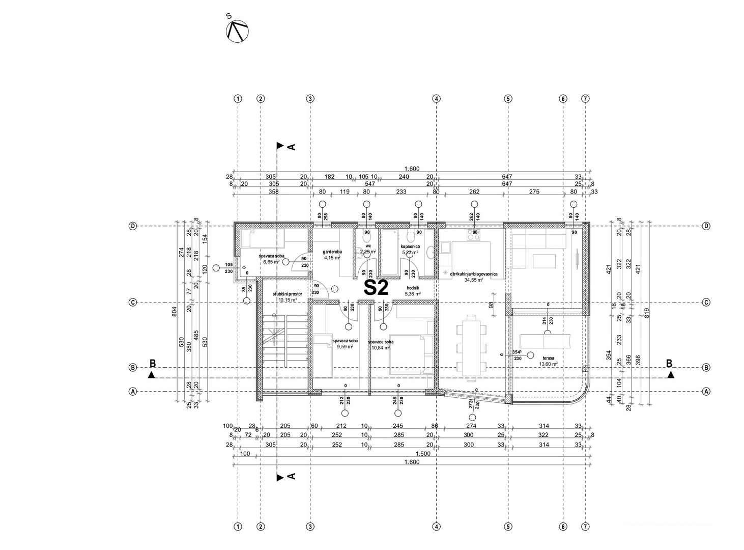
  1ST FLOOR: S2 - living room + kitchen + dining room (34.53 m2), toilet (2.29 m2), 3 bedrooms (9.59 m2, 10.84 m2, 34.53 m2), hallway (5.36 m2), bathroom (5.23 m2), wardrobe (4.15 m2), covered terrace (6.80 m2) - 85.44 m2 - SOLD!
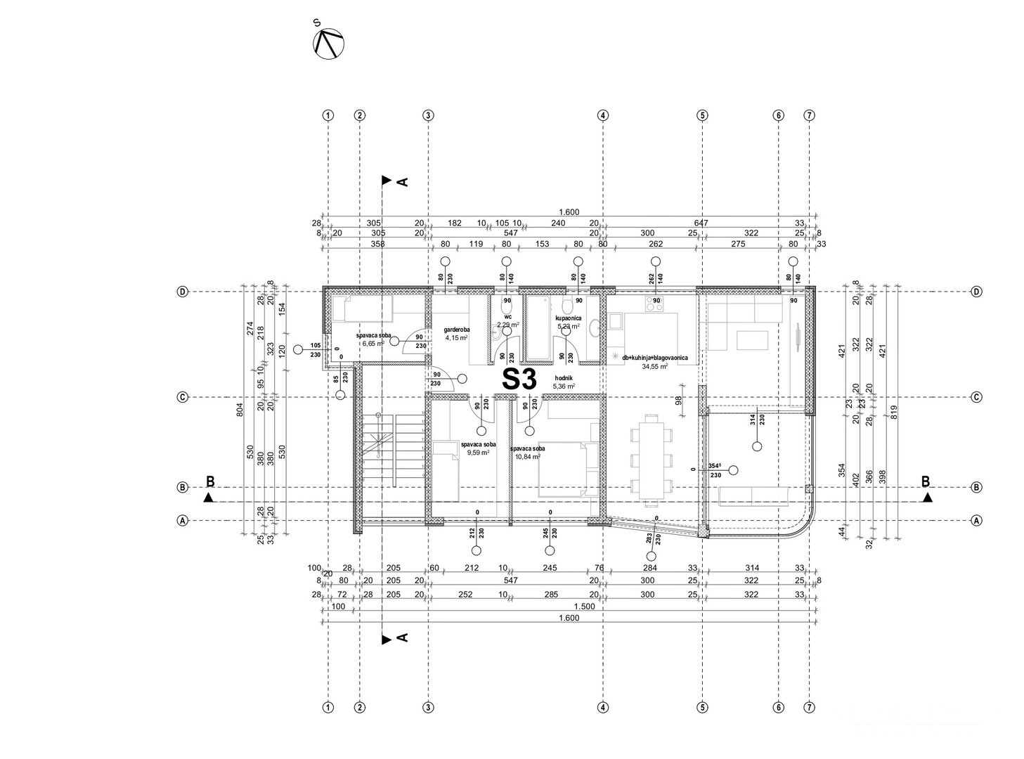
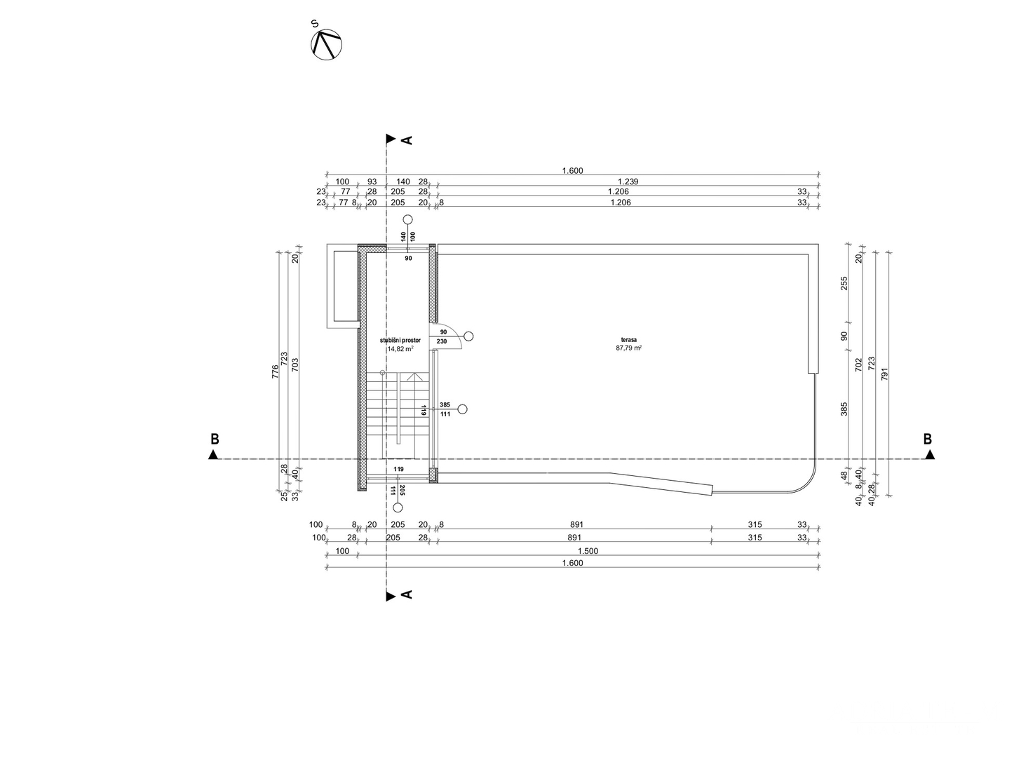
  2ND FLOOR: S3 - living room + kitchen + dining room (34.53 m2), toilet (2.29 m2), 3 bedrooms (9.59 m2, 10.84 m2, 34.53 m2), hallway (5.36 m2), bathroom (5.23 m2), wardrobe (4.15 m2), covered terrace (6.80 m2), uncovered terrace (21.95 m2), additional room on the roof and large roof terrace with direct sea and Velebit view - 107.39 m2
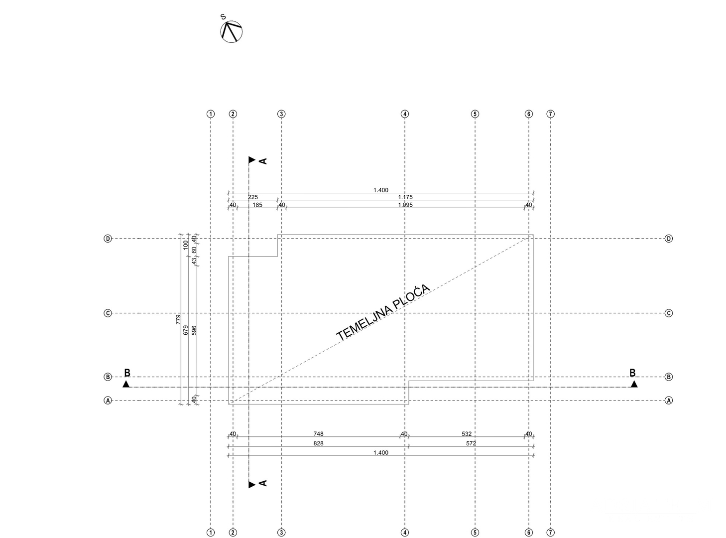
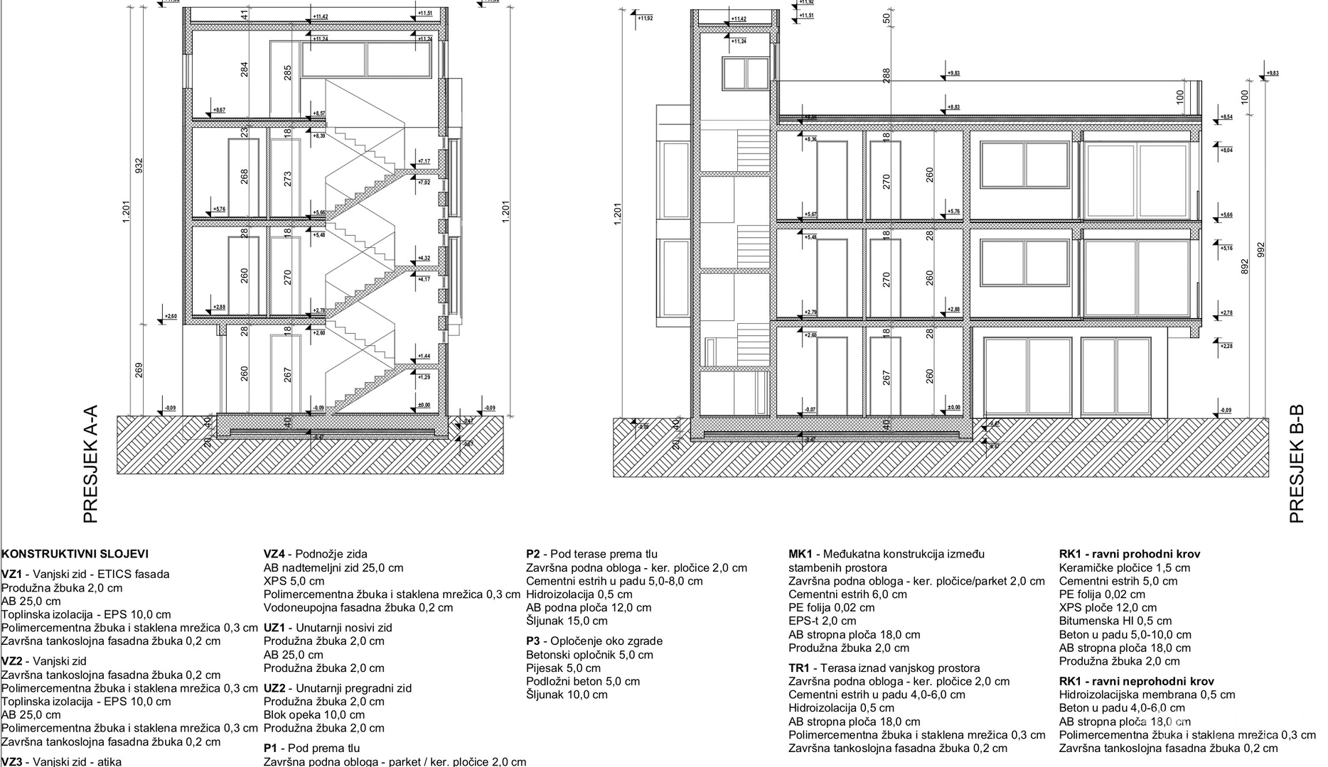
  Reinforced concrete structure.
  The facade will be made in the ETICS system based on EPS 10.0 cm thick.
   
  The island of Vir is one of the most famous tourist centers in Croatia. It is located in the extreme northwest of Zadar County. It is surrounded by the Vir Sea, Povljana Channel and numerous smaller bays. It is connected to the mainland by a bridge. The indented coastline of the island of Vir, 31.43 km long, is adorned with many beaches, from sandy, pebble to rocky, cragy, from crowded arranged beaches with various contents to intimate coves, as a part of untouched nature. The beaches of the island of Vir, partly located next to pine forests with crystal clear sea, make this island ideal for a family vacation. Apart from tourism in the summer months, Vir is an ideal oasis of peace for family life in winter.
 
 For all additional information and agreement on the date of the tour, feel free to contact us at any time with confidence.
                                    
                                
                            
                            
                            
                              
                                  
                                  ... show all
                                  
                              
                            
                            
                        
                      - Basic information
- New building
- Property area: 71.0 m2
- Number of rooms: 3.0
- Bathrooms number: 1
- Energy class: In preparation
- Infrastructure:
- Water
- Active telephone line
- Telephone installation
- Sewage
- Air conditioner
- Additional information:
- State: preserved
- Parking spaces: 5
- Location
- Country: Hrvatska
- Region: Zadarska županija
- Municipality: Vir, 23234
- Settlement: Vir
- Location view on the map
- Permits
- Building permit
- Certificate of ownership
 
                  Adria Team Real Estate d.o.o.
Matije Gupca 40, 23000 Zadar
- All listings of this agency
- Agency web site
- Number in the register of intermediaries: 38/2017
        Follow us on
    
        
        Facebook
    
    and
    
        
        Instagram
    
    for
    
        the best real estate offers in the category Apartments
        in city Vir, Hrvatska
    
    
    
Navigation menu
Contact the advertiser
Contact the advertiser
 
                  Adria Team Real Estate d.o.o.
Matije Gupca 40, 23000 Zadar
- All listings of this agency
- Agency web site
- Number in the register of intermediaries: 38/2017

















