TOWNHOUSES WITH GARDENS, 200 M FROM THE BEACH!!! PRIME LOCATION!! PAG - NOVALJA
Hrvatska, Ličko-senjska županija, Novalja, Novalja,
House for sale with gardens, new building - top location, Pag - Novalja.
PROPERTY DESCRIPTION:
AP1 (2 floors) - Ground floor: living room, kitchen, dining room, pantry / storage room, entrance hall, toilet, terrace; 1st floor: 2 bedrooms, bathroo
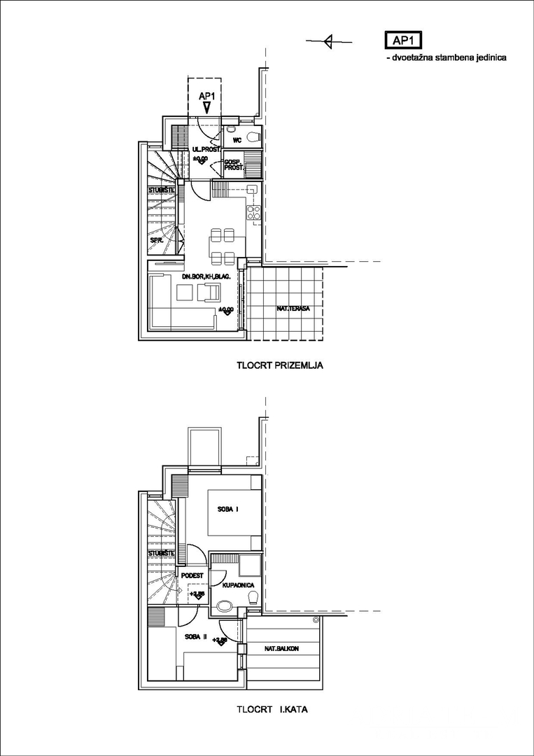
m, balcony, the apartment has 2 parking spaces and a garden of usable area (21.08 m2) - 75.94 - SOLD!
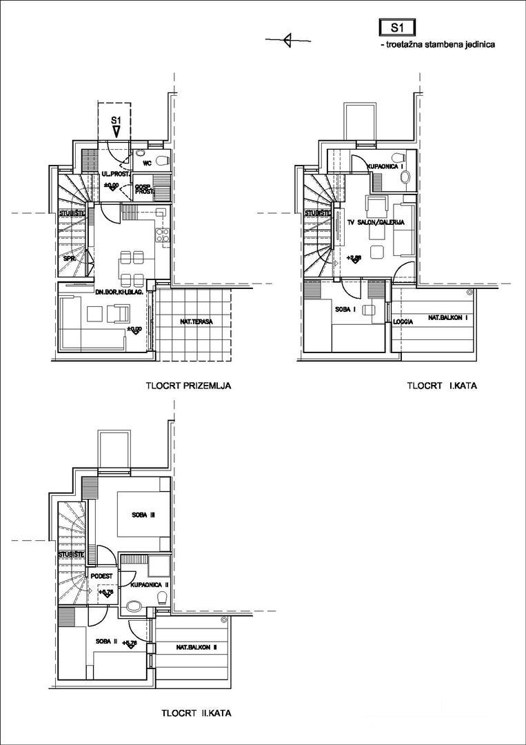
S1 (3 floors) - Ground floor: living room, kitchen, dining room, pantry / storage room, entrance hall, toilet, terrace; 1st floor: 1 bedroom, TV lounge / gallery, bathroom, balcony; 2nd floor: 2 bedrooms, bathroom and covered terrace. The apartment has 2 parking spaces and a garden of usable area (22.35 m2) - 110.42 m2 - 430.000,00 EUR
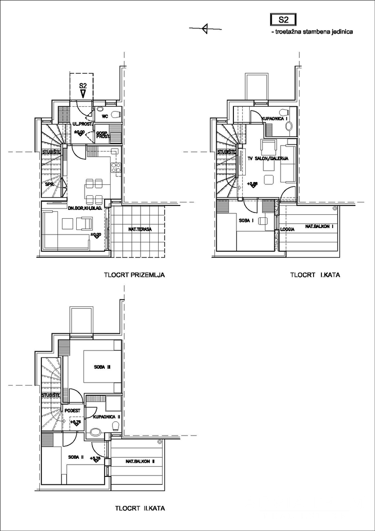
S2 (3 floors) - Ground floor: living room, kitchen, dining room, pantry / storage room, entrance hall, toilet, terrace; 1st floor: 1 bedroom, TV lounge / gallery, bathroom, balcony; 2nd floor: 2 bedrooms, bathroom and covered terrace. The apartment has 2 parking spaces and a garden of usable area (22.35 m2) - 110.42 m2 - 430.000,00 EUR
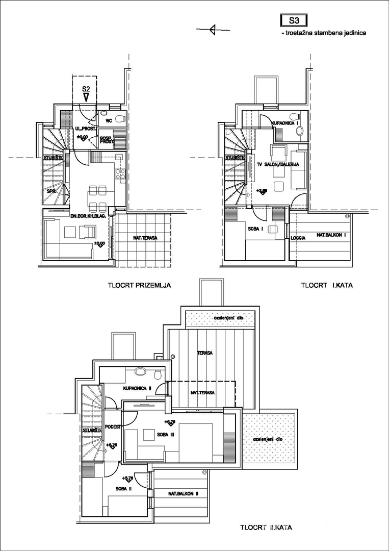
S3 (3 floors) - Ground floor: living room, kitchen, dining room, pantry / storage room, entrance hall, toilet, terrace; 1st floor: 1 bedroom, TV lounge / gallery, bathroom, balcony; 2nd floor: 2 bedrooms, bathroom, covered terrace, roof terrace. The apartment also has 2 parking spaces and a garden of usable area (21.84 m2) - 126,55 m2 - 518.000,00 EUR
AP2 (3 floors) - basement and bathroom, ground floor: living room, kitchen, dining room, pantry / storage, entrance hall, toilet, terrace; 1st floor: 2 bedrooms, bathroom, covered terrace, the apartment has 2 parking spaces and a garden of usable area (85.28 m2) - 117,45 m2 - 481.545,00 EUR
- TOP POSITION !! 200 m from the beach!
- Close to all contents for a pleasant holiday and stay;
- Equipped with top quality 1st class materials;
- Ariston water heaters and complete equipped bathrooms;
- Floors: ceramics and stone;
- Heating / cooling - inverter, all rooms are air conditioned;
- Glass railings on balconies (tinted glass);
- The gardens have a water outlet;
- Real estate enterance after season 2023.
NOTE:
Agency fee not included in the price
For any additional information and to schedule a tour, feel free to contact us at any time with confidence.
Agency commission for the buyer is 3% + VAT and will be charged in case of purchasing the property at the conclusion of the purchase-sales contract.
... show all
- Basic information
- New building
- House type: Detached
- Property area: 110.4 m2
- Number of rooms: 3.0
- Bathrooms number: 1
- Energy class: In preparation
- Lot size: 22 m2
- Infrastructure:
- Water
- Active telephone line
- Telephone installation
- ADSL
- Air conditioner
- Additional information:
- State: preserved
- Parking spaces: 2
- Location
- Country: Hrvatska
- Region: Ličko-senjska županija
- Municipality: Novalja, 53291
- Settlement: Novalja
- Location view on the map
- Permits
- Building permit
- Certificate of ownership
- Similar listings
- House - in sequence - New building - Novalja (Novalja) - 120 m2 - 252,000 EUR
- House - Detached - Novalja (Stara Novalja) - 105 m2 - 450,000 EUR
- House - Detached - Novalja (Stara Novalja) - 105 m2 - 499,000 EUR
- House - in sequence - New building - Novalja (Novalja) - 117 m2 - 481,545 EUR
- House - Detached - New building - Novalja (Novalja) - 109 m2 - 750,000 EUR
Adria Team Real Estate d.o.o.
Matije Gupca 40, 23000 Zadar
- All listings of this agency
- Agency web site
- Number in the register of intermediaries: 38/2017
Follow us on
Facebook
and
Instagram
for
the best real estate offers in the category Houses
in city Novalja, Hrvatska
Navigation menu
Contact the advertiser
Contact the advertiser
Adria Team Real Estate d.o.o.
Matije Gupca 40, 23000 Zadar
- All listings of this agency
- Agency web site
- Number in the register of intermediaries: 38/2017
.jpg?class=5dbc4f9d349c539bfe9e8a5e96ebaa53&ts=1642760472)
.jpg?class=5dbc4f9d349c539bfe9e8a5e96ebaa53&ts=1642760472)
.jpg?class=5dbc4f9d349c539bfe9e8a5e96ebaa53&ts=1642760472)
.jpg?class=5dbc4f9d349c539bfe9e8a5e96ebaa53&ts=1642760472)
.jpg?class=5dbc4f9d349c539bfe9e8a5e96ebaa53&ts=1642760472)
































.jpg?class=5dbc4f9d349c539bfe9e8a5e96ebaa53&ts=1642760472)
.jpg?class=5dbc4f9d349c539bfe9e8a5e96ebaa53&ts=1642760472)
.jpg?class=5dbc4f9d349c539bfe9e8a5e96ebaa53&ts=1642760472)
.jpg?class=5dbc4f9d349c539bfe9e8a5e96ebaa53&ts=1642760472)
.jpg?class=5dbc4f9d349c539bfe9e8a5e96ebaa53&ts=1642760472)
.jpg?class=5dbc4f9d349c539bfe9e8a5e96ebaa53&ts=1642760472)






















