VILLA WITH SEA VIEW, NEW CONTRUCTION - VRSI
Hrvatska, Zadarska županija, Nin, Vrsi,
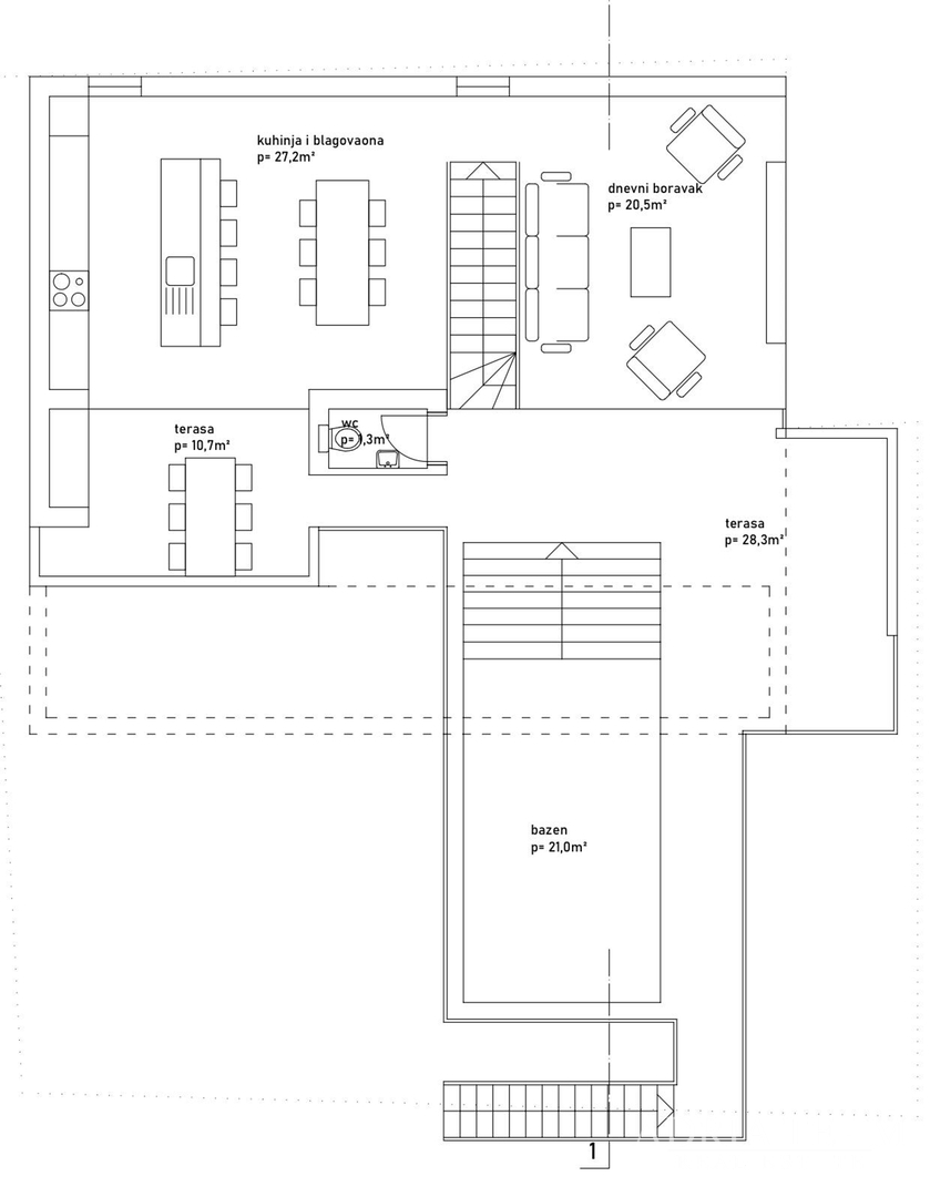
For sale newly built VILLA in Vrsi. The property is spread over ground floor and 1st floor and is located 1200 m from the beach (550 m skyway).
PROPERTY DESCRIPTION:
GROUND FLOOR - 3 bedrooms (2 with integrated bathrooms), 1 bathroom in the hallway,
hallway, storage room
1ST FLOOR - large living room + open kitchen + dining room, floor-to-ceiling windows provide good lighting, large terrace with heated pool, toilet on the terrace
- built-in barbecue and seating furniture on the terrace;
- heated pool on the top floor with a sea view;
- basement 13 m2;
- garden
MATERIAL DESCRIPTION:
- all rooms are air-conditioned;
- three-layer glass on all windows;
- electric blinds;
- water underfloor heating in all rooms;
- water heating installations located on the roof and solar modules can be used in the future if necessary
For any additional information and to schedule a tour, feel free to contact us at any time with confidence.
... show all
- Basic information
- New building
- House type: Detached
- Property area: 125.0 m2
- Number of rooms: 4.0
- Bathrooms number: 3
- Energy class: In preparation
- Lot size: 275 m2
- Infrastructure:
- Water
- ADSL
- Air conditioner
- Additional information:
- State: preserved
- Basement:
- Parking spaces: 3
- Location
- Country: Hrvatska
- Region: Zadarska županija
- Municipality: Nin, 23235
- Settlement: Vrsi
- Location view on the map
- Permits
- Similar listings
- House - Detached - New building - Nin (Poljica) - 120 m2 - 450,000 EUR
- House - Detached - New building - Nin (Poljica) - 116 m2 - 450,000 EUR
- House - Detached - New building - Nin (Vrsi) - 125 m2 - 399,000 EUR
- House - Detached - New building - Nin (Poljica) - 116 m2 - 450,000 EUR
- House - Detached - New building - Nin (Poljica Brig) - 136 m2 - 560,000 EUR
Adria Team Real Estate d.o.o.
Matije Gupca 40, 23000 Zadar
- All listings of this agency
- Agency web site
- Number in the register of intermediaries: 38/2017
Follow us on
Facebook
and
Instagram
for
the best real estate offers in the category Houses
in city Nin, Hrvatska
Navigation menu
Contact the advertiser
Contact the advertiser
Adria Team Real Estate d.o.o.
Matije Gupca 40, 23000 Zadar
- All listings of this agency
- Agency web site
- Number in the register of intermediaries: 38/2017


























































