Istra,Novigrad-Adaptirana kuća s vrtom i pogledom na more
Hrvatska, Istarska županija, Novigrad, Novigrad,
- 135 m2
- 4
- 430.000 EUR stambeni kredit
- Oglas broj: 258923
- Agencijska šifra: 300441010-512
- Datum objave: 09.10.2025
RE/MAX Centar nekretnina iz svoje bogate ponude izdvaja ovu prekrasnu kuću s dvorištem i panoramskim pogledom na more i grad Novigrad. Smještena u mirnom naselju u predgrađu Novigrada, ova nekretnina predstavlja savršenu kombinaciju komfora, funkcion
alnosti i mediteranskog šarma.
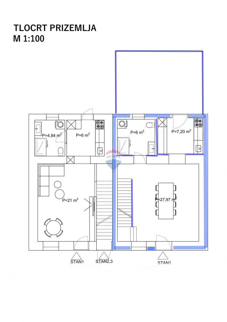
Kuća u nizu, potpuno adaptirana i opremljena, prostire se na četiri etaže i ima unutarnju neto površinu od 135 m². Odmah je spremna za useljenje ili turističko iznajmljivanje, bez potrebe za dodatnim ulaganjima.
U prizemlju se nalazi moderno uređena kuhinja, kupaonica i blagovaonica s izlazom na natkrivenu terasu površine 25 m². U ovom prostoru ugrađeno je električno podno grijanje koje osigurava ugodnu toplinu i savršen komfor tijekom cijele godine. Terasa je opremljena pomičnom pergolom, ljetnom kuhinjom, vanjskim tušem te hidromasažnom kadom idealno mjesto za opuštanje i druženje.
Na prvom katu smješteni su dnevni boravak i jedna spavaća soba, dok drugi kat obuhvaća dodatnu spavaću sobu i kupaonicu. Na trećem katu nalazi se glavna spavaća soba s vlastitom kupaonicom i predivnim pogledom na more. Na svakoj etaži ugrađen je klima sustav sveukupno četiri unutarnje i dvije vanjske jedinice, a opskrba toplom vodom osigurana je pomoću dva električna bojlera.
Cijela kuća opremljena je visokokvalitetnim namještajem izrađenim po mjeri, što dodatno naglašava eleganciju prostora i omogućuje savršeno iskorištenje svakog kvadrata.
Ova elegantna kuća idealna je za obiteljski život ili kao investicija u turistički najam. Zahvaljujući vrhunskoj izvedbi, promišljenom rasporedu, kvalitetnom namještaju i brojnim dodatnim sadržajima, pruža visoku razinu udobnosti i osjećaj pravog mediteranskog doma.
ID KOD AGENCIJE:-512
... prikaži sve
- Osnovni podaci
- Tip kuće: u nizu
- Površina: 135,0 m2
- Broj soba: 4,0
- Energetski razred: U pripremi
- Površina okućnice: 57 m2
- Dodatne informacije
- Lokacija
- Država: Hrvatska
- Regija: Istarska županija
- Općina: Novigrad, 52466
- Naselje: Novigrad
- Pogledaj na mapi
- Slične nekretnine
- Kuća - samostojeća - Novigrad (Novigrad) - 132 m2 - 541.000 EUR
- Kuća - u nizu - Novigrad (Novigrad) - 129 m2 - 385.000 EUR
- Kuća - u nizu - Novogradnja - Novigrad (Novigrad) - 124 m2 - 380.000 EUR
- Kuća - samostojeća - Novigrad (Pridraga) - 122 m2 - 230.000 EUR
- Kuća - dvojnica - Novigrad (Novigrad) - 143 m2 - 542.000 EUR
Remax Centar Nekretnina
Krešimirova 12a, 51000 Rijeka
- Svi oglasi ove agencije
- Web site agencije
- Broj u registru posrednika: 656/2009
Zapratite nas na
Facebook-u
i
Instagramu
za
najbolje ponude nekretnina u kategoriji Kuće
u mjestu Novigrad, Hrvatska
Navigacija
Kontaktirajte oglašivača
Kontaktirajte oglašivača
Remax Centar Nekretnina
Krešimirova 12a, 51000 Rijeka
- Tel. agenta: xxxx-xxxx-2896 Prikaži broj
- Tel: xxxx-xxxx-5350 Prikaži broj
- Svi oglasi ove agencije
- Web site agencije
- Broj u registru posrednika: 656/2009








































