TRIBUNJ - dvosoban stan sa pogledom na more - 200m do mora
Hrvatska, Šibensko-kninska županija, Vodice, Tribunj,
- 103 m2
- 3
- 1
- 339.000 EUR stambeni kredit
Napokon dobra ponuda za ljubitelje Tribunja, stanovi u užem centru, blizina marine, blizina blaže, blizina bajkovitog poluotoka i šetnice.
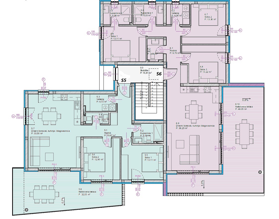
Ovaj prostrani stan oznake S5 od 103,14 m2 netto korisne površine sa velikil dnevnim boravkom iz kojeg se p
ruža prekrasan pogled na more, a povezan je staklenom stjenom sa velikom lođom koja upotpunjuje događaj življenja na moru .
Oprema stana:
- Klimatizirane su sve prostorije
- Podno grijanje u svim prostorijama
- Punjač za električne automobile
- Vrhunska PVC stolarija
- Električni podizači roleta
- Komarnici na svim otvorima
- Keramika visoke kvalitete u svim prostorijama, a u spavaćim sobama laminat
- Zgrada je spojena na gradsku kanalizaciju
Ovaj luksuzni stan smješten je na drugom katu moderne zgrade koja se sastoji od ukupno 6 stanova,
Stanovi su tako raspoređeni da su svi balkoni okrenuti prema jugu, a velike staklene stjene propuštaju puno svjetlosti u sam stan te povezuju prostrane terase i lođe sa samim stanom.Zgrada se sastoji tri etaže (prizemlje, prvi i drugi kat). Svaka etaža sadrži po 2 stambene jedinice, a zgrada se gradi prema najnovijim standardima gradnje, s planiranim završetkom u jesen 2026. godine.
KUPAC JE OSLOBOĐEN plaćanja poreza na promet nekretninama.
Stan se sastoji od: ulaza, hodnika, vešeraja, WC-a, spavaće sobe 1, kuaponice, spavaće sobe 2, open space dnevnog boravka s kuhinjom i blagovaonicom, te natkrivene terase. Stanu pripadaju i 2 parking mjesta.
ODLIĆNA LOKACIJA – samo 250 metara od mora u užem centru Tribunja , što ga čini savršenim za ljubitelje mora i Tribunja gdje možete uživati u šarmu ovog malog mediteranskog mjesta, s restoranima, trgovinama i svim potrebnim sadržajem na dohvat ruke.
... prikaži sve
- Osnovni podaci
- Novogradnja
- Površina: 103,1 m2
- Broj soba: 3,0
- Broj kupatila: 1
- Sprat: 2
- Orijentacija: Jug,Zapad
- Energetski razred: U pripremi
- Infrastruktura
- Voda
- Kanalizacija
- Klima uređaj
- Dodatne informacije
- Stanje: očuvano
- Broj parking mjesta: 2
- Lokacija
- Država: Hrvatska
- Regija: Šibensko-kninska županija
- Općina: Vodice, 22212
- Naselje: Tribunj
- Pogledaj na mapi
- Dozvole
- Građevinska dozvola
- Slične nekretnine
- Stan - Novogradnja - Vodice (Vodice) - 97 m2 - 319.000 EUR
- Stan - Novogradnja - Vodice (Vodice) - 97 m2 - 445.000 EUR
- Stan - Novogradnja - Vodice (Srima) - 95 m2 - 295.000 EUR
- Stan - Novogradnja - Vodice (Vodice) - 104 m2 - 628.680 EUR
- Stan - Novogradnja - Vodice (Tribunj) - 102 m2 - 328.288 EUR
AGENCIJA HOMBERGER
Trg Kneza Branimira 32, 22211 Vodice
- Svi oglasi ove agencije
- Web site agencije
- Broj u registru posrednika: 500/2009
Zapratite nas na
Facebook-u
i
Instagramu
za
najbolje ponude nekretnina u kategoriji Stanovi
u mjestu Vodice, Hrvatska
Navigacija
Kontaktirajte oglašivača
Kontaktirajte oglašivača
AGENCIJA HOMBERGER
Trg Kneza Branimira 32, 22211 Vodice
- Tel. agenta: xxxx-xxxx-2001 Prikaži broj
- Tel: xxxx-xxxx-4109 Prikaži broj
- Svi oglasi ove agencije
- Web site agencije
- Broj u registru posrednika: 500/2009



