Pula, Valmade, dvosoban stan u prizemlju s vrtom, novogradnja
Hrvatska, Istarska županija, Pula,
-
57
-
2
-
1
-
190.000 EUR stambeni kredit
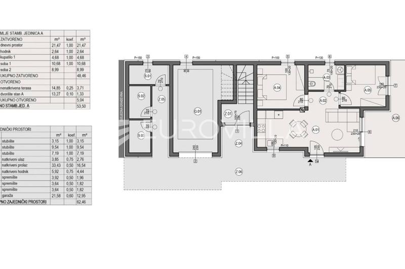
Predstavljamo novu stambenu zgradu od ukupno tri zgrade u nizu. Svaka zgrada se sastoji od četiri stambene jedinice.Riječ je o stanu u zgradi C oznake S1 u prizemlju.Stan se sastoji od open space dnevnog boravka s kuhinjom i blagovaonicom, dvije spavaće sobe, kupaonice, nenatkrivene terase i... Više na *website*, ID:
- Osnovni podaci
- Novogradnja
- Površina: 56,5 m2
- Broj soba: 2,0
- Broj kupatila: 1
- Dodatne informacije
- Lokacija
- Država: Hrvatska
- Regija: Istarska županija
- Općina: Pula, 52100
- Pogledaj na mapi
Eurovilla d.o.o.
Berislavićeva 4, 10000 Zagreb
- Svi oglasi ove agencije
- Web site agencije
-
Licencirani posrednik
- Broj u registru posrednika: 103/2009
Zapratite nas na
Facebook-u
i
Instagramu
za
najbolje ponude nekretnina u kategoriji Stanovi
u mjestu Pula, Hrvatska
Navigacija
Kontaktirajte oglašivača
Kontaktirajte oglašivača
Eurovilla d.o.o.
Berislavićeva 4, 10000 Zagreb
- Tel. agenta: xxxx-xxxx-0782 Prikaži broj
- Tel: xxxx-xxxx-5111 Prikaži broj
- Mob: xxxx-xxxx-7582 Prikaži broj
- Fax: xxxx-xxxx-5112 Prikaži broj
-
Licencirani posrednik
- Broj u registru posrednika: 103/2009