OPATIJA,PAVLOVAC- stan 3S+ DB s krovnom terasom i pogledom na more
Hrvatska, Primorsko-goranska županija, Matulji, Pavlovac,
- 144 m2
- 4
- 2
- 459.000 EUR stambeni kredit
- Oglas broj: 170123
- Agencijska šifra: 300421024-690
- Datum objave: 07.10.2024
                            
                                
                                    OPATIJA,PAVLOVAC- RE/MAX centar nekretnina iz svoje ponude izdvaja stan 3S+ DB s krovnom terasom i pogledom na more
Nalazi se u novogradnji (2024.) sa samo 3 stana.
Svaki stan ima svoj vlastiti ulaz što osigurava mir i privatnost budućim vlasnicima.
                                
                            
                            
                                
                                     
                                        
Zgrada se nalazi na odličnoj lokaciji, u slijepoj ulici, u blizini svih sadržaja, na samo 5 minuta udaljenosti autom do mora, plaže i šetališta Lungo mare.
Svi stanovi su južne orijentacije, sunčani i svijetli s pogledom na more.
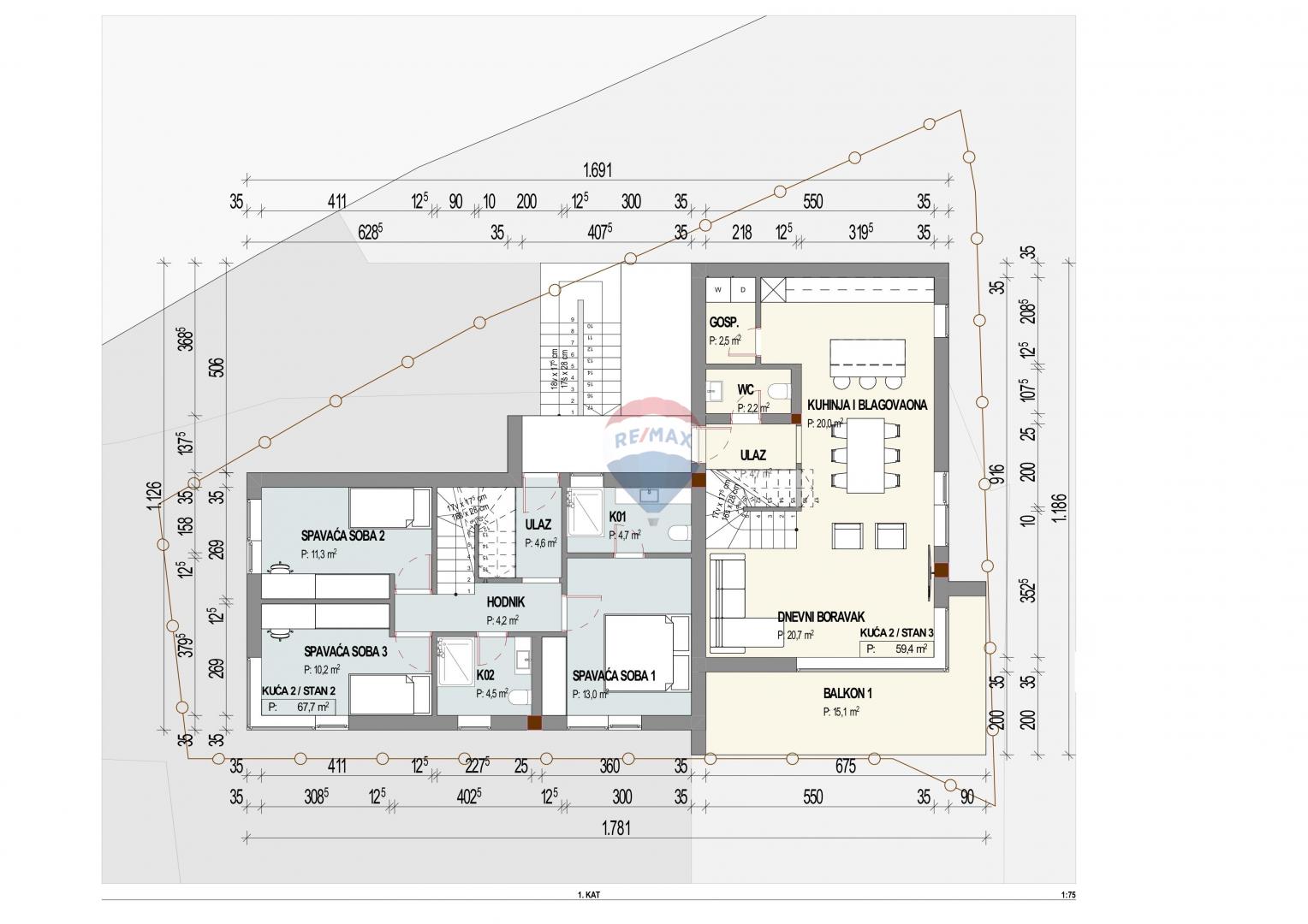
Stan 2 je dvoetažan s izlazom na krovnu terasu (sve je međusobno povezano unutarnjim stubištem) , proteže se kroz 1. i 2. kat., površine 144.5 m2, a sastoji se od:
- donja etaža: 3 spavaće sobe, 2 kupaone, ulaz i hodnik
- gornja etaža: dnevni boravak s kuhinjom i blagovaonom s izlazom na balkon, wc i ostava
- treća etaža: krovna terasa 28.6 m2 s koje se pruža panoramski pogled na more
Sustav grijanja i hlađenja u stanu je putem dizalice topline (konvektori).
Stanu pripadaju 2 parkirna mjesta.
Navedena cijena se odnosi na kompletno završen stan po principu ključ u ruke (sa sanitarijama) bez namještaja.
U cijenu je uključen PDV, kupac je oslobođen plaćanja poreza na promet nekretnina. U slučaju kupnje na firmu registriranu u Hrvatskoj moguć je povrat kompletnog PDV-a nakon kupoprodaje.
Planirani završetak radova i useljenje je krajem 2024. godine. 
ID KOD AGENCIJE:-690
                                    
                                
                            
                            
                              
                                  
                                  ... prikaži sve
                                  
                              
                            
                            
                            
                        
                      - Osnovni podaci
- Novogradnja
- Površina: 144,0 m2
- Broj soba: 4,0
- Broj kupatila: 2
- Sprat: 1 od 2
- Energetski razred: U pripremi
- Dodatne informacije
- Lokacija
- Država: Hrvatska
- Regija: Primorsko-goranska županija
- Općina: Matulji
- Naselje: Pavlovac
- Slične nekretnine
- Stan - Novogradnja - Matulji (Pavlovac) - 143 m2 - 459.000 EUR
- Stan - Novogradnja - Matulji (Jušići) - 130 m2 - 405.000 EUR
- Stan - Novogradnja - Matulji (Matulji) - 146 m2 - 450.000 EUR
- Stan - Novogradnja - Matulji (Kučeli) - 135 m2 - 399.000 EUR
- Stan - Novogradnja - Matulji (Pavlovac) - 148 m2 - 459.000 EUR
 
                  Remax Centar Nekretnina
Krešimirova 12a, 51000 Rijeka
- Svi oglasi ove agencije
- Web site agencije
- Broj u registru posrednika: 656/2009
        Zapratite nas na
    
        
        Facebook-u
    
    i
    
        
        Instagramu
    
    za
    
        najbolje ponude nekretnina u kategoriji Stanovi
        u mjestu Matulji, Hrvatska
    
    
    
Navigacija
Kontaktirajte oglašivača
Kontaktirajte oglašivača
 
                  Remax Centar Nekretnina
Krešimirova 12a, 51000 Rijeka
- Tel. agenta: xxxx-xxxx-7001 Prikaži broj
- Tel: xxxx-xxxx-5350 Prikaži broj
- Svi oglasi ove agencije
- Web site agencije
- Broj u registru posrednika: 656/2009








