Zagreb, Črnomerec-Mikulići, stambena zgrada s dva troiposobna dvoetažna stana
Hrvatska, Grad Zagreb, Zagreb, Mikulići,
-
410
-
8
-
4
-
1.080.000 EUR stambeni kredit
RE/MAX Centar nekretnina iz ponude izdvaja modernu stambenu zgradu u Zagrebu, Mikulići, s prekrasnim pogledom na grad.
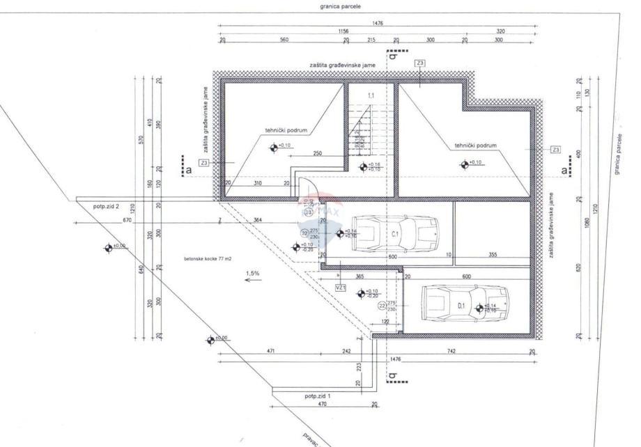
Zgrada sadrži dva luksuzna dvoetažna penthouse stana ukupne površine 336 m².
DVA KOMPLETNA STANA:
Stan 1 – Troiposoban penthouse (147,81 m²)
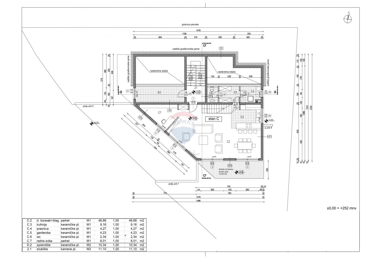
Stan se proteže kroz prizemlje i prvi kat. Prizemlje sadrži ulazni prostor, dnevni boravak s blagovaonicom, kuhinju, radnu sobu, praonicu, garderobu, gostinjski wc i terasu na terenu. Prvi kat obuhvaća tri spavaće sobe, dvije kupaonice, predsoblje i balkon.
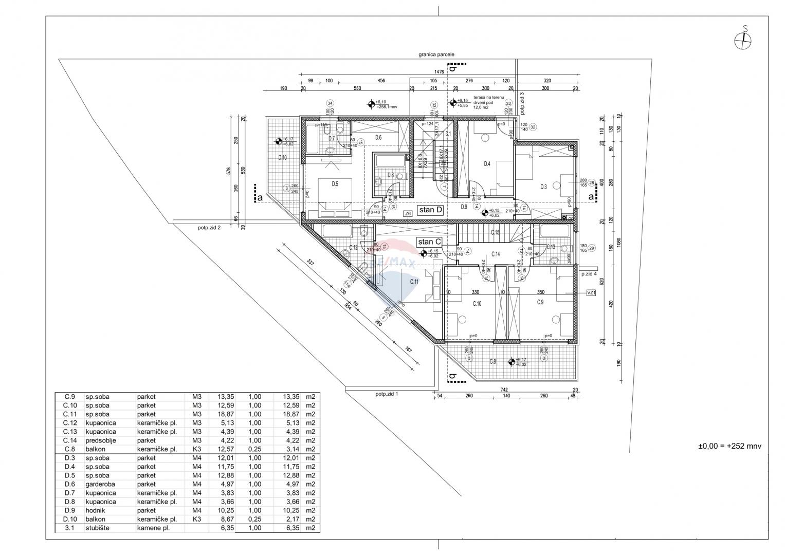
Stan 2 – Troiposoban penthouse s terasom (188,18 m²)
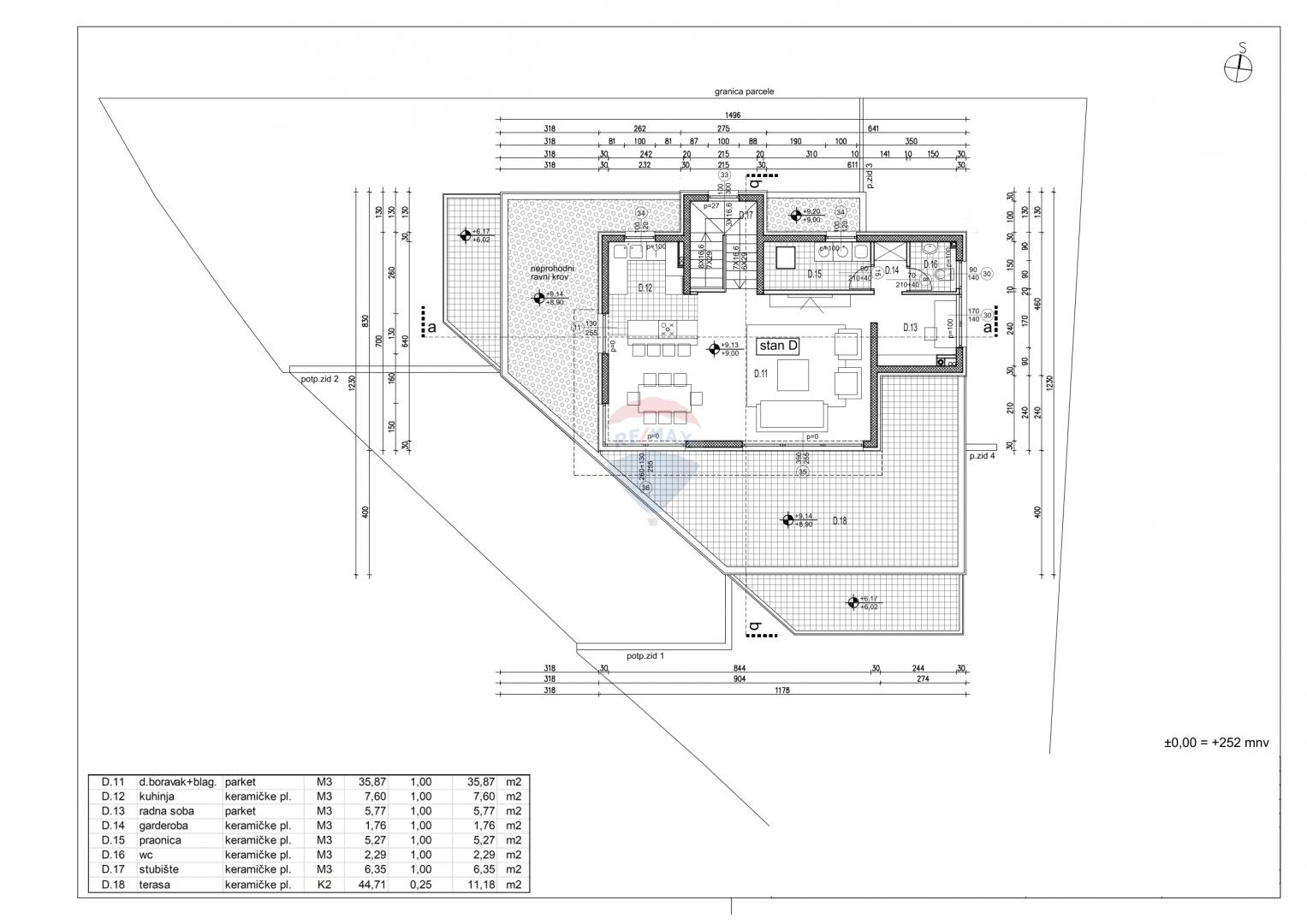
Stan se proteže kroz prvi i uvučeni kat. Prvi kat sadrži tri spavaće sobe, garderobu, dvije kupaonice, hodnik i balkon. Uvučeni kat obuhvaća dnevni boravak s blagovaonicom, kuhinju, radnu sobu ili hobi prostor, garderobu, praonicu, gostinjski wc i prostranu terasu.
Oba stana imaju vlastite garaže u sklopu zgrade te su opremljena podnim plinskim grijanjem. Nekretnine se prodaju u visokoj roh-bau fazi, što omogućava potpunu personalizaciju uređenja. Etaže su povezane unutarnjim stubištem.
Zgrada je smještena u mirnom dijelu Mikulića, s izvrsnom prometnom povezanošću prema centru Zagreba. U neposrednoj blizini nalaze se trgovine, škole, vrtići, javni prijevoz i svi potrebni sadržaji za kvalitetan obiteljski život.
Stanove je moguće kupiti i zasebno.
ID KOD AGENCIJE: 3-71396
Zgrada sadrži dva luksuzna dvoetažna penthouse stana ukupne površine 336 m².
DVA KOMPLETNA STANA:
Stan 1 – Troiposoban penthouse (147,81 m²)
Stan se proteže kroz prizemlje i prvi kat. Prizemlje sadrži ulazni prostor, dnevni boravak s blagovaonicom, kuhinju, radnu sobu, praonicu, garderobu, gostinjski wc i terasu na terenu. Prvi kat obuhvaća tri spavaće sobe, dvije kupaonice, predsoblje i balkon.
Stan 2 – Troiposoban penthouse s terasom (188,18 m²)
Stan se proteže kroz prvi i uvučeni kat. Prvi kat sadrži tri spavaće sobe, garderobu, dvije kupaonice, hodnik i balkon. Uvučeni kat obuhvaća dnevni boravak s blagovaonicom, kuhinju, radnu sobu ili hobi prostor, garderobu, praonicu, gostinjski wc i prostranu terasu.
Oba stana imaju vlastite garaže u sklopu zgrade te su opremljena podnim plinskim grijanjem. Nekretnine se prodaju u visokoj roh-bau fazi, što omogućava potpunu personalizaciju uređenja. Etaže su povezane unutarnjim stubištem.
Zgrada je smještena u mirnom dijelu Mikulića, s izvrsnom prometnom povezanošću prema centru Zagreba. U neposrednoj blizini nalaze se trgovine, škole, vrtići, javni prijevoz i svi potrebni sadržaji za kvalitetan obiteljski život.
Stanove je moguće kupiti i zasebno.
ID KOD AGENCIJE: 3-71396
- Osnovni podaci
- Novogradnja
- Tip kuće: samostojeća
- Površina: 410,0 m2
- Broj soba: 8,0
- Broj kupatila: 4
- Energetski razred: U pripremi
- Površina okućnice: 450 m2
- Dodatne informacije
- Garaža
- Lokacija
- Država: Hrvatska
- Regija: Grad Zagreb
- Opština: Zagreb, 10000
- Naselje: Mikulići
- Pogledaj na karti
- Slične nekretnine
- Kuća - Novogradnja - Zagreb - 400 m2 - 420.000 EUR
- Kuća - dvojnica - Zagreb - 373 m2 - 555.000 EUR
- Kuća - samostojeća - Zagreb (Gračani) - 440 m2 - 1.700.000 EUR
- Kuća - Novogradnja - Zagreb (Gornji Grad - Medveščak) - 444 m2 - 1.995.000 EUR
- Kuća - samostojeća - Zagreb (Remete) - 440 m2 - 1.490.000 EUR
Zainteresirani ste za ovu nekretninu?
Popunite KONTAKT OBRAZAC i naši agenti će Vas kontaktirati putem telefona ili e-maila u najkraćem mogućem roku.
Kontaktirajte nas
Zapratite nas na
Facebook-u
i
Instagramu
za
najbolje ponude nekretnina u kategoriji Kuće
u mjestu Zagreb, Hrvatska
Navigacija
Kontaktirajte oglašivača
Kontaktirajte oglašivača
Remax Centar Nekretnina
Krešimirova 12a, 51000 Rijeka
- Tel. agenta: xxxx-xxxx-0056 Prikaži broj
- Tel: xxxx-xxxx-5350 Prikaži broj
-
Licencirani posrednik
- Broj u registru posrednika: 656/2009