VILE U NOVOGRADNJI S POGLEDOM NA MORE - RADOVIN
Hrvatska, Zadarska županija, Ražanac, Radovin,
- 203 m2
- 4
- 2
- 1.250.000 EUR stambeni kredit
Prodaju se VILE s pogledom na more u Radovinu. Nekretnine se sastoje od prizemlja i 1. kata.
OPIS NEKRETNINE:
VILA 1 - 220,55 m2
PRIZEMLJE - natkriveni ulaz (1,31 m2), hodnik (17,25 m2), WC (4 m2), strojarnica / vešeraj (5,40 m2), spavaća soba (10,4
0 m2), garderoba (8 m2), kupaonica (5,70 m2), kuhinja + blagovaonica + dnevni boravak (56,90 m2), 2 natkrivene terase (16,78 m2, 8,75 m2)
1. KAT - hodnik (6,50 m2), 2 spavaće sobe (13 m2, 14,75 m2), 2 garderobe (6,50 m2, 5,05 m2), 2 kupaonice (5,35 m2, 5,80 m2), natkrivena terasa (10,70 m2), nenatkrivena terasa (18,41 m2)
VILA 2 - 287,54 m2
PRIZEMLJE - natkriveni ulaz (6,08 m2), ulaz (6,80 m2), hodnik (2,95 m2), WC (3,40 m2), strojarnica / vešeraj (6,95 m2), spavaća soba (14 m2), garderoba (6,40 m2), kupaonica (7,30 m2), kuhinja + blagovaonica + dnevni boravak (63 m2), natkrivena terasa (20,05 m2)
1. KAT - hodnik (9,30 m2), 2 spavaće sobe (13,90 m2, 14,85 m2), 2 garderobe (7,45 m2, 6,20 m2), 2 kupaonice (6,60 m2, 6,90 m2), nenatkrivena terasa (8,39 m2)
VILA 3 - 202,64 m2
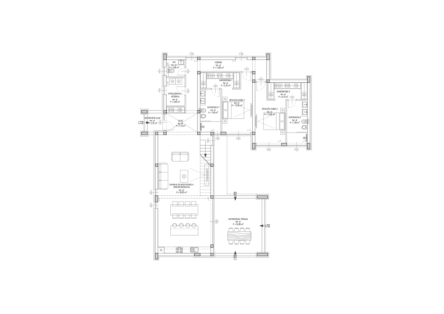
PRIZEMLJE - natkriveni ulaz (1,88 m2), ulaz (7,10 m2), hodnik (13,80 m2), WC (2,80 m2), strojarnica / vešeraj (4,65 m2), 2 spavaće sobe (13,50 m2, 13,60 m2), 2 garderobe (5,70 m2, 6,10 m2), 2 kupaonice (2 x 7,90 m2), kuhinja + blagovaonica + dnevni boravak (56,06 m2), natkrivena terasa (17,40 m2)
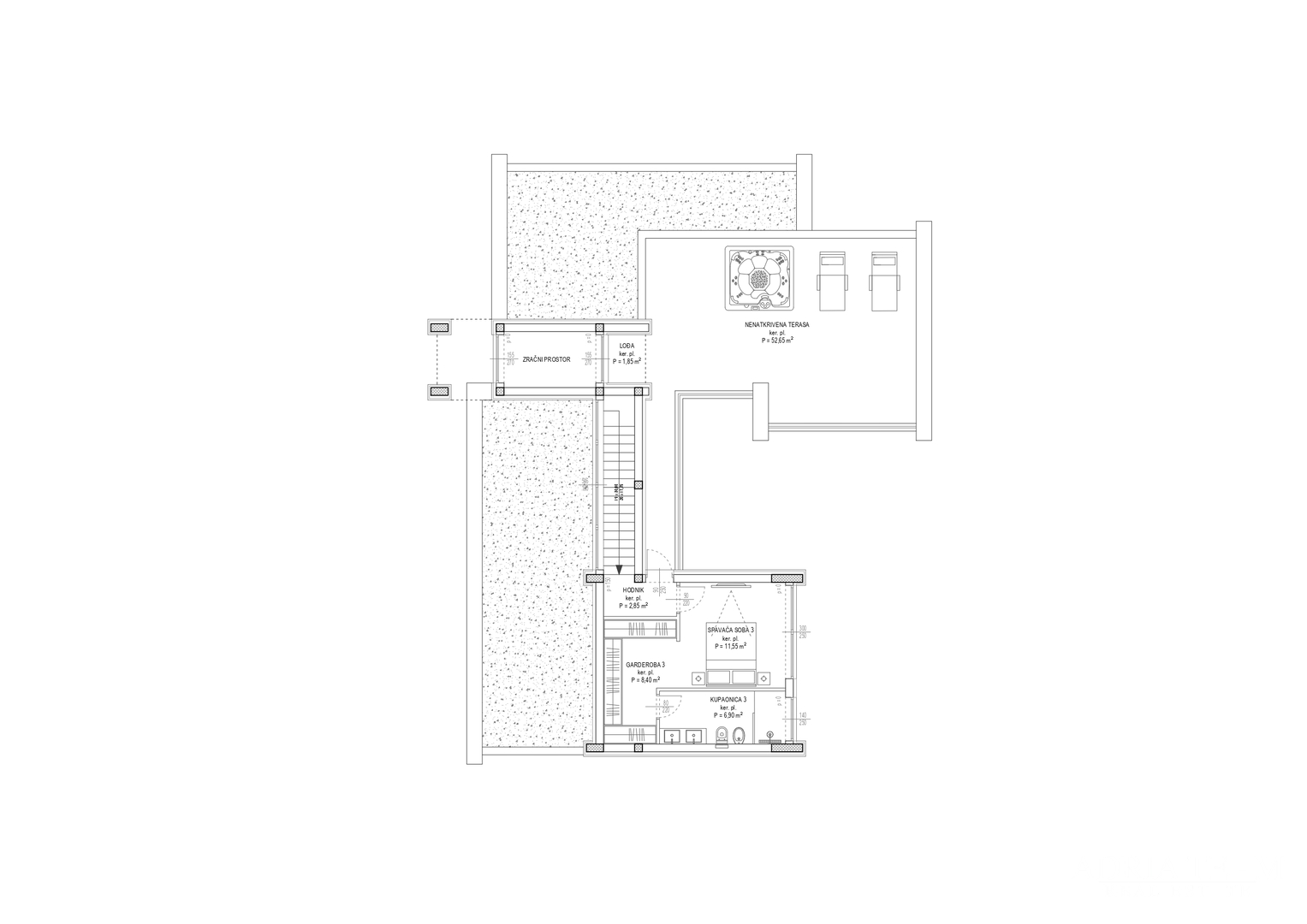
1. KAT - hodnik (2,85 m2), spavaća soba (11,55 m2), garderoba (8,40 m2), kupaonica (6,90 m2), nenatkrivena terasa (13,16 m2), lođa (1,39 m2)
OPIS MATERIJALA:
U potpunosti je opremljena talijanskim prirodnim kamenom travertinom iznutra i izvana, visokokvalitetnim prirodnim kamenom i keramičkim pločicama, elementima od prirodnog drva i mediteranskim vanjskim prostorom koji oduševljava velikim staklenim fasadama i drugim luksuznim detaljima.
- jacuzzi na terasi;
- velika aluminijska podizno-klizna vrata i prozori;
- pločice velikog formata i prirodni kamen;
- samostojeće stubište;
- podno grijanje u svim sobama;
- hands-free sustav;
- grijani bazen (45 m2);
- vanjski tuš;
- prethodno ožičeni PV sustav;
- tuš kabine;
- električne rolete;
- smart home sistem;
- automatska električna vrata;
- vrt s automatskim sustavom navodnjavanja;
- priprema za solarno napajanje;
- sunčalište
Bit će projektirane prema željama kupca.
Mogućnost kupovine namještene kuće za €.
Također postoji mogućnost kupnje garažnog parkirališnog mjesta.
Za sve dodatne informacije i dogovor o terminu obilaska, slobodno nas u bilo kojem trenutku kontaktirajte s povjerenjem.
... prikaži sve
- Osnovni podaci
- Novogradnja
- Tip kuće: samostojeća
- Površina: 202,6 m2
- Broj soba: 4,0
- Broj kupatila: 2
- Energetski razred: U pripremi
- Infrastruktura
- ADSL
- Klima
- Dodatne informacije
- Stanje: očuvano
- Broj parking mesta: 3
- Lokacija
- Država: Hrvatska
- Regija: Zadarska županija
- Opština: Ražanac, 23248
- Naselje: Radovin
- Pogledaj na karti
- Dozvole
- Građevinska dozvola
- Vlasnički list
- Slične nekretnine
- Kuća - samostojeća - Ražanac (Rtina) - 207 m2 - 675.000 EUR
- Kuća - samostojeća - Novogradnja - Ražanac (Rtina) - 191 m2 - 770.000 EUR
- Kuća - samostojeća - Novogradnja - Ražanac (Rtina) - 191 m2 - 750.000 EUR
- Kuća - samostojeća - Novogradnja - Ražanac (Ražanac) - 200 m2 - 1.350.000 EUR
- Kuća - samostojeća - Novogradnja - Ražanac (Rtina) - 192 m2 - 750.000 EUR
Adria Team Real Estate d.o.o.
Matije Gupca 40, 23000 Zadar
- Svi oglasi ove agencije
- Web site agencije
- Broj u registru posrednika: 38/2017
Zapratite nas na
Facebook-u
i
Instagramu
za
najbolje ponude nekretnina u kategoriji Kuće
u mjestu Ražanac, Hrvatska
Navigacija
Kontaktirajte oglašivača
Kontaktirajte oglašivača
Adria Team Real Estate d.o.o.
Matije Gupca 40, 23000 Zadar
- Tel. agenta: xxxx-xxxx-9967 Prikaži broj
- Tel: xxxx-xxxx-5880 Prikaži broj
- Mob: xxxx-xxxx-8355 Prikaži broj
- Svi oglasi ove agencije
- Web site agencije
- Broj u registru posrednika: 38/2017





























