Prodaja, Stan, Kustošija, Graberje, 3,5s, 110m2
Hrvatska, Grad Zagreb, Zagreb, Črnomerec, Graberje
-
110
-
3
-
2
-
379.000 EUR stambeni kredit
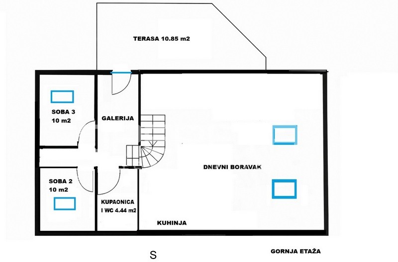
PRODAJA, STAN, ZAGREB, ČRNOMEREC, KUSTOŠIJA, 110 m2 sunčan 3.5-sobni sa otvorenim pogledom na grad. Stan ima 86 m2 zatvorenog prostora i to na donjoj etaži : stubište, veliki dnevni boravak sa kuhinjom i blagovaonicom, kupaonica s wc-om (ima prozor), 1 spavaća soba. Na gornjoj etaži: 2 spavaće sobe, kupaonica s wc-om, galerija. U ukupnu kvadraturu po koeficijentima su obračunate terase na koje se ide iz boravka i galerije, balkon, spremište, vanjsko parkirno mjesto te garaža. Stanu pripada i terasa iznad garaže sa vodom, roštiljem te vrt koji nisu u navedenoj kvadraturi stana i daju se gratis. Idealno za Kupca koji traži ugodni topli dom uz lijep otvoren pogled s jedne strane na Grad Zagreba a s druge na zelenilo i Samoborsko gorje na 3 minute pješice od dućana i autobusne stanice te 5 minuta vožnje autom do vrtića, škole... Odvojena mjerila struje, vode i plina (plaćanje po potrošnji), zgrada armirano betonska, pvc. PREPORUČUJEMO!
- Osnovni podaci
- Površina: 110,0 m2
- Broj soba: 3,0
- Broj kupatila: 2
- Sprat: 2 od 2
- Energetski razred: B
- Infrastruktura
- Gas
- Dodatne informacije
- Površina balkona: 5,00 m2
- Površina terase: 10,00 m2
- Površina vrta: 41,00 m2
- Stanje: u jako dobrom stanju
- Podrum
- Garaža
- Natkriveno parking mesto
- Lokacija
- Država: Hrvatska
- Regija: Grad Zagreb
- Opština: Zagreb, 10000
- Naselje: Črnomerec
- Graberje
- Pogledaj na karti
- Dozvole
- Građevinska dozvola
- Lokacijska dozvola
- Upotrebna dozvola
- Grijanje
- Tip grijanja: Centralno grejanje (vlastito) plin
- Slične nekretnine
- Stan - Zagreb (Podsused - Vrapče) - 106 m2 - 360.000 EUR
- Stan - Zagreb (Donji grad) - 104 m2 - 670.000 EUR
- Stan - Zagreb (Jelenovac) - 116 m2 - 715.000 EUR
- Stan - Novogradnja - Zagreb (Trešnjevka - Sjever) - 116 m2 - 698.940 EUR
- Stan - Novogradnja - Zagreb (Maksimir) - 107 m2 - 708.000 EUR
Opereta d.o.o.
Ulica grada Vukovara 20, 10000 Zagreb
- Svi oglasi ove agencije
- Web site agencije
-
Licencirani posrednik
- Broj u registru posrednika: 208/2009
Zapratite nas na
Facebook-u
i
Instagramu
za
najbolje ponude nekretnina u kategoriji Stanovi
u mjestu Zagreb, Hrvatska
Navigacija
Kontaktirajte oglašivača
Kontaktirajte oglašivača
Opereta d.o.o.
Ulica grada Vukovara 20, 10000 Zagreb
- Tel: xxxx-xxxx-0050 Prikaži broj
- Fax: xxxx-xxxx-4706 Prikaži broj
-
Licencirani posrednik
- Broj u registru posrednika: 208/2009